KSビル(物件No:93970230)
KSビルは新宿区市谷砂土原町にある賃貸事務所です。最寄駅は東京メトロ南北線の市ケ谷駅から徒歩5分、都営大江戸線の牛込神楽坂駅から徒歩7分、JR中央・総武線の市ヶ谷駅から徒歩10分です。1987年竣工の地上5階建て(地下1階、地上5階)のオフィスビルです。個別空調、フリーアクセス、天井高2350mmの仕様です。耐震あり。複数路線利用可能で、アクセスの良い新宿区市谷砂土原町の賃貸オフィスです。
| 階 | 面積 | 賃料 | 共益費 | 敷金 | 入居日 | お問合せ | お気に入り |
|---|---|---|---|---|---|---|---|
| B1F |
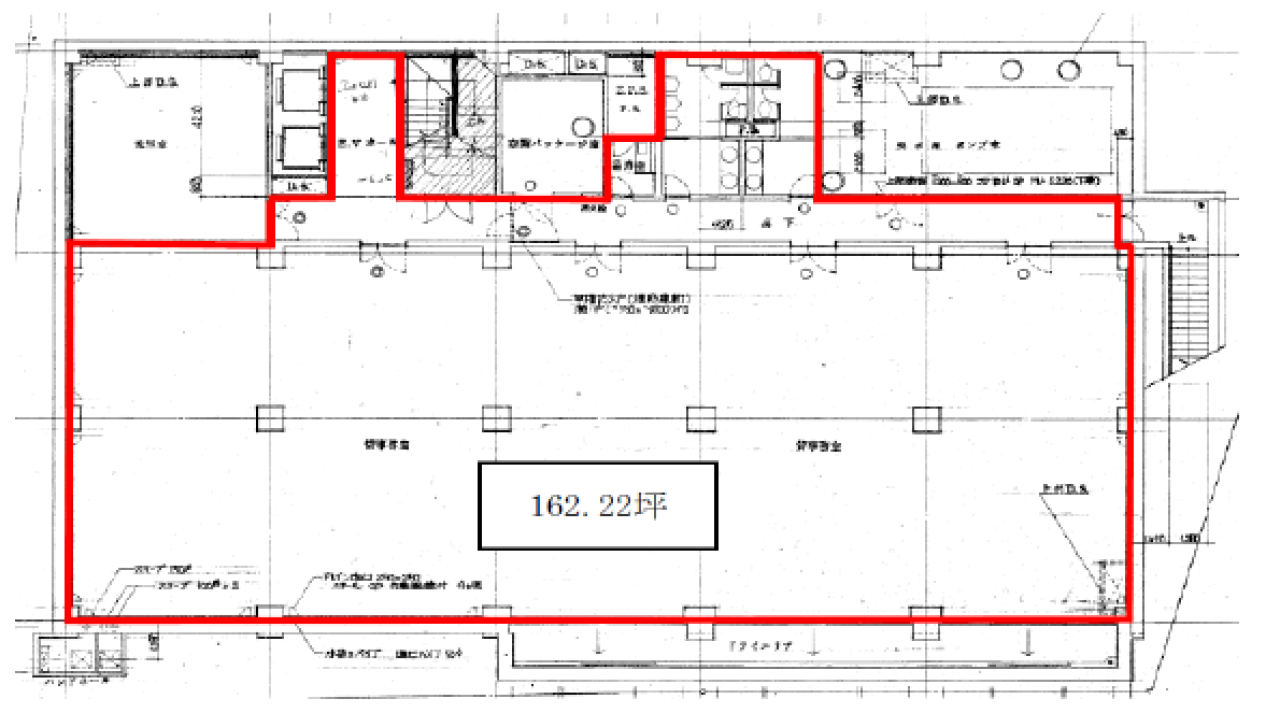
162.22 坪 536.26 ㎡ |
相談 |
681,324 円 4,200 円(坪) |
12ヶ月 |
2026/02 |
|
|
| 階 | 面積 | 賃料 | 共益費 | 敷金 | 入居日 | お問合せ | お気に入り |
|---|---|---|---|---|---|---|---|
| B1F |
162.22 坪 536.26 ㎡ |
相談 |
681,324 円 4,200 円(坪) |
12ヶ月 |
2026/02 |
|
|
-
物件情報
-
設備情報
- トイレ
- -
- 床
- フリーアクセス
- 空調
- 個別空調
- セキュリティ
- -
- 駐車場
- -
- 会議室
- -
- エレベーター
- -
- 天井高
- 2350mm
-
間取り図
-
近隣相場情報
市谷砂土原町2丁目(100坪以上)の相場
17200 円 (坪)
※ビルサク調べ
周辺地図
KSビルは新宿区市谷砂土原町にある賃貸事務所です。最寄駅は東京メトロ南北線の市ケ谷駅から徒歩5分、都営大江戸線の牛込神楽坂駅から徒歩7分、JR中央・総武線の市ヶ谷駅から徒歩10分です。1987年竣工の地上5階建て(地下1階、地上5階)のオフィスビルです。個別空調、フリーアクセス、天井高2350mmの仕様です。耐震あり。複数路線利用可能で、アクセスの良い新宿区市谷砂土原町の賃貸オフィスです。
全フロア情報
更新日:2025年10月9日
| 階 | 面積 | 賃料 | 共益費 | 敷金 | 入居日 | お問合せ | お気に入り |
|---|---|---|---|---|---|---|---|
| B1F |
162.22 坪 536.26 ㎡ |
相談 |
681,324 円 4,200 円(坪) |
12ヶ月 |
2026/02 |
|
|
| 1F |
85.1 坪 281.32 ㎡ |
相談 |
357,420 円 4,200 円(坪) |
12ヶ月 |
2026/02 |
|
|
| 3F |
202.3 坪 668.76 ㎡ |
相談 |
849,660 円 4,200 円(坪) |
12ヶ月 |
2026/02 |
|
|
| 4F |
181.96 坪 601.52 ㎡ |
相談 |
764,232 円 4,200 円(坪) |
12ヶ月 |
2026/02 |
|
|
| 5F |
108.72 坪 359.4 ㎡ |
相談 |
456,624 円 4,200 円(坪) |
12ヶ月 |
2026/02 |
|
|
お問い合わせ
似た条件の物件はこちら
-
市ヶ谷キャナルコート
東京都新宿区市谷本村町2-21
坪数:169.18 坪
坪単価:28,000 円(坪)
-
新陽ビル
東京都新宿区揚場町2-14
坪数:158.01 坪
坪単価:13,999 円(坪)
関連エリアから探す
- 赤城下町
- 市谷加賀町
- 揚場町
- 河田町
- 市谷砂土原町
- 市谷左内町
- 市谷田町
- 市谷台町
- 市谷長延寺町
- 市谷仲之町
- 市谷八幡町
- 市谷船河原町
- 市谷本村町
- 市谷薬王寺町
- 市谷柳町
- 市谷山伏町
- 岩戸町
- 榎町
- 改代町
- 神楽河岸
- 神楽坂
- 北町
- 北山伏町
- 細工町
- 下宮比町
- 白銀町
- 新小川町
- 水道町
- 箪笥町
- 築地町
- 筑土八幡町
- 津久戸町
- 天神町
- 富久町
- 中里町
- 中町
- 納戸町
- 西五軒町
- 二十騎町
- 払方町
- 東榎町
- 東五軒町
- 袋町
- 南町
- 南山伏町
- 山吹町
- 矢来町
- 横寺町
- 余丁町
- 住吉町