ケンハーバー(物件No:92823422)
ケンハーバーは、渋谷区神宮前にある貸事務所物件です。最寄駅はJR原宿駅、東京メトロ千代田線明治神宮前駅、副都心線北参道駅です。1965年竣工で基準階が35.76坪の賃貸オフィスビルです。エレベーターは1基あり、駐車場が利用可能です。複数駅利用可能で交通アクセスの良い、渋谷区神宮前の貸事務所です。
| 階 | 面積 | 賃料 | 共益費 | 敷金 | 入居日 | お問合せ | お気に入り | |
|---|---|---|---|---|---|---|---|---|
|
3F
(302区画) |
12.1 坪 40 ㎡ |
※現在空室情報はございません |
※現在空室情報は 確認する |
|||||
| 階 | 面積 | 賃料 | 共益費 | 敷金 | 入居日 | お問合せ | お気に入り | |
|---|---|---|---|---|---|---|---|---|
|
3F
(302区画) |
12.1 坪 40 ㎡ |
※現在空室情報はございません |
※現在空室情報は 確認する |
|||||
-
物件情報
-
設備情報
- トイレ
- -
- 床
- -
- 空調
- -
- セキュリティ
- -
- 駐車場
- 有
- 会議室
- -
- エレベーター
- 1基
- 天井高
- -
-
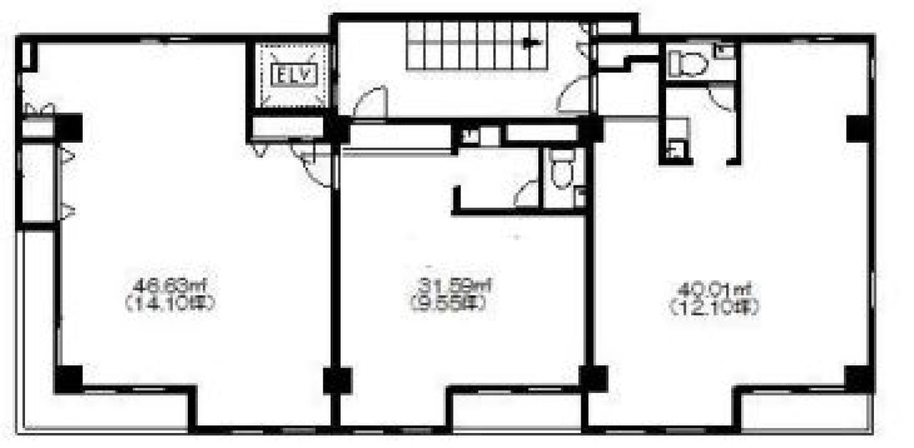
間取り図
-
近隣相場情報
神宮前1丁目(20坪以下)の相場
19943 円 (坪)
※ビルサク調べ
周辺施設情報
| コンビニ |
ローソン/S神宮前タワービルディング/500m(徒歩6分) セブンイレブン/神宮外苑西/650m(徒歩8分) |
|---|---|
| 郵便局/銀行 |
みずほ銀行/ATM ミニストップ神宮前2丁目店出張所/[営業時間] [ATM]平日 0:00~24:00 土曜日 0:00~22:00 日曜日 8:00~24:00 祝日・振替休日 曜日に準ずる/650m(徒歩8分) セブン銀行/東急プラザ 表参道原宿/[営業時間]11:00~21:00 [備考]1 台/800m(徒歩10分) |
| 飲食店 |
おなが鳥/120m(徒歩1分) 桃林荘 華山亭/1300m(徒歩16分) |
| カフェ |
スターバックス/原宿店/[営業時間]月~金:7:30~22:30 土:8:00~22:30 日祝:8:00~22:00 [休業日]不定休 [備考]無線LAN:STARBUCKS/docomo/au/Softbank/Wi2 300/600m(徒歩7分) アンセーニュ・ダングル 原宿店/10時00分~21時00分/350m(徒歩5分) |
| コインパーキング |
タイムズ/千駄ヶ谷3丁目第2 [料金] [全日]8:00~18:00 20分 300円 [全日]18:00~8:00 20分 200円 [最大料金] [全日]8:00~18:00 最大料金2300円 [全日]18:00~8:00 最大料金400円 [台数]12 エコロパーク/原宿通り第1 [料金] 全日 昼 8時~24時 12分300円 全日 夜 24時~8時 60分200円 [最大料金] 月~土 4時間 最大2400円 日曜/祝日 12時間 最大2000円 [台数]1 |
周辺地図
ケンハーバーは、渋谷区神宮前にある貸事務所物件です。最寄駅はJR原宿駅、東京メトロ千代田線明治神宮前駅、副都心線北参道駅です。1965年竣工で基準階が35.76坪の賃貸オフィスビルです。エレベーターは1基あり、駐車場が利用可能です。複数駅利用可能で交通アクセスの良い、渋谷区神宮前の貸事務所です。
全フロア情報
更新日:2025年11月11日
| 階 | 面積 | 賃料 | 共益費 | 敷金 | 入居日 | お問合せ | お気に入り | |
|---|---|---|---|---|---|---|---|---|
|
1F
(101区画) |
12.26 坪 40.53 ㎡ |
※現在空室情報はございません |
※現在空室情報は 確認する |
|||||
|
1F
(102区画) |
18.47 坪 61.06 ㎡ |
※現在空室情報はございません |
※現在空室情報は 確認する |
|||||
| 2F |
35.76 坪 118.23 ㎡ |
※現在空室情報はございません |
※現在空室情報は 確認する |
|||||
|
2F
(201区画) |
23.66 坪 78.21 ㎡ |
※現在空室情報はございません |
※現在空室情報は 確認する |
|||||
|
2F
(202区画) |
12.1 坪 40 ㎡ |
※現在空室情報はございません |
※現在空室情報は 確認する |
|||||
| 3F |
35.76 坪 118.23 ㎡ |
※現在空室情報はございません |
※現在空室情報は 確認する |
|||||
|
3F
(301区画) |
23.66 坪 78.21 ㎡ |
※現在空室情報はございません |
※現在空室情報は 確認する |
|||||
|
3F
(302区画) |
12.1 坪 40 ㎡ |
※現在空室情報はございません |
※現在空室情報は 確認する |
|||||
| 4F |
35.76 坪 118.23 ㎡ |
※現在空室情報はございません |
※現在空室情報は 確認する |
|||||
|
4F
(401区画) |
23.66 坪 78.21 ㎡ |
424,545 円 17,944 円(坪) |
30,000 円 1,268 円(坪) |
2,122,725 円 5 ヶ月 |
相談 |
|
|
|
|
4F
(402区画) |
12.1 坪 40 ㎡ |
※現在空室情報はございません |
※現在空室情報は 確認する |
|||||
お問い合わせ
似た条件の物件はこちら
-
三貴ビル
東京都渋谷区渋谷2-12-12
坪数:15.7 坪
坪単価:22,000 円(坪)
-
フォーラム神宮前
東京都渋谷区神宮前4-6-2
坪数:14.52 坪
坪単価:20,000 円(坪)
-
日興パレス外苑
東京都渋谷区神宮前2-13-7
坪数:16.57 坪
坪単価:12,311 円(坪)
-
青山スタービル
東京都渋谷区渋谷2-3-4
坪数:9.52 坪
坪単価:20,798 円(坪)
-
アロープラザ原宿
東京都渋谷区神宮前4-19-8
坪数:16.17 坪
坪単価:25,974 円(坪)
-
第1矢木ビル
東京都渋谷区渋谷3-6-19
坪数:16 坪
坪単価:18,000 円(坪)
-
エフビル
東京都渋谷区神南1-10-8
坪数:15.66 坪
坪単価:17,416 円(坪)
-
山崎邸
東京都渋谷区神宮前3-27-8
坪数:15.35 坪
坪単価:19,544 円(坪)
-
渋谷トライアングル
東京都渋谷区渋谷1-24-14
坪数:13.85 坪
坪単価:34,000 円(坪)
-
フィールA渋谷
東京都渋谷区円山町5-4
坪数:15.4 坪
坪単価:27,273 円(坪)