五反田ファーストビル(物件No:91989128)
五反田ファーストビルは品川区西五反田にある地下2階、地上11階建ての賃貸事務所です。最寄駅はJR線の五反田駅から徒歩4分、東急池上線の大崎広小路駅から徒歩7分、都営浅草線の五反田駅から徒歩4分、東急目黒線の不動前駅から徒歩8分、東急池上線の五反田駅から徒歩4分です。1989年8月竣工の基準階面積が179.12坪の鉄骨鉄筋コンクリート造です。設備としては、エレベーターが3基あり、駐車場もあります。警備は機械警備です。トイレは男女別です。空調は個別空調です。床仕様はフリーアクセスです。天高は2490mmです。耐震設計となっている、複数駅利用可能なアクセスの良い品川区西五反田の賃貸オフィスです。
-
物件情報
-
設備情報
- トイレ
- -
- 床
- フリーアクセス
- 空調
- 個別空調
- セキュリティ
- 有
- 駐車場
- 有
- 会議室
- -
- エレベーター
- 3基
- 天井高
- -
-
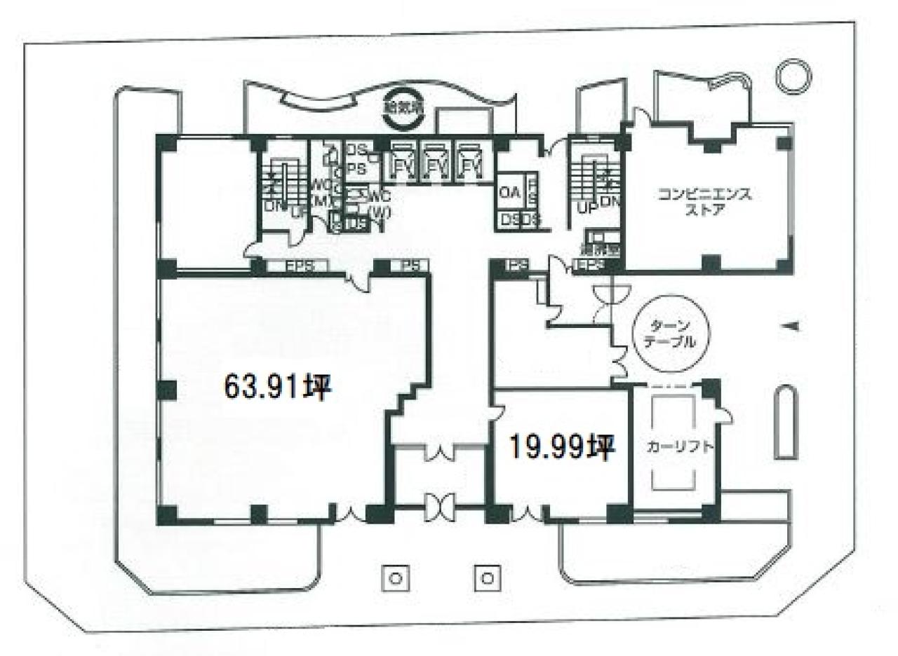
間取り図
-
近隣相場情報
西五反田2丁目(20坪以下)の相場
12840 円 (坪)
※ビルサク調べ
周辺地図
五反田ファーストビルは品川区西五反田にある地下2階、地上11階建ての賃貸事務所です。最寄駅はJR線の五反田駅から徒歩4分、東急池上線の大崎広小路駅から徒歩7分、都営浅草線の五反田駅から徒歩4分、東急目黒線の不動前駅から徒歩8分、東急池上線の五反田駅から徒歩4分です。1989年8月竣工の基準階面積が179.12坪の鉄骨鉄筋コンクリート造です。設備としては、エレベーターが3基あり、駐車場もあります。警備は機械警備です。トイレは男女別です。空調は個別空調です。床仕様はフリーアクセスです。天高は2490mmです。耐震設計となっている、複数駅利用可能なアクセスの良い品川区西五反田の賃貸オフィスです。
全フロア情報
更新日:2025年11月5日
| 階 | 面積 | 賃料 | 共益費 | 敷金 | 入居日 | お問合せ | お気に入り | |
|---|---|---|---|---|---|---|---|---|
| B2F |
41.94 坪 138.64 ㎡ |
※現在空室情報はございません |
※現在空室情報は 確認する |
|||||
|
B1F
(1区画) |
265.74 坪 878.48 ㎡ |
※現在空室情報はございません |
※現在空室情報は 確認する |
|||||
| 1F |
83.9 坪 277.35 ㎡ |
※現在空室情報はございません |
※現在空室情報は 確認する |
|||||
|
1F
(1区画) |
12.3 坪 40.66 ㎡ |
※現在空室情報はございません |
※現在空室情報は 確認する |
|||||
| 2F |
177.85 坪 587.93 ㎡ |
※現在空室情報はございません |
※現在空室情報は 確認する |
|||||
| 3F |
177.37 坪 586.35 ㎡ |
※現在空室情報はございません |
※現在空室情報は 確認する |
|||||
| 4F |
177.37 坪 586.35 ㎡ |
※現在空室情報はございません |
※現在空室情報は 確認する |
|||||
|
4F
(1区画) |
104.75 坪 346.28 ㎡ |
※現在空室情報はございません |
※現在空室情報は 確認する |
|||||
|
4F
(2区画) |
72.62 坪 240.07 ㎡ |
※現在空室情報はございません |
※現在空室情報は 確認する |
|||||
| 5F |
178.34 坪 589.55 ㎡ |
※現在空室情報はございません |
※現在空室情報は 確認する |
|||||
|
5F
(1区画) |
105.23 坪 347.87 ㎡ |
※現在空室情報はございません |
※現在空室情報は 確認する |
|||||
|
5F
(2区画) |
73.11 坪 241.69 ㎡ |
※現在空室情報はございません |
※現在空室情報は 確認する |
|||||
| 6F |
179.12 坪 592.13 ㎡ |
※現在空室情報はございません |
※現在空室情報は 確認する |
|||||
| 7F |
179.12 坪 592.13 ㎡ |
※現在空室情報はございません |
※現在空室情報は 確認する |
|||||
| 8F |
179.12 坪 592.13 ㎡ |
※現在空室情報はございません |
※現在空室情報は 確認する |
|||||
| 9F |
179.12 坪 592.13 ㎡ |
※現在空室情報はございません |
※現在空室情報は 確認する |
|||||
| 10F |
179.12 坪 592.13 ㎡ |
※現在空室情報はございません |
※現在空室情報は 確認する |
|||||
| 11F |
110.39 坪 364.93 ㎡ |
※現在空室情報はございません |
※現在空室情報は 確認する |
|||||
お問い合わせ
似た条件の物件はこちら
-
アイオス五反田ビル
東京都品川区東五反田1-10-7
坪数:16.26 坪
坪単価:22,755 円(坪)
-
第二東栄ビル
東京都品川区西五反田1-17-1
坪数:14.87 坪
坪単価:9,684 円(坪)
-
西川ビル
東京都品川区上大崎2-15-16
坪数:17 坪
坪単価:31,176 円(坪)
-
シャトレー五反田
東京都品川区東五反田4-10-9
坪数:15.7 坪
坪単価:9,554 円(坪)
-
ニューフジビル
東京都品川区上大崎2-13-35
坪数:15.7 坪
坪単価:10,909 円(坪)
-
扇寿ビル
東京都品川区東五反田5-27-12
坪数:16.46 坪
坪単価:16,403 円(坪)
-
ソレイユ目黒
東京都品川区上大崎4-3-7
坪数:15.85 坪
坪単価:17,035 円(坪)
-
TYビル
東京都品川区東五反田4-7-25
坪数:16.14 坪
坪単価:13,518 円(坪)
-
MG目黒駅前
東京都品川区上大崎2-15-19
坪数:15.4 坪
坪単価:13,227 円(坪)
-
サンロイヤル五反田
東京都品川区西五反田2-25-9
坪数:14.97 坪
坪単価:12,024 円(坪)