五反田不二越ビル(物件No:91989127)
五反田不二越ビルは品川区東五反田にある地下1階、地上6階建ての賃貸事務所です。最寄駅はJR線の五反田駅から徒歩3分、都営浅草線の五反田駅から徒歩2分、東急池上線の五反田駅から徒歩4分です。1968年竣工の基準階面積が126.15坪の鉄骨鉄筋コンクリート造です。設備としては、エレベーターが2基あり、駐車場もあります。警備は機械警備です。トイレは男女別です。空調は個別空調です。床仕様はフリーアクセスです。耐震設計となっている、最寄駅から近くて便利な品川区東五反田の賃貸オフィスです。
-
物件情報
-
設備情報
- トイレ
- 男女別
- 床
- フリーアクセス
- 空調
- 個別空調
- セキュリティ
- 有
- 駐車場
- 有
- 会議室
- -
- エレベーター
- 2基
- 天井高
- 2500mm
-
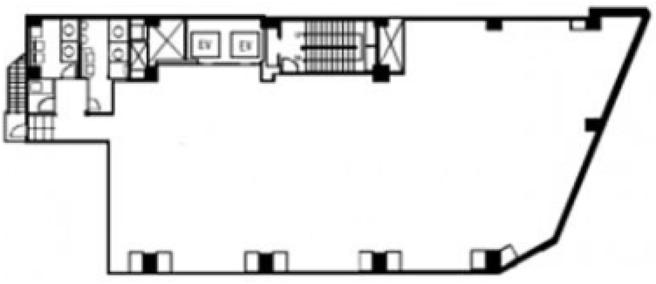
間取り図
-
近隣相場情報
東五反田5丁目(50~100坪)の相場
20577 円 (坪)
※ビルサク調べ
周辺地図
五反田不二越ビルは品川区東五反田にある地下1階、地上6階建ての賃貸事務所です。最寄駅はJR線の五反田駅から徒歩3分、都営浅草線の五反田駅から徒歩2分、東急池上線の五反田駅から徒歩4分です。1968年竣工の基準階面積が126.15坪の鉄骨鉄筋コンクリート造です。設備としては、エレベーターが2基あり、駐車場もあります。警備は機械警備です。トイレは男女別です。空調は個別空調です。床仕様はフリーアクセスです。耐震設計となっている、最寄駅から近くて便利な品川区東五反田の賃貸オフィスです。
全フロア情報
更新日:2025年11月5日
| 階 | 面積 | 賃料 | 共益費 | 敷金 | 入居日 | お問合せ | お気に入り | |
|---|---|---|---|---|---|---|---|---|
| 2F |
126.15 坪 417.02 ㎡ |
※現在空室情報はございません |
※現在空室情報は 確認する |
|||||
|
3F
(A区画) |
69.92 坪 231.14 ㎡ |
※現在空室情報はございません |
※現在空室情報は 確認する |
|||||
|
3F
(B区画) |
52.51 坪 173.59 ㎡ |
※現在空室情報はございません |
※現在空室情報は 確認する |
|||||
|
4F
(B区画) |
97.01 坪 320.69 ㎡ |
※現在空室情報はございません |
※現在空室情報は 確認する |
|||||
| 4-5F |
194.02 坪 641.4 ㎡ |
※現在空室情報はございません |
※現在空室情報は 確認する |
|||||
| 5F |
97.01 坪 320.7 ㎡ |
※現在空室情報はございません |
※現在空室情報は 確認する |
|||||
|
5F
(B区画) |
94.01 坪 310.78 ㎡ |
※現在空室情報はございません |
※現在空室情報は 確認する |
|||||
| 6F |
74.84 坪 247.4 ㎡ |
※現在空室情報はございません |
※現在空室情報は 確認する |
|||||
| 8F |
34.02 坪 112.46 ㎡ |
※現在空室情報はございません |
※現在空室情報は 確認する |
|||||
お問い合わせ
似た条件の物件はこちら
-
THE GATE GOTANDA EAST
東京都品川区東五反田1-25-11
坪数:80.32 坪
坪単価:26,000 円(坪)
-
いちご五反田ビル
東京都品川区東五反田1-13-12
坪数:88.49 坪
坪単価:19,000 円(坪)
-
目黒センタービル
東京都品川区上大崎3-2-1
坪数:103 坪
坪単価:26,000 円(坪)
-
都五反田ビル西館
東京都品川区大崎5-6-2
坪数:77.15 坪
坪単価:16,000 円(坪)
-
MINAMI Building
東京都品川区東五反田1-16-4
坪数:109.99 坪
坪単価:20,002 円(坪)
-
第5TOCビル
東京都品川区西五反田7-21-1
坪数:116.19 坪
坪単価:15,000 円(坪)
-
五反田中央ビル
東京都品川区東五反田2-3-5
坪数:106.81 坪
坪単価:16,000 円(坪)
-
高徳ビル
東京都品川区大崎5-1-5
坪数:105.17 坪
坪単価:18,000 円(坪)
-
五反田ハタビル
東京都品川区東五反田2-2-3
坪数:85.37 坪
坪単価:14,000 円(坪)
-
光村ビル
東京都品川区大崎1-15-9
坪数:88.54 坪
坪単価:12,000 円(坪)