恵比寿ビル(物件No:91884007)
恵比寿ビルは渋谷区東にある地下2階、地上9階建ての賃貸事務所です。最寄駅はJR線の恵比寿駅から徒歩4分、東京メトロ日比谷線の恵比寿駅から徒歩4分です。1992年10月竣工の基準階面積が85.23坪の鉄骨鉄筋コンクリート造です。設備としては、エレベーターが2基あり、駐車場もあります。セキュリティは機械警備と有人警備です。空調は個別空調です。床仕様はフリーアクセスです。天高は2560mmです。耐震設計となっている、複数路線利用可能なアクセスの良い渋谷区東の賃貸オフィスです。
-
物件情報
-
設備情報
- トイレ
- -
- 床
- フリーアクセス
- 空調
- 個別空調
- セキュリティ
- 有
- 駐車場
- 有
- 会議室
- -
- エレベーター
- 2基
- 天井高
- 2560mm
-
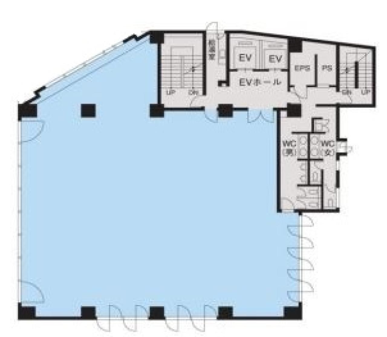
間取り図
-
近隣相場情報
東3丁目(50~100坪)の相場
35056 円 (坪)
※ビルサク調べ
周辺施設情報
| コンビニ |
セブンイレブン/渋谷東3丁目/200m(徒歩3分) ローソン/H広尾一丁目/300m(徒歩4分) |
|---|---|
| 郵便局/銀行 |
昭和信用金庫/えびす支店/500m(徒歩6分) ちばぎん/恵比寿支店/[営業時間] [窓口]平日 9:00~11:30 12:30~15:00(休業時間 11:30~12:30)土日祝日 ??? [ATM]平日 8:45~18:00 土曜日 ??? 日曜日 ??? 祝日 ???/400m(徒歩5分) |
| 飲食店 |
魚竹/11時45分~14時30分、17時00分~23時00分/250m(徒歩3分) 写真集食堂 めぐたま/12時00分~22時00分/450m(徒歩6分) |
| カフェ |
COFFEE HERE!/11時00分~23時00分/350m(徒歩5分) パイルカフェ/12時00分~23時30分/450m(徒歩6分) |
| コインパーキング |
NPC24H/恵比寿北第2 [料金] 通常料金 全日 0:00~24:00 300円/12分 [最大料金] 月~土 入庫後最大(繰返有)3時間/2500円 日祝 入庫後最大(繰返有)12時間/2500円 全日 区間最大 20:00~8:00/1000円 [台数]6台 コインパーク/渋谷東3丁目第4 [料金] 【全日】■通常料金【0:00~24:00】20分300円 【土日祝】■通常料金【0:00~24:00】20分300円 【月~金】■通常料金【0:00~24:00】20分300円 [最大料金] 【全日】■最大料金【18:00~8:00】1200円 【土日祝】■最大料金【駐車後24時間以内(1回限り)】4000円【18:00~8:00】1200円 ①②③⑧⑨⑩⑪番車室 【月~金】■最大料金【駐車後24時間以内(1回限り)】4000円【18:00~ [台数] [車: 17台] |
周辺地図
恵比寿ビルは渋谷区東にある地下2階、地上9階建ての賃貸事務所です。最寄駅はJR線の恵比寿駅から徒歩4分、東京メトロ日比谷線の恵比寿駅から徒歩4分です。1992年10月竣工の基準階面積が85.23坪の鉄骨鉄筋コンクリート造です。設備としては、エレベーターが2基あり、駐車場もあります。セキュリティは機械警備と有人警備です。空調は個別空調です。床仕様はフリーアクセスです。天高は2560mmです。耐震設計となっている、複数路線利用可能なアクセスの良い渋谷区東の賃貸オフィスです。
全フロア情報
更新日:2025年12月1日
| 階 | 面積 | 賃料 | 共益費 | 敷金 | 入居日 | お問合せ | お気に入り | |
|---|---|---|---|---|---|---|---|---|
| B1F |
39.44 坪 130.38 ㎡ |
相談 |
相談 |
相談 |
2026/05/01 |
|
|
|
| 2F |
85.23 坪 281.75 ㎡ |
※現在空室情報はございません |
※現在空室情報は 確認する |
|||||
|
2F
(1区画) |
121.44 坪 401.44 ㎡ |
※現在空室情報はございません |
※現在空室情報は 確認する |
|||||
| 3F |
105.78 坪 349.69 ㎡ |
※現在空室情報はございません |
※現在空室情報は 確認する |
|||||
| 4F |
105.78 坪 349.69 ㎡ |
※現在空室情報はございません |
※現在空室情報は 確認する |
|||||
| 5F |
85.23 坪 281.75 ㎡ |
相談 |
込 |
12ヶ月 |
2026/05/01 |
|
|
|
| 6F |
85.23 坪 281.75 ㎡ |
※現在空室情報はございません |
※現在空室情報は 確認する |
|||||
| 7F |
85.23 坪 281.75 ㎡ |
相談 |
込 |
12ヶ月 |
2026/05/01 |
|
|
|
| 8F |
85.23 坪 281.75 ㎡ |
相談 |
相談 |
相談 |
2026/05/01 |
|
|
|
| 9F |
85.23 坪 281.75 ㎡ |
相談 |
込 |
12ヶ月 |
2026/05/01 |
|
|
|
お問い合わせ
似た条件の物件はこちら
-
日本会館
東京都渋谷区桜丘町18-6
坪数:100.44 坪
坪単価:27,500 円(坪)
-
AND FIRST BLDG.
東京都渋谷区桜丘町9-17
坪数:74.2 坪
坪単価:35,000 円(坪)
-
二宮ビル
東京都渋谷区桜丘町18-4
坪数:104.37 坪
坪単価:24,500 円(坪)
-
Daiwa渋谷スクエア
東京都渋谷区南平台町16-28
坪数:88.94 坪
坪単価:31,000 円(坪)
-
クレインズパークビル
東京都渋谷区神宮前6-18-1
坪数:66.95 坪
坪単価:35,101 円(坪)
-
神南ビル
東京都渋谷区神南1-3-4
坪数:66.98 坪
坪単価:22,300 円(坪)
-
渋谷第一生命ビルディング
東京都渋谷区渋谷3-8-12
坪数:69.28 坪
坪単価:30,000 円(坪)
-
並木橋ビル
東京都渋谷区渋谷3-15-6
坪数:100.36 坪
坪単価:20,000 円(坪)
-
新大宗道玄坂上ビル
東京都渋谷区円山町20-1
坪数:77 坪
坪単価:17,500 円(坪)
-
渋谷TSKビル
東京都渋谷区南平台町3-8
坪数:104.66 坪
坪単価:25,000 円(坪)