第2秩父屋ビル(物件No:91786161)
第2秩父屋ビルは千代田区平河町にある地下1階、地上8階建ての賃貸事務所です。最寄駅は東京メトロ半蔵門線の半蔵門駅から徒歩5分、東京メトロ有楽町線の麹町駅から徒歩3分です。1988年11月竣工の鉄骨鉄筋コンクリート造です。設備としては、エレベーターが1基あります。トイレは男女別です。空調は個別空調です。天高は2600mmです。耐震設計となっている、最寄駅から近くて便利な千代田区平河町の賃貸オフィスです。
-
物件情報
-
設備情報
- トイレ
- 室外男女別
- 床
- 3WAY
- 空調
- 個別空調
- セキュリティ
- 有
- 駐車場
- 無
- 会議室
- -
- エレベーター
- 1基
- 天井高
- 2550mm
-
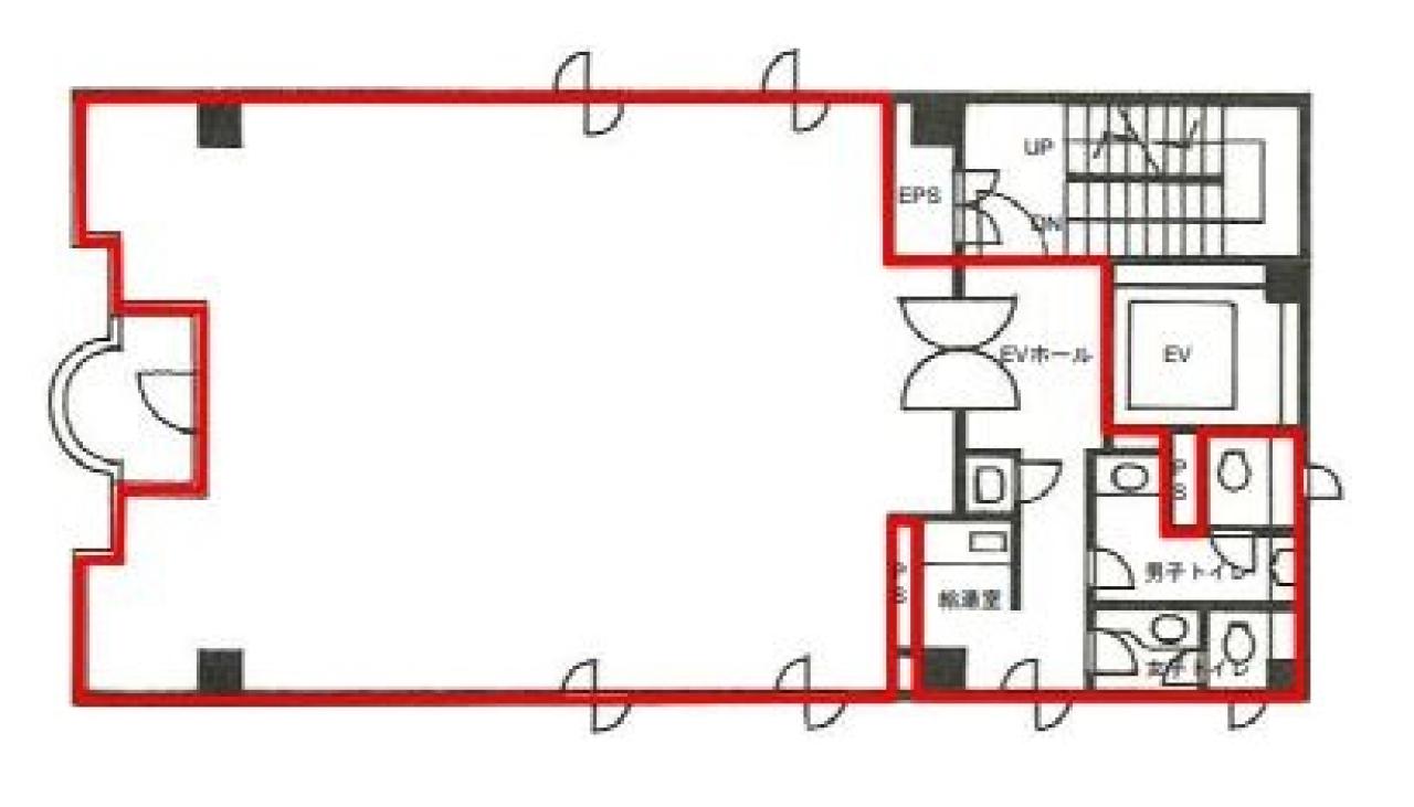
間取り図
-
近隣相場情報
平河町1丁目(30~40坪)の相場
13089 円 (坪)
※ビルサク調べ
周辺地図
第2秩父屋ビルは千代田区平河町にある地下1階、地上8階建ての賃貸事務所です。最寄駅は東京メトロ半蔵門線の半蔵門駅から徒歩5分、東京メトロ有楽町線の麹町駅から徒歩3分です。1988年11月竣工の鉄骨鉄筋コンクリート造です。設備としては、エレベーターが1基あります。トイレは男女別です。空調は個別空調です。天高は2600mmです。耐震設計となっている、最寄駅から近くて便利な千代田区平河町の賃貸オフィスです。
全フロア情報
更新日:2025年10月1日
階 | 面積 | 賃料 | 共益費 | 敷金 | 入居日 | お問合せ | お気に入り | |
---|---|---|---|---|---|---|---|---|
B1F |
30.62 坪 101.22 ㎡ |
※現在空室情報はございません |
※現在空室情報は 確認する |
|||||
1F |
17.86 坪 59.04 ㎡ |
※現在空室情報はございません |
※現在空室情報は 確認する |
|||||
2F |
32.5 坪 107.44 ㎡ |
※現在空室情報はございません |
※現在空室情報は 確認する |
|||||
3F |
32.95 坪 108.93 ㎡ |
※現在空室情報はございません |
※現在空室情報は 確認する |
|||||
7F |
28.19 坪 93.19 ㎡ |
未定 |
84,570 円 3,000 円(坪) |
12ヶ月 |
2026/02/01 |
|
|
|
8F |
12.46 坪 41.19 ㎡ |
※現在空室情報はございません |
※現在空室情報は 確認する |
お問い合わせ
似た条件の物件はこちら
-
第2DMJビル
東京都千代田区九段南3-5-9
坪数:24.41 坪
坪単価:20,000 円(坪)
-
Shirasuna bldg.NAGATACHO
東京都千代田区平河町2-10-4
坪数:28.45 坪
坪単価:22,048 円(坪)
-
一番町村上ビル
東京都千代田区一番町9-7
坪数:32.84 坪
坪単価:12,000 円(坪)
-
近代ビル
東京都千代田区麹町3-12-5
坪数:31 坪
坪単価:27,000 円(坪)
-
桜ビル
東京都千代田区九段北4-2-2
坪数:35.14 坪
坪単価:14,229 円(坪)
-
宮ビル
東京都千代田区麹町4-3-4
坪数:33.22 坪
坪単価:12,041 円(坪)
-
九段櫻ビル
東京都千代田区九段北1-10-5
坪数:33.5 坪
坪単価:10,500 円(坪)
-
麹町アネックス
東京都千代田区麹町4-5-10
坪数:35.41 坪
坪単価:15,738 円(坪)
-
グランドメゾン六番町
東京都千代田区六番町6-20
坪数:26.63 坪
坪単価:13,143 円(坪)
-
麹町秋山ビルディング
東京都千代田区麹町5-3-4
坪数:38 坪
坪単価:16,000 円(坪)