ライオンズマンション平河町(物件No:91782087)
ライオンズマンション平河町は、千代田区平河町にある貸事務所物件です。最寄駅は、東京メトロ半蔵門線半蔵門駅、東京メトロ有楽町線麹町駅、東京メトロ南北線永田町駅です。1979年竣工の事務所利用可マンションです。床はタイルカーペットとなっています。空調は個別空調で、セキュリティは有人警備となっています。最寄駅から徒歩4分。複数路線利用可能で交通アクセスの良い、千代田区平河町の貸事務所です。
| 階 | 面積 | 賃料 | 共益費 | 敷金 | 入居日 | お問合せ | お気に入り |
|---|---|---|---|---|---|---|---|
|
1F
(102区画) |
19.27 坪 63.7 ㎡ |
300,000 円 15,568 円(坪) |
込 |
1,200,000 円 4 ヶ月 |
即日 |
|
|
| 階 | 面積 | 賃料 | 共益費 | 敷金 | 入居日 | お問合せ | お気に入り |
|---|---|---|---|---|---|---|---|
|
1F
(102区画) |
19.27 坪 63.7 ㎡ |
300,000 円 15,568 円(坪) |
込 |
1,200,000 円 4 ヶ月 |
即日 |
|
|
-
物件情報
-
設備情報
- トイレ
- -
- 床
- タイルカーペット
- 空調
- 個別空調
- セキュリティ
- 有
- 駐車場
- 有
- 会議室
- -
- エレベーター
- 2基
- 天井高
- -
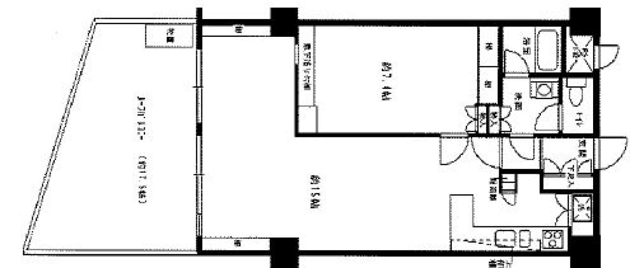
-
間取り図
-
近隣相場情報
平河町2丁目(20坪以下)の相場
15033 円 (坪)
※ビルサク調べ
周辺施設情報
| コンビニ |
セブンイレブン/千代田区麹町3丁目/250m(徒歩3分) ローソン/ナチュラル 平河町森タワー/550m(徒歩7分) |
|---|---|
| 郵便局/銀行 |
イーネット/ファミリーマート都道府県会館/[営業時間]7:30~18:00/500m(徒歩6分) ゆうちょ/ATM 本店 ファミリーマート麹町三丁目店内出張所/[営業時間] [ATM]平日 0:05~23:55 土曜日 0:05~23:55 日曜日・休日 0:05~23:55 [駐車場]なし [取扱]ATM/カードATM [備考]海外発行カードによる現金引き出しサービスにおいて、16言語でご利用いただけます/400m(徒歩6分) |
| 飲食店 |
タコデリオ/11時30分~15時00分/14m(徒歩1分) 紀尾井町 三谷/11時30分~14時00分、17時00分~22時00分/550m(徒歩7分) |
| カフェ |
エクセルシオール/カフェ 平河町森タワー店/[営業時間]平日 8:00~17:00 土曜 - 日祝 - [備考]総席数:38(禁煙席:38 喫煙席:0)/全席禁煙/450m(徒歩5分) BROWN Tables ブラウン/9時00分~17時00分/400m(徒歩5分) |
| コインパーキング |
ユアー・パーキング/平河町第3 [料金] 【全日】 08時~20時 15分/200円 【全日】20時~08時 60分/100円 [最大料金] 月~土:昼間最大(08時~20時の間)3,400円 日 祝:昼間最大(08時~20時の間)1,000円 全 日:夜間最大(20時~08時の間)400円 [台数]5 エコロパーク/平河町第2 [料金] 全日 昼 8時~22時 20分300円 全日 夜 22時~8時 60分100円 [最大料金] 日曜/祝日 最大1500円 全日 夜 22時~8時 最大500円 [台数]5 |
周辺地図
ライオンズマンション平河町は、千代田区平河町にある貸事務所物件です。最寄駅は、東京メトロ半蔵門線半蔵門駅、東京メトロ有楽町線麹町駅、東京メトロ南北線永田町駅です。1979年竣工の事務所利用可マンションです。床はタイルカーペットとなっています。空調は個別空調で、セキュリティは有人警備となっています。最寄駅から徒歩4分。複数路線利用可能で交通アクセスの良い、千代田区平河町の貸事務所です。
全フロア情報
更新日:2025年11月4日
| 階 | 面積 | 賃料 | 共益費 | 敷金 | 入居日 | お問合せ | お気に入り | |
|---|---|---|---|---|---|---|---|---|
| 1F |
22.03 坪 72.83 ㎡ |
※現在空室情報はございません |
※現在空室情報は 確認する |
|||||
|
1F
(1区画) |
17 坪 56.2 ㎡ |
※現在空室情報はございません |
※現在空室情報は 確認する |
|||||
|
1F
(102区画) |
19.27 坪 63.7 ㎡ |
300,000 円 15,568 円(坪) |
込 |
1,200,000 円 4 ヶ月 |
即日 |
|
|
|
|
2F
(205区画) |
9.51 坪 31.44 ㎡ |
※現在空室情報はございません |
※現在空室情報は 確認する |
|||||
|
2F
(208区画) |
11.55 坪 38.19 ㎡ |
※現在空室情報はございません |
※現在空室情報は 確認する |
|||||
| 3F |
7.35 坪 24.31 ㎡ |
※現在空室情報はございません |
※現在空室情報は 確認する |
|||||
| 4F |
16.79 坪 55.5 ㎡ |
※現在空室情報はございません |
※現在空室情報は 確認する |
|||||
お問い合わせ
似た条件の物件はこちら
-
ビュロー平河町
東京都千代田区平河町1-7-16
坪数:15.16 坪
坪単価:19,789 円(坪)
-
センダビル
東京都千代田区麹町3-7-9
坪数:19 坪
坪単価:9,000 円(坪)
-
jeVビル
東京都千代田区平河町2-16-16
坪数:18.06 坪
坪単価:12,735 円(坪)
-
隼東幸ビル
東京都千代田区隼町3-19
坪数:21.15 坪
坪単価:14,000 円(坪)
-
喜助九段北ビル
東京都千代田区九段北1-4-7
坪数:14.13 坪
坪単価:12,000 円(坪)
-
プリンス通ビル
東京都千代田区紀尾井町3-33
坪数:17.48 坪
坪単価:15,446 円(坪)
-
DIK麹町ビル
東京都千代田区麹町1-6-9
坪数:19.27 坪
坪単価:12,500 円(坪)
-
サンライン第14ビル
東京都千代田区九段北4-3-16
坪数:16.34 坪
坪単価:16,524 円(坪)
-
桜ビル
東京都千代田区九段北4-2-2
坪数:16.33 坪
坪単価:12,463 円(坪)
-
Syncs Kojimachi Bldg
東京都千代田区麹町4-2-11
坪数:17.87 坪
坪単価:30,000 円(坪)