アライアンスビル渋谷壱番館(物件No:91780066)
アライアンスビル渋谷壱番館は、渋谷区道玄坂にある貸事務所物件です。最寄駅は各線渋谷駅です。1989年竣工で、基準階が26.63坪の賃貸オフィスビルです。床はOAフロアで、天井の高さは2450mm。トイレは室外で、空調は個別空調です。エレベーターは1基あり、セキュリティは機械警備です。渋谷駅の近くで数多くの店舗が立ち並び、交通アクセスもよく利便性の高い渋谷区道玄坂の貸事務所です。
-
物件情報
-
設備情報
- トイレ
- 室外
- 床
- フリーアクセス
- 空調
- 個別空調
- セキュリティ
- 有
- 駐車場
- 無
- 会議室
- -
- エレベーター
- 1基
- 天井高
- 2450mm
-
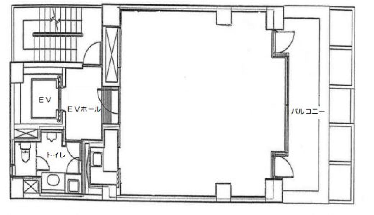
間取り図
-
近隣相場情報
道玄坂1丁目(20~30坪)の相場
36611 円 (坪)
※ビルサク調べ
周辺施設情報
| コンビニ |
ファミリーマート/道玄坂上店/230m(徒歩3分) セブンイレブン/渋谷南平台町/700m(徒歩9分) |
|---|---|
| 郵便局/銀行 |
郵便局/渋谷中央街/平日 9:00-17:00 土曜 - 日曜・祝日 - [ATM]平日 8:00-21:00 土曜 9:00-19:00 日曜・祝日 9:00-18:00/210m(徒歩3分) きらぼし銀行/渋谷駅出張所/[営業時間]店舗 平日 - 土曜日 - 日・祝日 - ATM 平日 7:00~23:00 土曜日 7:00~21:00 日・祝日 7:00~21:00/400m(徒歩5分) |
| 飲食店 |
蛇の健寿司/18:00~24:00(L.O.23:00)/8m(徒歩1分) SAKESTAND/17時00分~23時30分/88m(徒歩1分) |
| カフェ |
幸せのパンケーキ/渋谷店/[営業時間]平日 10:30~20:30(LO19:40) 土日・祝 10:00~20:30(LO19:40) [休業日]不定休 [備考]52席 (完全禁煙)/110m(徒歩1分) カフェドクリエ/道玄坂上/[営業時間][平 日] 7:00-21:00 [土日祝] (土)8:00-21:00 (日/祝)8:00-20:00/210m(徒歩3分) |
| コインパーキング |
名鉄協商パーキング/渋谷第4道玄坂 [料金] 全日 30分 (00:00 - 24:00) 100円 [最大料金] 全日 (入庫より12時間まで) 800円 [台数]24台 三井のリパーク/神泉駅前 [料金] 全日 08:00~22:00 25分/400円 全日 22:00~08:00 25分/400円 [最大料金] 【全日】22:00~8:00以内 最大料金500円 【全日】最大料金入庫後24時間以内2600円 [台数]9 |
周辺地図
アライアンスビル渋谷壱番館は、渋谷区道玄坂にある貸事務所物件です。最寄駅は各線渋谷駅です。1989年竣工で、基準階が26.63坪の賃貸オフィスビルです。床はOAフロアで、天井の高さは2450mm。トイレは室外で、空調は個別空調です。エレベーターは1基あり、セキュリティは機械警備です。渋谷駅の近くで数多くの店舗が立ち並び、交通アクセスもよく利便性の高い渋谷区道玄坂の貸事務所です。
全フロア情報
更新日:2025年12月4日
| 階 | 面積 | 賃料 | 共益費 | 敷金 | 入居日 | お問合せ | お気に入り | |
|---|---|---|---|---|---|---|---|---|
| 2F |
15.3 坪 50.58 ㎡ |
※現在空室情報はございません |
※現在空室情報は 確認する |
|||||
| 3F |
26.63 坪 88.03 ㎡ |
※現在空室情報はございません |
※現在空室情報は 確認する |
|||||
| 4F |
26.63 坪 88.03 ㎡ |
※現在空室情報はございません |
※現在空室情報は 確認する |
|||||
| 5F |
26.63 坪 88.03 ㎡ |
665,750 円 25,000 円(坪) |
込 |
1,331,500 円 2 ヶ月 |
2026/02 |
|
|
|
| 6F |
26.63 坪 88.03 ㎡ |
※現在空室情報はございません |
※現在空室情報は 確認する |
|||||
| 7F |
26.63 坪 88.03 ㎡ |
※現在空室情報はございません |
※現在空室情報は 確認する |
|||||
| 8F |
20.32 坪 67.17 ㎡ |
※現在空室情報はございません |
※現在空室情報は 確認する |
|||||
お問い合わせ
似た条件の物件はこちら
-
渋谷3丁目ビル
東京都渋谷区渋谷3-18-4
坪数:17.43 坪
坪単価:26,000 円(坪)
-
第一暁ビルディング
東京都渋谷区道玄坂1-19-9
坪数:24.14 坪
坪単価:20,713 円(坪)
-
三貴ビル
東京都渋谷区渋谷2-12-12
坪数:15.7 坪
坪単価:22,000 円(坪)
-
倉島渋谷ビル
東京都渋谷区渋谷2-3-8
坪数:20.53 坪
坪単価:18,000 円(坪)
-
アクシーズ7号館ビル
東京都渋谷区渋谷3-17-4
坪数:18 坪
坪単価:20,000 円(坪)
-
第3矢木ビル
東京都渋谷区渋谷3-7-2
坪数:18 坪
坪単価:30,000 円(坪)
-
越一ビル
東京都渋谷区神宮前6-19-16
坪数:19 坪
坪単価:22,000 円(坪)
-
日興パレス外苑
東京都渋谷区神宮前2-13-7
坪数:16.57 坪
坪単価:12,311 円(坪)
-
宮益坂ビルディング
東京都渋谷区渋谷2-19-15
坪数:18.11 坪
坪単価:31,309 円(坪)
-
アロープラザ原宿
東京都渋谷区神宮前4-19-8
坪数:16.17 坪
坪単価:23,613 円(坪)