エバーグレイス本町(物件No:91588006)
エバーグレイス本町は渋谷区本町の3階建ての賃貸事務所物件です。最寄駅は京王線の初台駅より徒歩3分、小田急線の参宮橋駅より徒歩13分です。1990年4月竣工の鉄筋コンクリート造です。設備としてはエレベーターが1基あります。駐車場もあります。空調は個別空調です。床はフリーアクセスです。天高は2m40cmです。新耐震基準をクリアした、最寄駅へのアクセスが非常に便利な渋谷区本町の賃貸オフィス物件です。
| 階 | 面積 | 賃料 | 共益費 | 敷金 | 入居日 | お問合せ | お気に入り | |
|---|---|---|---|---|---|---|---|---|
|
2F
(201区画) |
18 坪 59.49 ㎡ |
※現在空室情報はございません |
※現在空室情報は 確認する |
|||||
| 階 | 面積 | 賃料 | 共益費 | 敷金 | 入居日 | お問合せ | お気に入り | |
|---|---|---|---|---|---|---|---|---|
|
2F
(201区画) |
18 坪 59.49 ㎡ |
※現在空室情報はございません |
※現在空室情報は 確認する |
|||||
-
物件情報
-
設備情報
- トイレ
- 室内男女共用
- 床
- フローリング
- 空調
- 個別空調
- セキュリティ
- -
- 駐車場
- 有
- 会議室
- -
- エレベーター
- 1基
- 天井高
- 2400mm
-
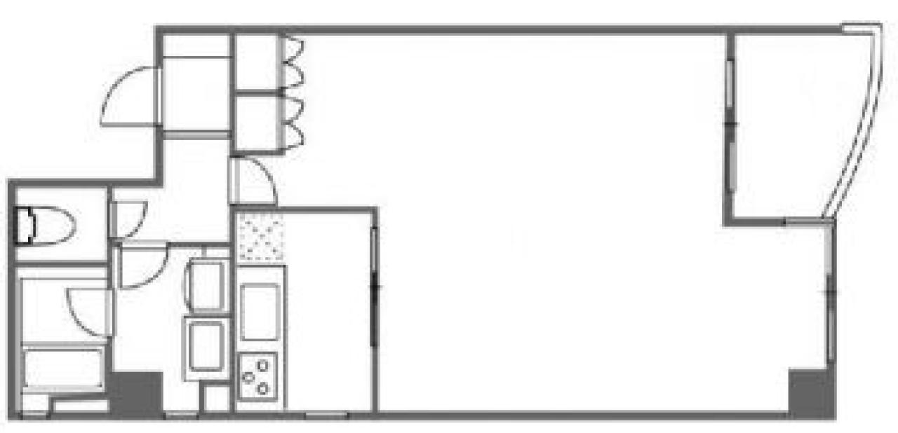
間取り図
-
近隣相場情報
本町1丁目(20坪以下)の相場
11996 円 (坪)
※ビルサク調べ
周辺施設情報
| コンビニ |
ファミリーマート/初台駅北口店/200m(徒歩2分) ミニストップ/西新宿山手通り店/650m(徒歩8分) |
|---|---|
| 郵便局/銀行 |
三菱UFJ銀行/ATM 初台/[営業時間] [ATM]平日 7:00~24:00 土曜日 7:00~24:00 日・祝日 7:00~24:00 *毎月第2土曜日の21:00~翌朝7:00はご利用いただけません。/200m(徒歩3分) きらぼし銀行/代々木支店/[営業時間]店舗 平日 9:00~15:00 土曜日 - 日・祝日 - 【貸金庫ご利用時間】 平日9:00~19:00 土曜・日曜・祝日10:00~17:00 ATM 平日 8:00~21:00 土曜日 8:00~21:00 日・祝日 8:00~21:00/240m(徒歩3分) |
| 飲食店 |
キッチンオリジン 初台店/7時00分~23時00分/220m(徒歩3分) マクドナルド 初台店/6時30分~0時00分/230m(徒歩3分) |
| カフェ |
珈琲館/初台オペラ通り店/[営業時間]平日 08:00~19:00 / 土日祝 08:00~19:00 [休業日]なし [駐車場]無 [備考]38席/喫煙可/240m(徒歩3分) MURRMA COFFEE STOP/8時00分~18時00分/450m(徒歩6分) |
| コインパーキング |
コインパーク/デニーズ西新宿店 [料金] 【 全日 】 ■通常料金 【 オ-ルタイム[24時間] 】 30分/500円 [最大料金] 【 全日 】 【 駐車後24時間以内1回限り 】 2300円 【 全日 】 【 22:00~8:00 】 500円 [台数][車: 28台] 東洋CARMAX/初台 [料金] (平日)8:00-24:00 ¥1,600 (土日祝)8:00-24:00 ¥1,200 24:00-8:00 ¥200 [台数]4 |
周辺地図
エバーグレイス本町は渋谷区本町の3階建ての賃貸事務所物件です。最寄駅は京王線の初台駅より徒歩3分、小田急線の参宮橋駅より徒歩13分です。1990年4月竣工の鉄筋コンクリート造です。設備としてはエレベーターが1基あります。駐車場もあります。空調は個別空調です。床はフリーアクセスです。天高は2m40cmです。新耐震基準をクリアした、最寄駅へのアクセスが非常に便利な渋谷区本町の賃貸オフィス物件です。
全フロア情報
更新日:2025年12月1日
| 階 | 面積 | 賃料 | 共益費 | 敷金 | 入居日 | お問合せ | お気に入り | |
|---|---|---|---|---|---|---|---|---|
|
1F
(D区画) |
19.09 坪 63.11 ㎡ |
※現在空室情報はございません |
※現在空室情報は 確認する |
|||||
|
2F
(201区画) |
18 坪 59.49 ㎡ |
※現在空室情報はございません |
※現在空室情報は 確認する |
|||||
|
2F
(204区画) |
16.05 坪 53.06 ㎡ |
※現在空室情報はございません |
※現在空室情報は 確認する |
|||||
|
2F
(205区画) |
17.99 坪 53.06 ㎡ |
※現在空室情報はございません |
※現在空室情報は 確認する |
|||||
|
2F
(206区画) |
17.99 坪 53.06 ㎡ |
※現在空室情報はございません |
※現在空室情報は 確認する |
|||||
|
2F
(207区画) |
17.83 坪 58.94 ㎡ |
※現在空室情報はございません |
※現在空室情報は 確認する |
|||||
|
3F
(301区画) |
17.99 坪 53.06 ㎡ |
※現在空室情報はございません |
※現在空室情報は 確認する |
|||||
|
3F
(302区画) |
16.05 坪 53.06 ㎡ |
※現在空室情報はございません |
※現在空室情報は 確認する |
|||||
|
3F
(303区画) |
16.05 坪 53.06 ㎡ |
※現在空室情報はございません |
※現在空室情報は 確認する |
|||||
|
3F
(305区画) |
17.99 坪 59.47 ㎡ |
215,880 円 12,000 円(坪) |
無 |
1,295,280 円 6 ヶ月 |
即日 |
|
|
|
お問い合わせ
似た条件の物件はこちら
-
シュバルマラン
東京都渋谷区富ヶ谷2-2-9
坪数:18.3 坪
坪単価:13,500 円(坪)
-
ステラハイム神山
東京都渋谷区神山町5-8
坪数:16.91 坪
坪単価:13,601 円(坪)
-
ACN渋谷幡ヶ谷ビル
東京都渋谷区幡ヶ谷2-1-4
坪数:16.56 坪
坪単価:22,000 円(坪)
-
メティス笹塚ビルディング
東京都渋谷区笹塚1-59-6
坪数:20.57 坪
坪単価:17,000 円(坪)
-
内藤ビル
東京都渋谷区上原1-36-12
坪数:21.72 坪
坪単価:18,416 円(坪)
-
ネオーバビル
東京都渋谷区富ヶ谷2-2-5
坪数:15.37 坪
坪単価:15,615 円(坪)
-
スプリングビル
東京都渋谷区富ヶ谷1-45-13
坪数:19.02 坪
坪単価:18,507 円(坪)
-
初台ロイヤルマンション
東京都渋谷区初台2-27-5
坪数:17.64 坪
坪単価:8,503 円(坪)
-
清水橋矢部ビル
東京都渋谷区本町3-10-3
坪数:17.73 坪
坪単価:11,844 円(坪)
-
パルムハウス初台
東京都渋谷区本町1-20-2
坪数:16.52 坪
坪単価:9,080 円(坪)