ルイマーブル乃木坂(物件No:82742916)
ルイマーブル乃木坂は港区赤坂にある地上5階建ての賃貸事務所です。最寄駅は東京メトロ千代田線の乃木坂駅から徒歩3分、都営大江戸線の六本木駅から徒歩5分、東京メトロ日比谷線の六本木駅から徒歩6分、東京メトロ銀座線の青山一丁目駅から徒歩10分です。1978年6月竣工の鉄筋コンクリート造です。設備としては、エレベーターが1基あります。空調は個別空調です。複数路線利用可能なアクセスの良い港区赤坂の賃貸オフィスです。
-
物件情報
-
設備情報
- トイレ
- 室内男女共用
- 床
- -
- 空調
- 個別空調
- セキュリティ
- -
- 駐車場
- 無
- 会議室
- -
- エレベーター
- 1基
- 天井高
- -
-
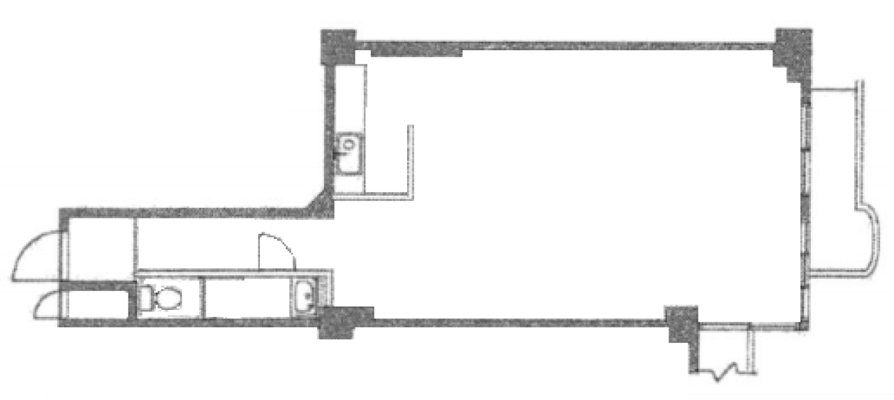
間取り図
-
近隣相場情報
赤坂9丁目(20坪以下)の相場
15021 円 (坪)
※ビルサク調べ
周辺施設情報
| コンビニ |
ローソン/ナチュラル 乃木坂/41m(徒歩1分) セブンイレブン/六本木駅北/500m(徒歩6分) |
|---|---|
| 郵便局/銀行 |
みずほ銀行/ATM 東京ミッドタウン出張所/[営業時間] [ATM]平日 7:00~23:00 土曜日 7:00~22:00 日曜日 8:00~21:00 祝日・振替休日 曜日に準ずる 備考 *設置施設の休業日・休業時間帯は、一般のお客さまはご利用いただけません。*通帳はご利用いただけません。通帳繰越機 設置なし/600m(徒歩7分) スルガ銀行/ミッドタウン支店/[営業時間]平日 09:00-18:00 土曜日 ー 日曜・祝日 ー [ATM]平日 9:00-18:00 土曜日 ー 日曜・祝日 ー/550m(徒歩6分) |
| 飲食店 |
メゾンカイザー 東京ミッドタウン店/11時00分~21時00分/650m(徒歩8分) 乃木坂 鳥幸 本店/17時00分~23時30分/ |
| カフェ |
アンティコカフェ アルアビス 東京ミッドタウン店/7時00分~23時00分/270m(徒歩3分) ニーノ カフェ/9時00分~22時00分/270m(徒歩4分) |
| コインパーキング |
KF-Park/六本木 [料金] 300円/30分(終日) [最大料金] 12時間最大2,400円 夜間最大1,500円(18-6時) [台数]34台 NTTル・パルク/南青山1丁目第7 [料金] 昼 8:00-22:00 20分 300円 夜 22:00-8:00 60分 100円 [最大料金] (月~金)(祝日を除く)駐車後12時間以内 2,800円(一回限り) (土日祝)駐車後12時間以内 2,000円(一回限り) (全日)夜 22:00-8:00 500円(一回限り) [台数]:25台 |
周辺地図
ルイマーブル乃木坂は港区赤坂にある地上5階建ての賃貸事務所です。最寄駅は東京メトロ千代田線の乃木坂駅から徒歩3分、都営大江戸線の六本木駅から徒歩5分、東京メトロ日比谷線の六本木駅から徒歩6分、東京メトロ銀座線の青山一丁目駅から徒歩10分です。1978年6月竣工の鉄筋コンクリート造です。設備としては、エレベーターが1基あります。空調は個別空調です。複数路線利用可能なアクセスの良い港区赤坂の賃貸オフィスです。
全フロア情報
更新日:2025年11月26日
| 階 | 面積 | 賃料 | 共益費 | 敷金 | 入居日 | お問合せ | お気に入り | |
|---|---|---|---|---|---|---|---|---|
| 1F |
16.17 坪 53.45 ㎡ |
※現在空室情報はございません |
※現在空室情報は 確認する |
|||||
|
1F
(1区画) |
10.62 坪 35.11 ㎡ |
※現在空室情報はございません |
※現在空室情報は 確認する |
|||||
|
3F
(303区画) |
17.47 坪 57.75 ㎡ |
※現在空室情報はございません |
※現在空室情報は 確認する |
|||||
| 4F |
14.85 坪 49.09 ㎡ |
※現在空室情報はございません |
※現在空室情報は 確認する |
|||||
| 5F |
17.48 坪 57.77 ㎡ |
※現在空室情報はございません |
※現在空室情報は 確認する |
|||||
|
5F
(504区画) |
13.07 坪 43.2 ㎡ |
200,000 円 12,430 円(坪) |
5,000 円 311 円(坪) |
400,000 円 2 ヶ月 |
即日 |
|
|
|
|
5F
(510区画) |
16.09 坪 53.18 ㎡ |
※現在空室情報はございません |
※現在空室情報は 確認する |
|||||
|
5F
(518区画) |
7.4 坪 24.46 ㎡ |
※現在空室情報はございません |
※現在空室情報は 確認する |
|||||
お問い合わせ
似た条件の物件はこちら
-
SP赤坂ビル
東京都港区赤坂3-15-10
坪数:16.25 坪
坪単価:26,462 円(坪)
-
赤坂Kマンション
東京都港区赤坂2-15-7
坪数:15.81 坪
坪単価:16,302 円(坪)
-
第4文成ビル
東京都港区赤坂7-10-9
坪数:17 坪
坪単価:20,000 円(坪)
-
AKASAKA8 BLDG.
東京都港区赤坂8-8-10
坪数:10.57 坪
坪単価:13,245 円(坪)
-
赤坂余湖ビル
東京都港区赤坂4-8-6
坪数:18.48 坪
坪単価:15,000 円(坪)
-
氷川アネックス2号館
東京都港区赤坂6-9-5
坪数:14.89 坪
坪単価:13,298 円(坪)
-
ゴールド赤坂
東京都港区赤坂3-12-11
坪数:17.58 坪
坪単価:23,891 円(坪)
-
赤坂栄ビル
東京都港区赤坂6-6-4
坪数:14.97 坪
坪単価:10,488 円(坪)
-
笠松千代田ビル
東京都千代田区永田町2-17-4
坪数:11.42 坪
坪単価:23,993 円(坪)
-
アークヒルズエグゼクティブタワー
東京都港区赤坂1-14-5
坪数:15.6 坪
坪単価:21,562 円(坪)