赤坂甲陽ビル(物件No:81886194)
赤坂甲陽ビルは港区赤坂にある地上7階建ての賃貸事務所です。最寄駅は東京メトロ千代田線の赤坂駅から徒歩5分、東京メトロ千代田線の乃木坂駅から徒歩9分、都営大江戸線の六本木駅から徒歩9分です。2011年11月竣工の基準階面積が21.68坪の鉄筋コンクリート造です。設備としては、エレベーターが1基あります。セキュリティは機械警備です。空調は個別空調です。床仕様はフリーアクセスです。天高は2600mmです。耐震設計となっている、複数駅利用可能なアクセスの良い港区赤坂の賃貸オフィスです。
-
物件情報
-
設備情報
- トイレ
- -
- 床
- フリーアクセス
- 空調
- 個別空調
- セキュリティ
- 有
- 駐車場
- -
- 会議室
- -
- エレベーター
- 1基
- 天井高
- 2600mm
-
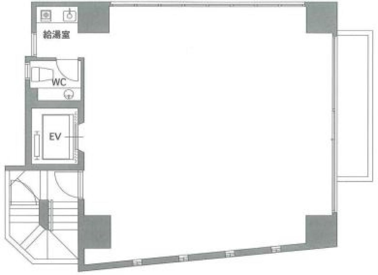
間取り図
-
近隣相場情報
赤坂6丁目(20~30坪)の相場
16000 円 (坪)
※ビルサク調べ
周辺施設情報
コンビニ |
ローソン/ナチュラル 赤坂通/200m(徒歩3分) セブンイレブン/赤坂6丁目/120m(徒歩2分) |
---|---|
郵便局/銀行 |
三井住友銀行/ATM 赤坂5丁目交差点前出張所/[営業時間] [ATM]平日 7:00~24:00 土曜 7:00~24:00 日曜 7:00~21:00/120m(徒歩2分) 郵便局/赤坂七/[駐車場]なし [取扱]郵便/貯金/保険/ATM/300m(徒歩4分) |
飲食店 |
Wakiya 一笑美茶樓/11時30分~14時30分、17時30分~22時00分/120m(徒歩1分) しょう山/17時30分~21時30分/160m(徒歩2分) |
カフェ |
プロント 赤坂TBS店/8時00分~21時00分/550m(徒歩7分) ドトール/赤坂5丁目店/[営業時間]平日:7:00~20:00 土曜日:8:00~19:00 日 祝:8:00~18:30 [休業日]なし [備考]総席数:62 禁煙席:48 喫煙席:14/350m(徒歩4分) |
コインパーキング |
タイムズ駐車場/赤坂6丁目第2 [料金] [月~土]通常料金 / 00:00-00:00 20分 300円 [日・祝]通常料金 / 00:00-00:00 20分 300円 [最大料金] [月~土]08:00-19:00 最大料金2800円 19:00-08:00 最大料金600円 [日・祝]08:00-19:00 最大料金1800円 19:00-08:00 最大料金600円 [台数]4 ユアー・パーキング/赤坂6丁目臨時第2 [料金] 【全日】 08時~21時 20分/400円 【全日】 21時~08時 60分/300円 [最大料金] 昼間最大(08時~21時の間)3,500円 夜間最大(21時~08時の間)900円 [台数]5 |
周辺地図
赤坂甲陽ビルは港区赤坂にある地上7階建ての賃貸事務所です。最寄駅は東京メトロ千代田線の赤坂駅から徒歩5分、東京メトロ千代田線の乃木坂駅から徒歩9分、都営大江戸線の六本木駅から徒歩9分です。2011年11月竣工の基準階面積が21.68坪の鉄筋コンクリート造です。設備としては、エレベーターが1基あります。セキュリティは機械警備です。空調は個別空調です。床仕様はフリーアクセスです。天高は2600mmです。耐震設計となっている、複数駅利用可能なアクセスの良い港区赤坂の賃貸オフィスです。
全フロア情報
更新日:2021年2月15日
階 | 面積 | 賃料 | 共益費 | 敷金 | 入居日 | お問合せ | お気に入り | |
---|---|---|---|---|---|---|---|---|
1F |
16.75 坪 55.37 ㎡ |
※現在空室情報はございません |
※現在空室情報は 確認する |
|||||
6F |
21.68 坪 71.67 ㎡ |
※現在空室情報はございません |
※現在空室情報は 確認する |
|||||
7F |
21.68 坪 71.67 ㎡ |
※現在空室情報はございません |
※現在空室情報は 確認する |
お問い合わせ
似た条件の物件はこちら
-
ライオンズマンション赤坂
東京都港区赤坂7-5-6
坪数:22.7 坪
坪単価:17,000 円(坪)
-
第4文成ビル
東京都港区赤坂7-10-9
坪数:17 坪
坪単価:20,000 円(坪)
-
赤坂余湖ビル
東京都港区赤坂4-8-6
坪数:18.48 坪
坪単価:15,000 円(坪)
-
赤坂ASビル
東京都港区赤坂7-11-10
坪数:20.8 坪
坪単価:16,000 円(坪)
-
ゴールド赤坂
東京都港区赤坂3-12-11
坪数:17.58 坪
坪単価:23,891 円(坪)
-
赤坂鈴木ビル
東京都港区赤坂3-19-13
坪数:21.56 坪
坪単価:26,438 円(坪)
-
第2中田ビル
東京都港区赤坂1-3-15
坪数:21 坪
坪単価:15,952 円(坪)
-
内田ビル
東京都港区赤坂2-19-5
坪数:20.57 坪
坪単価:8,653 円(坪)
-
溜池山王葵ビル
東京都港区赤坂2-8-11
坪数:20.09 坪
坪単価:16,008 円(坪)
-
赤坂ヒルサイド
東京都港区赤坂2-20-13
坪数:23.34 坪
坪単価:13,925 円(坪)