いろいろ聞いてみる

湊の賃貸オフィス

TOMACビル(物件No:81780153)

TOMACビルは中央区湊にある地上7階建ての賃貸事務所です。最寄駅は東京メトロ有楽町線の新富町駅から徒歩4分、東京メトロ日比谷線の八丁堀駅から徒歩5分、JR京葉線の八丁堀駅から徒歩5分です。1978年8月竣工の基準階面積が83.17坪の鉄骨鉄筋コンクリート造です。設備としてはエレベーターが1基あり、駐車場もあります。機械警備もあります。トイレは男女別です。空調は個別空調です。最寄駅から駅近で便利な中央区湊の賃貸オフィスです。

面積 賃料 共益費 敷金 入居日 お問合せ お気に入り
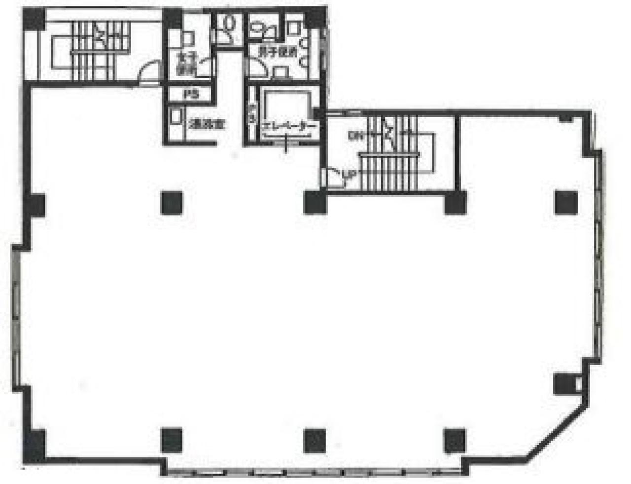
4F

245.16 坪

810.45 ㎡

※現在空室情報はございません

※現在空室情報は
ございません

最新情報を
確認する
  • TOMACビル
  • TOMACビル
  • TOMACビル
  • TOMACビル
面積 賃料 共益費 敷金 入居日 お問合せ お気に入り
4F

245.16 坪

810.45 ㎡

※現在空室情報はございません

※現在空室情報は
ございません

最新情報を
確認する

周辺施設情報

コンビニ

ローソン/入船/38m(徒歩1分)

ファミリーマート/湊二丁目店/120m(徒歩1分)

郵便局/銀行

郵便局/聖路加ガーデン内/平日 9:00-17:00 土曜 - 日曜・祝日 - [ATM]平日 8:00-21:00 土曜 9:00-18:00 日曜・祝日 9:00-18:00/650m(徒歩8分)

きらぼし銀行/八丁堀支店/[営業時間]店舗 平日 9:00~15:00 土曜日 - 日・祝日 - 【貸金庫ご利用時間】 平日9:00~18:00 ATM 平日 8:00~21:00 土曜日 8:00~21:00 日・祝日 8:00~21:00/260m(徒歩3分)

飲食店

むら山/11:00~14:30、17:30~22:30/55m(徒歩1分)

Cafe Izumi/10:30?21:00/74m(徒歩1分)

カフェ

アリエッタ/[営業時間]12:00?16:00/350m(徒歩4分)

PUG/[営業時間]08:00 - 18:00 /110m(徒歩1分)

コインパーキング

名鉄協商パーキング/入船第3

[料金]

全日 20分 (00:00 - 24:00) 400円

[最大料金]

平日・土 (08:00 - 20:00) 3,400円、 日祝 (08:00 - 20:00) 900円

全日 (20:00 - 08:00) 400円

[台数]7台

タイムズ駐車場/中央区湊3丁目

[料金]

[月~土]08:00-22:00 20分 300円 22:00-08:00 60分 100円

[日・祝]08:00-22:00 20分 300円 22:00-08:00 60分 100円

[最大料金]

[月~土]当日1日3000円(24時迄)

[日・祝]当日1日1000円(24時迄)

[台数]20

周辺地図

TOMACビルは中央区湊にある地上7階建ての賃貸事務所です。最寄駅は東京メトロ有楽町線の新富町駅から徒歩4分、東京メトロ日比谷線の八丁堀駅から徒歩5分、JR京葉線の八丁堀駅から徒歩5分です。1978年8月竣工の基準階面積が83.17坪の鉄骨鉄筋コンクリート造です。設備としてはエレベーターが1基あり、駐車場もあります。機械警備もあります。トイレは男女別です。空調は個別空調です。最寄駅から駅近で便利な中央区湊の賃貸オフィスです。

全フロア情報

更新日:2025年11月10日

面積 賃料 共益費 敷金 入居日 お問合せ お気に入り
2F

74.16 坪

245.16 ㎡

※現在空室情報はございません

※現在空室情報は
ございません

最新情報を
確認する
4F

245.16 坪

810.45 ㎡

※現在空室情報はございません

※現在空室情報は
ございません

最新情報を
確認する
5F

74.16 坪

245.16 ㎡

889,920 円

12,000 円(坪)

5,339,520 円

6 ヶ月

2025/12 お問い合わせ お気に入り
6F

50.74 坪

167.74 ㎡

※現在空室情報はございません

※現在空室情報は
ございません

最新情報を
確認する

お問い合わせ

必須
必須
必須
必須
必須

関連エリアから探す

駅から探す

お問い合わせ

物件に関してのお問い合わせ

「失敗しないオフィス移転サポート」物件探しから移転までスムーズで担当者様がとにかく楽になるサービスです。

050-7587-0049平日 9:00~18:00

メールでお問い合わせ

フリーワード検索