TOMACビル(物件No:81780153)
TOMACビルは中央区湊にある地上7階建ての賃貸事務所です。最寄駅は東京メトロ有楽町線の新富町駅から徒歩4分、東京メトロ日比谷線の八丁堀駅から徒歩5分、JR京葉線の八丁堀駅から徒歩5分です。1978年8月竣工の基準階面積が83.17坪の鉄骨鉄筋コンクリート造です。設備としてはエレベーターが1基あり、駐車場もあります。機械警備もあります。トイレは男女別です。空調は個別空調です。最寄駅から駅近で便利な中央区湊の賃貸オフィスです。
-
物件情報
-
設備情報
- トイレ
- -
- 床
- -
- 空調
- 個別空調
- セキュリティ
- 有
- 駐車場
- 有
- 会議室
- -
- エレベーター
- 1基
- 天井高
- -
-
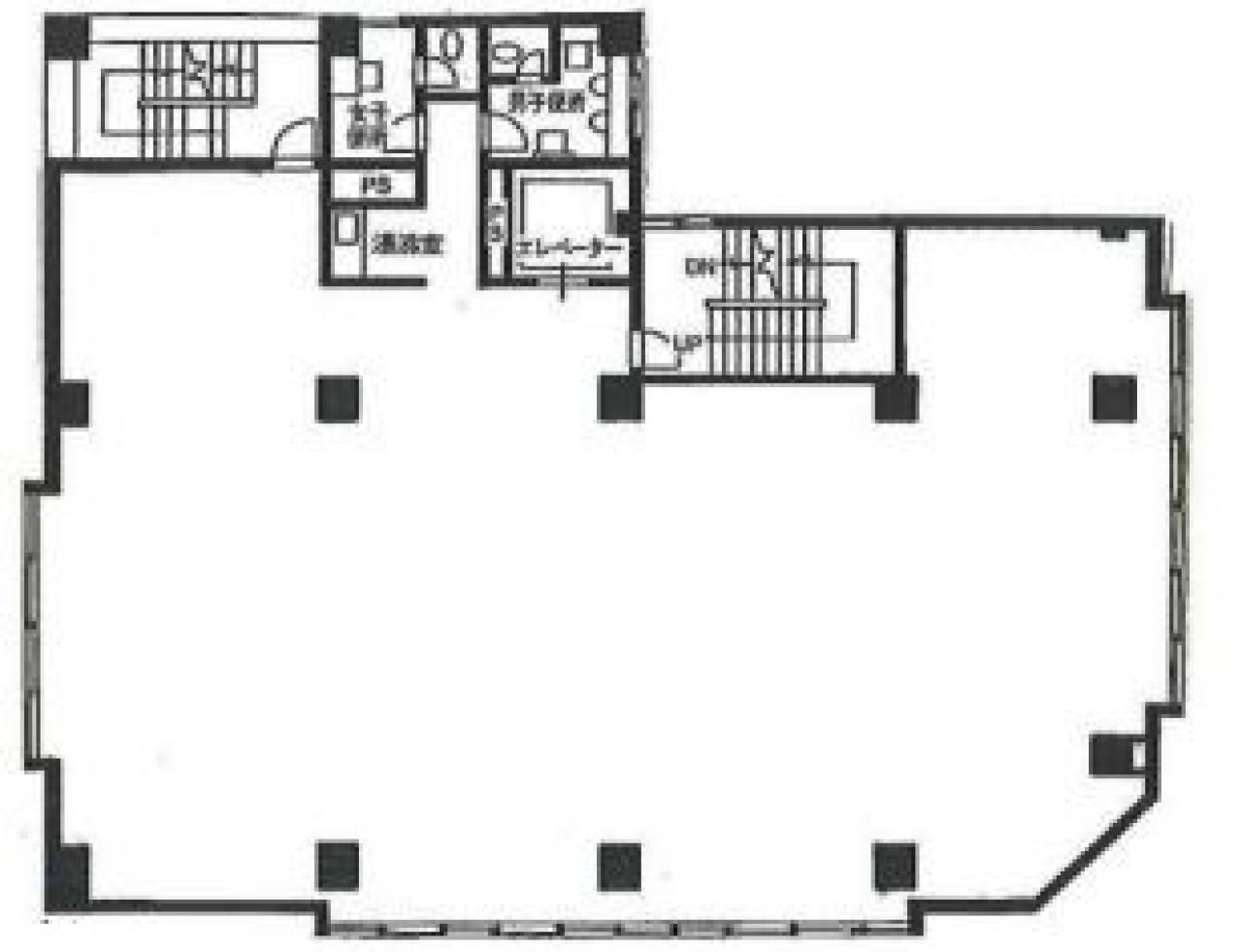
間取り図
-
近隣相場情報
湊2丁目(50~100坪)の相場
13496 円 (坪)
※ビルサク調べ
周辺施設情報
コンビニ |
ローソン/入船/38m(徒歩1分) ファミリーマート/湊二丁目店/120m(徒歩1分) |
---|---|
郵便局/銀行 |
郵便局/聖路加ガーデン内/平日 9:00-17:00 土曜 - 日曜・祝日 - [ATM]平日 8:00-21:00 土曜 9:00-18:00 日曜・祝日 9:00-18:00/650m(徒歩8分) きらぼし銀行/八丁堀支店/[営業時間]店舗 平日 9:00~15:00 土曜日 - 日・祝日 - 【貸金庫ご利用時間】 平日9:00~18:00 ATM 平日 8:00~21:00 土曜日 8:00~21:00 日・祝日 8:00~21:00/260m(徒歩3分) |
飲食店 |
むら山/11:00~14:30、17:30~22:30/55m(徒歩1分) Cafe Izumi/10:30?21:00/74m(徒歩1分) |
カフェ |
アリエッタ/[営業時間]12:00?16:00/350m(徒歩4分) PUG/[営業時間]08:00 - 18:00 /110m(徒歩1分) |
コインパーキング |
名鉄協商パーキング/入船第3 [料金] 全日 20分 (00:00 - 24:00) 400円 [最大料金] 平日・土 (08:00 - 20:00) 3,400円、 日祝 (08:00 - 20:00) 900円 全日 (20:00 - 08:00) 400円 [台数]7台 タイムズ駐車場/中央区湊3丁目 [料金] [月~土]08:00-22:00 20分 300円 22:00-08:00 60分 100円 [日・祝]08:00-22:00 20分 300円 22:00-08:00 60分 100円 [最大料金] [月~土]当日1日3000円(24時迄) [日・祝]当日1日1000円(24時迄) [台数]20 |
周辺地図
TOMACビルは中央区湊にある地上7階建ての賃貸事務所です。最寄駅は東京メトロ有楽町線の新富町駅から徒歩4分、東京メトロ日比谷線の八丁堀駅から徒歩5分、JR京葉線の八丁堀駅から徒歩5分です。1978年8月竣工の基準階面積が83.17坪の鉄骨鉄筋コンクリート造です。設備としてはエレベーターが1基あり、駐車場もあります。機械警備もあります。トイレは男女別です。空調は個別空調です。最寄駅から駅近で便利な中央区湊の賃貸オフィスです。
全フロア情報
更新日:2025年9月24日
階 | 面積 | 賃料 | 共益費 | 敷金 | 入居日 | お問合せ | お気に入り | |
---|---|---|---|---|---|---|---|---|
2F |
74.16 坪 245.16 ㎡ |
※現在空室情報はございません |
※現在空室情報は 確認する |
|||||
4F |
245.16 坪 810.45 ㎡ |
※現在空室情報はございません |
※現在空室情報は 確認する |
|||||
5F |
74.16 坪 245.16 ㎡ |
889,920 円 12,000 円(坪) |
込 |
5,339,520 円 6 ヶ月 |
2025/12 |
|
|
|
6F |
50.74 坪 167.74 ㎡ |
※現在空室情報はございません |
※現在空室情報は 確認する |
お問い合わせ
似た条件の物件はこちら
-
築地リバーフロント
東京都中央区明石町7-14
坪数:69.01 坪
坪単価:21,500 円(坪)
-
Misto Tsukiji
東京都中央区築地2-11-10
坪数:75.24 坪
坪単価:26,000 円(坪)
-
ヤマト第1ビル
東京都中央区新富1-13-21
坪数:82 坪
坪単価:12,000 円(坪)
-
ビルネット築地ビル
東京都中央区築地2-12-10
坪数:88.55 坪
坪単価:11,000 円(坪)
-
政光ビル
東京都中央区入船2-7-4
坪数:65.06 坪
坪単価:14,000 円(坪)
-
ザ・パークレックス新富町
東京都中央区新富1-9-6
坪数:65.37 坪
坪単価:17,000 円(坪)
-
辻幸山之内ビル
東京都中央区湊3-13-6
坪数:63.73 坪
坪単価:10,984 円(坪)
-
大倉ビル
東京都中央区築地2-11-5
坪数:61.03 坪
坪単価:11,142 円(坪)
-
IXOSビル
東京都中央区湊2-12-11
坪数:59.23 坪
坪単価:17,000 円(坪)
-
築地センタービル
東京都中央区築地6-25-10
坪数:70.97 坪
坪単価:17,000 円(坪)