Tツウィンズビル(物件No:81688127)
Tツウィンズビルは、文京区根津にある貸事務所物件です。最寄り駅は、東京メトロ千代田線の根津駅、千駄木駅、東京メトロ南北線の東大前駅、本駒込駅、JR常磐線の日暮里駅、京成本線の日暮里駅です。1992年竣工で、基準階が28.68坪の賃貸オフィスビルです。床はタイルカーペットとなっております。空調は個別空調です。機械警備で、エレベーターは1基あります。複数路線利用可能な、アクセスの良い文京区根津の貸事務所です。
-
物件情報
-
設備情報
- トイレ
- 室内男女共用
- 床
- タイルカーペット
- 空調
- 個別空調
- セキュリティ
- 有
- 駐車場
- 無
- 会議室
- -
- エレベーター
- 1基
- 天井高
- -
-
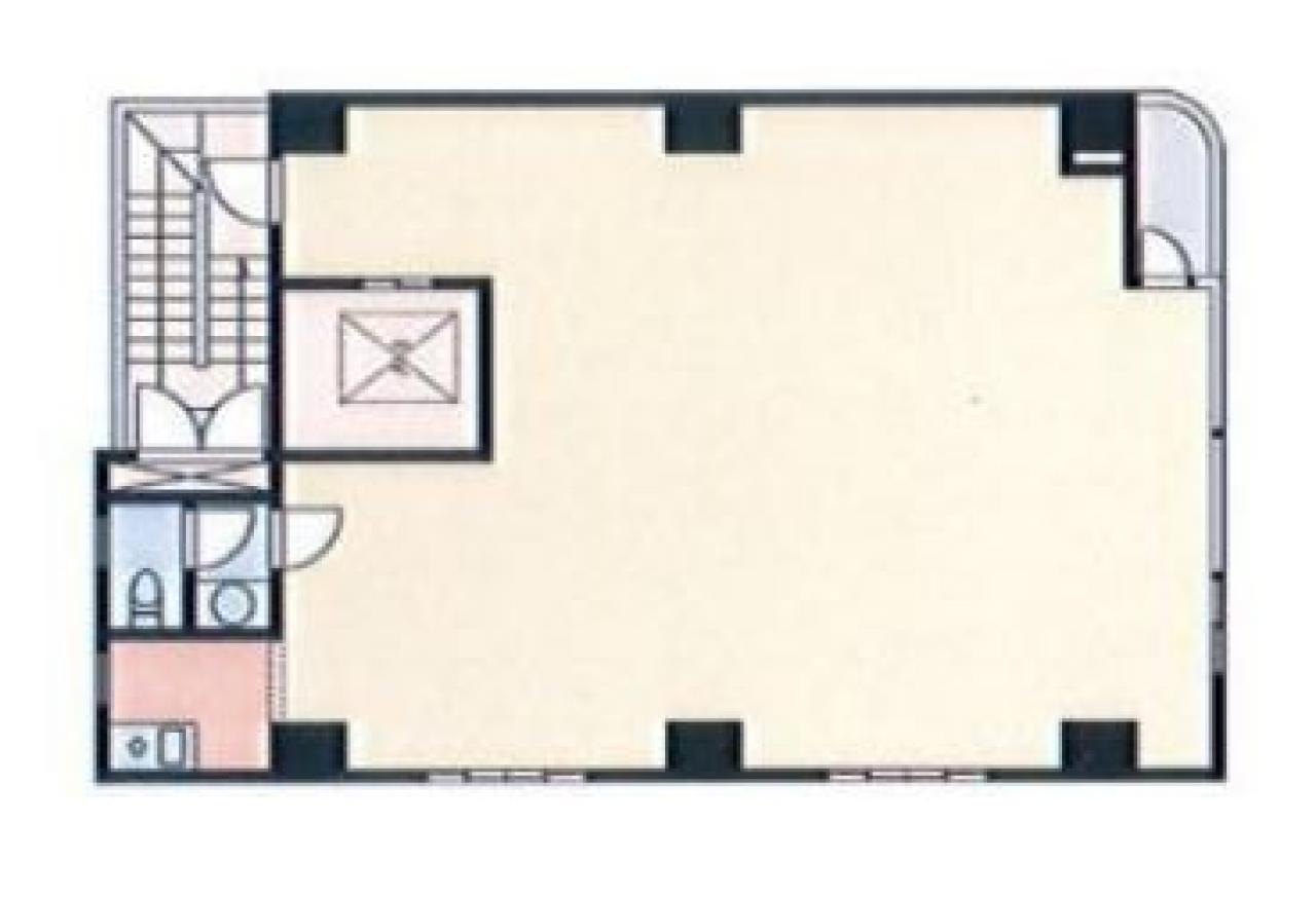
間取り図
-
近隣相場情報
根津2丁目(20~30坪)の相場
調査中
周辺施設情報
| コンビニ |
ローソンストア100/東京大学工学部三号館/850m(徒歩11分) デイリーヤマザキ/根津北嶋店/100m(徒歩1分) |
|---|---|
| 郵便局/銀行 |
みずほ銀行/ATM 根津駅前出張所/[営業時間]平日 6:00~26:00 土曜日 8:00~22:00 日曜日 8:00~21:00 祝日・振替休日 8:00~21:00 備考 *月曜日の6:00~7:00はご利用いただけません。/300m(徒歩4分) ゆうちょ/ATM 本店 ファミリーマート台東池之端店内出張所/[営業時間] [ATM]平日 0:05~23:55 土曜日 0:05~23:55 日曜日・休日 0:05~23:55 [駐車場]なし [取扱]ATM/カードATM [備考]海外発行カードによる現金引き出しサービスにおいて、16言語でご利用いただけます/450m(徒歩6分) |
| 飲食店 |
酒菜 ひより/17時00分~23時00分/47m(徒歩1分) 根津 たけもと/17時00分~22時00分/12m(徒歩1分) |
| カフェ |
モグラコーヒー/10時00分~20時00分/300m(徒歩4分) ハミングバードカフェ/11時00分~19時00分/400m(徒歩5分) |
| コインパーキング |
小田急パーキング/根津2丁目第1 [料金] オールタイム 20分/200円 [最大料金] 月~金 入庫後12時間以内 1,800円 土日祝 入庫後12時間以内 2,400円 夜間(18時~8時) 600円 [台数]4台 ナビパーク/池之端第3 [料金] 全曜日 8:00~22:00 30分/300円 全曜日 22:00~8:00 60分/100円 [最大料金] 24時間最大(全曜日)1,700円 夜間最大(全曜日)22:00~8:00 500円 繰返し有 [台数]3台 |
周辺地図
Tツウィンズビルは、文京区根津にある貸事務所物件です。最寄り駅は、東京メトロ千代田線の根津駅、千駄木駅、東京メトロ南北線の東大前駅、本駒込駅、JR常磐線の日暮里駅、京成本線の日暮里駅です。1992年竣工で、基準階が28.68坪の賃貸オフィスビルです。床はタイルカーペットとなっております。空調は個別空調です。機械警備で、エレベーターは1基あります。複数路線利用可能な、アクセスの良い文京区根津の貸事務所です。
全フロア情報
更新日:2025年10月31日
| 階 | 面積 | 賃料 | 共益費 | 敷金 | 入居日 | お問合せ | お気に入り | |
|---|---|---|---|---|---|---|---|---|
| 1F |
17.61 坪 58.2 ㎡ |
※現在空室情報はございません |
※現在空室情報は 確認する |
|||||
| 3F |
28.68 坪 94.81 ㎡ |
※現在空室情報はございません |
※現在空室情報は 確認する |
|||||
| 5F |
22.15 坪 73.22 ㎡ |
※現在空室情報はございません |
※現在空室情報は 確認する |
|||||
お問い合わせ
似た条件の物件はこちら
-
岡本ビル
東京都文京区白山2-2-11
坪数:32.76 坪
坪単価:8,000 円(坪)
-
シンク白山
東京都文京区白山1-19-6
坪数:29.33 坪
坪単価:11,592 円(坪)
-
イントランス本駒込ビル
東京都文京区本駒込2-27-15
坪数:28.40 坪
坪単価:11,972 円(坪)
-
白山田澤ビル
東京都文京区白山1-33-21
坪数:29.74 坪
坪単価:30,262 円(坪)
-
平林ビル
東京都文京区白山2-30-2
坪数:26 坪
坪単価:7,692 円(坪)
-
赤池ビル
東京都文京区白山1-30-10
坪数:32.11 坪
坪単価:12,021 円(坪)
-
本駒込Kマンション
東京都文京区本駒込4-40-3
坪数:20.43 坪
坪単価:11,013 円(坪)
-
アーバン内田ビル
東京都文京区根津1-16-10
坪数:18.95 坪
坪単価:11,993 円(坪)
-
ATK千駄木ビル
東京都文京区千駄木3-43-3
坪数:29.04 坪
坪単価:12,000 円(坪)
-
千石グリーンパーク
東京都文京区千石1-16-7
坪数:20.00 坪
坪単価:7,500 円(坪)