銀座Aビル(物件No:81683122)
銀座Aビルは、中央区銀座にある貸事務所物件で、最寄り駅は地下鉄有楽町線の銀座一丁目駅です。1982年竣工の物件で、基準階108.18坪の賃貸オフィスビルです。耐震補強実施済みで、EVは2基設置されています。駐車場が有り、セキュリティは機械警備です。床はOAフロアです。他に銀座線京橋駅と都営浅草線の宝町駅からもアクセスの良い中央区銀座の貸事務所です。
-
物件情報
-
設備情報
- トイレ
- -
- 床
- -
- 空調
- 個別空調
- セキュリティ
- 有
- 駐車場
- 有
- 会議室
- -
- エレベーター
- 2基
- 天井高
- -
-
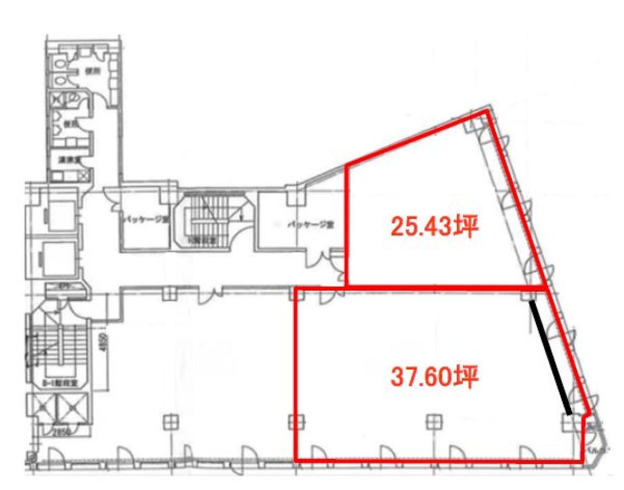
間取り図
-
近隣相場情報
銀座1丁目(20~30坪)の相場
18624 円 (坪)
※ビルサク調べ
周辺施設情報
| コンビニ |
セブンイレブン 銀座通り口店/59m(徒歩1分) ファミリーマート/銀座二丁目店/250m(徒歩3分) |
|---|---|
| 郵便局/銀行 |
セブン銀行/銀座通り口店/[営業時間]24時間営業 [備考]1 台/59m(徒歩1分) 三菱UFJ銀行/京橋支店/[営業時間] [窓口]平日 9:00~15:00 土曜日 - 日曜日 -/58m(徒歩1分) |
| 飲食店 |
雪ノ下銀座/11時00分~20時00分/78m(徒歩1分) 焼肉うしごろ 銀座店/12時00分~23時30分/37m(徒歩1分) |
| カフェ |
カフェフレディ 銀座店/ 11時00分~20時30分/180m(徒歩2分) ルノアール/銀座1丁目柳通り店/[営業時間]平日:8:00~23:00 土曜日:8:00~23:00 日祝日:8:00~22:00/120m(徒歩1分) |
| コインパーキング |
三井のリパーク/銀座越後屋ビル駐車場 [料金] [料金]全日 08:00~00:00 30分/300円、全日 00:00~08:00 30分/300円 [最大料金] 最大料金 入庫当日24:00迄 2,000円、夜間24:00-8:00迄入出庫不可 24:00-8:00迄1,000円 [台数]30? コインパーク/銀座1丁目第2 [料金] [料金]【全日】 【オールタイム(24時間)】20分500円 【8:00~20:00】4200円 【20:00~8:00】2000円 [台数][車: 4台] |
周辺地図
銀座Aビルは、中央区銀座にある貸事務所物件で、最寄り駅は地下鉄有楽町線の銀座一丁目駅です。1982年竣工の物件で、基準階108.18坪の賃貸オフィスビルです。耐震補強実施済みで、EVは2基設置されています。駐車場が有り、セキュリティは機械警備です。床はOAフロアです。他に銀座線京橋駅と都営浅草線の宝町駅からもアクセスの良い中央区銀座の貸事務所です。
全フロア情報
更新日:2025年11月23日
| 階 | 面積 | 賃料 | 共益費 | 敷金 | 入居日 | お問合せ | お気に入り | |
|---|---|---|---|---|---|---|---|---|
| B1F |
75.55 坪 249.75 ㎡ |
※現在空室情報はございません |
※現在空室情報は 確認する |
|||||
| 2F |
102.31 坪 338.21 ㎡ |
※現在空室情報はございません |
※現在空室情報は 確認する |
|||||
| 3F |
102.3 坪 338.18 ㎡ |
※現在空室情報はございません |
※現在空室情報は 確認する |
|||||
| 5F |
102.3 坪 338.18 ㎡ |
※現在空室情報はございません |
※現在空室情報は 確認する |
|||||
|
7F
(1区画) |
37.6 坪 124.3 ㎡ |
※現在空室情報はございません |
※現在空室情報は 確認する |
|||||
|
7F
(2区画) |
25.43 坪 84.07 ㎡ |
※現在空室情報はございません |
※現在空室情報は 確認する |
|||||
|
7F
(3区画) |
20.7 坪 68.43 ㎡ |
※現在空室情報はございません |
※現在空室情報は 確認する |
|||||
お問い合わせ
似た条件の物件はこちら
-
ムサシ7ビル
東京都中央区銀座7-2-4
坪数:33.6 坪
坪単価:25,000 円(坪)
-
SRビル
東京都中央区銀座8-12-3
坪数:19.16 坪
坪単価:18,000 円(坪)
-
杉山ビル
東京都中央区銀座7-14-15
坪数:22.8 坪
坪単価:14,035 円(坪)
-
OPPEN GINZA BLDG
東京都中央区銀座1-13-10
坪数:20.01 坪
坪単価:10,000 円(坪)
-
ACN銀座ビル
東京都中央区銀座8-15-2
坪数:30.22 坪
坪単価:23,200 円(坪)
-
正金ビル
東京都中央区銀座8-11-5
坪数:33.89 坪
坪単価:15,000 円(坪)
-
三福ビル
東京都中央区銀座4-8-2
坪数:17.50 坪
坪単価:22,000 円(坪)
-
銀座藤ビル
東京都中央区銀座2-12-10
坪数:15.8 坪
坪単価:21,000 円(坪)
-
銀座ワカホビル
東京都中央区銀座5-14-8
坪数:24 坪
坪単価:17,000 円(坪)
-
銀座7丁目銀ビル
東京都中央区銀座7-15-18
坪数:34.6 坪
坪単価:10,983 円(坪)