宝照ビル(物件No:81387151)
宝照ビルは東京都中央区京橋にある地下2階、地上6階建ての賃貸事務所です。最寄駅は都営浅草線の宝町駅から徒歩1分、東京メトロ日比谷線の八丁堀駅から徒歩7分、東京メトロ銀座線の京橋駅から徒歩2分、JR京葉線の八丁堀駅から徒歩8分、東京メトロ有楽町線の銀座一丁目駅から徒歩5分です。1991年竣工の基準階面積が22.73坪の鉄筋コンクリート造です。設備としてはエレベーターが1基あり、機械警備もあります。空調は個別空調です。耐震性は新耐震となっている、最寄駅から駅近で便利な東京都中央区京橋の賃貸オフィスです。
-
物件情報
-
設備情報
- トイレ
- 室内男女共用
- 床
- タイルカーペット
- 空調
- 個別空調
- セキュリティ
- 有
- 駐車場
- 無
- 会議室
- -
- エレベーター
- 1基
- 天井高
- 2390mm
-
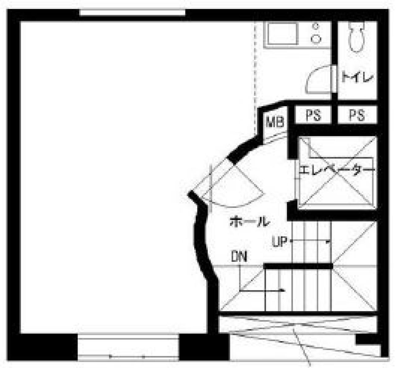
間取り図
-
近隣相場情報
京橋2丁目(20坪以下)の相場
20880 円 (坪)
※ビルサク調べ
周辺施設情報
| コンビニ |
ファミリーマート/京橋二丁目店/74m(徒歩1分) ミニストップ/宝町駅前店/180m(徒歩3分) |
|---|---|
| 郵便局/銀行 |
イーネット/ファミリーマート京橋二丁目/[営業時間]0:00~24:00/74m(徒歩1分) 広島銀行/東京支店/[営業時間]平日 9:00~15:00/160m(徒歩2分) |
| 飲食店 |
喜多方ラーメン 坂内 京橋店/ 11時00分~23時00分/120m(徒歩1分) レストランサカキ/11時30分~13時40分,18時00分~20時00分/37m(徒歩1分) |
| カフェ |
プロント/読売八重洲ビル店/[営業時間]平日:カフェ 8:00~19:00 /140m(徒歩2分) 上島珈琲店/京橋2丁目店/[営業時間]平日 7:00~21:00 / 土日祝 8:00~19:00 /230m(徒歩3分) |
| コインパーキング |
NPD/日土地京橋ビル駐車場 [料金] [営業時間]平日 7:00 ~ 22:00 土曜日 休 日祝 休 最初 700円/60分 通常 350円/30分 [最大料金] 平日 1800円/1日 宿泊料金 1000円 三井のリパーク/京橋2丁目 [料金] [料金]全日 00:00~24:00 10分/400円 [台数]3 |
周辺地図
宝照ビルは東京都中央区京橋にある地下2階、地上6階建ての賃貸事務所です。最寄駅は都営浅草線の宝町駅から徒歩1分、東京メトロ日比谷線の八丁堀駅から徒歩7分、東京メトロ銀座線の京橋駅から徒歩2分、JR京葉線の八丁堀駅から徒歩8分、東京メトロ有楽町線の銀座一丁目駅から徒歩5分です。1991年竣工の基準階面積が22.73坪の鉄筋コンクリート造です。設備としてはエレベーターが1基あり、機械警備もあります。空調は個別空調です。耐震性は新耐震となっている、最寄駅から駅近で便利な東京都中央区京橋の賃貸オフィスです。
全フロア情報
更新日:2025年11月15日
| 階 | 面積 | 賃料 | 共益費 | 敷金 | 入居日 | お問合せ | お気に入り | |
|---|---|---|---|---|---|---|---|---|
| B1F |
20.25 坪 66.94 ㎡ |
※現在空室情報はございません |
※現在空室情報は 確認する |
|||||
| 2F |
10.3 坪 34.05 ㎡ |
※現在空室情報はございません |
※現在空室情報は 確認する |
|||||
| 3F |
10.3 坪 34.05 ㎡ |
※現在空室情報はございません |
※現在空室情報は 確認する |
|||||
| 4F |
10.3 坪 34.05 ㎡ |
※現在空室情報はございません |
※現在空室情報は 確認する |
|||||
| 5-6F |
22.73 坪 75.14 ㎡ |
※現在空室情報はございません |
※現在空室情報は 確認する |
|||||
お問い合わせ
似た条件の物件はこちら
-
朝日第3ビル
東京都中央区日本橋本石町4-4-12
坪数:12 坪
坪単価:13,000 円(坪)
-
日本橋滄浪閣ビル
東京都中央区日本橋本町1-8-13
坪数:13.17 坪
坪単価:22,000 円(坪)
-
吉川ビル
東京都中央区日本橋本石町4-5-15
坪数:15 坪
坪単価:14,500 円(坪)
-
土屋ビル
東京都中央区京橋1-14-5
坪数:13.22 坪
坪単価:13,409 円(坪)
-
藤木ビル
東京都中央区京橋2-6-6
坪数:10.2 坪
坪単価:20,000 円(坪)
-
A・M京橋ビル
東京都中央区京橋2-5-2
坪数:13.23 坪
坪単価:25,000 円(坪)
-
第18SYビル
東京都中央区日本橋本石町4-3-8
坪数:12.19 坪
坪単価:16,407 円(坪)
-
日本工築1号館ビル
東京都中央区京橋2-9-12
坪数:9 坪
坪単価:15,000 円(坪)
-
北村ビルディング
東京都中央区八重洲2-6-16
坪数:6.00 坪
坪単価:14,500 円(坪)
-
第2中央ビル
東京都中央区日本橋3-8-6
坪数:15 坪
坪単価:18,000 円(坪)