マルキョウ新川ビル(物件No:81384163)
マルキョウ新川ビルは、中央区新川にある貸事務所物件です。最寄駅は、東京メトロ東西線、日比谷線茅場町駅、都営浅草線宝町駅、JR八丁堀駅です。1982年竣工で、基準階が108.92坪の賃貸オフィスビルです。天井の高さは2500mmとなっています。トイレは室内男女別で、空調は個別空調です。エレベーターは1基あります。駐車場が利用可能です。最寄駅から徒歩2分。複数路線利用可能で交通アクセスの良い、中央区新川の貸事務所です。
-
物件情報
-
設備情報
- トイレ
- 室外男女別
- 床
- タイルカーペット
- 空調
- 個別空調
- セキュリティ
- -
- 駐車場
- 有
- 会議室
- -
- エレベーター
- 1基
- 天井高
- -
-
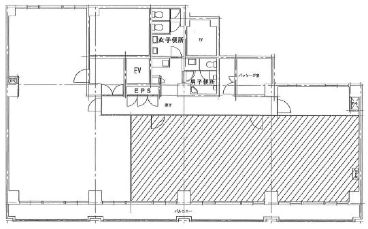
間取り図
-
近隣相場情報
新川2丁目(30~40坪)の相場
16515 円 (坪)
※ビルサク調べ
周辺施設情報
| コンビニ |
ローソン/八丁堀二丁目/150m(徒歩2分) まいばすけっと/新川2丁目店/160m(徒歩2分) |
|---|---|
| 郵便局/銀行 |
三菱UFJ銀行/ATM 八丁堀/[営業時間] [ATM]平日 7:00~24:00 土曜日 7:00~24:00 日・祝日 7:00~24:00/190m(徒歩2分) みずほ銀行/ATM 八丁堀出張所/[営業時間] [ATM]平日 6:00~26:00 土曜日 8:00~22:00 日曜日 8:00~21:00 祝日・振替休日 8:00~21:00/180m(徒歩2分) |
| 飲食店 |
シュングルマン/11時45分~14時00分 18時00分~23時00分/86m(徒歩1分) 竹井幸彦 八丁堀茅場町店/11時00分~14時45分 17時00分~23時30分/72m(徒歩1分) |
| カフェ |
コロラド/八丁堀店/[営業時間]平日:8:00~21:00 土曜日:- 日 祝:-/450m(徒歩6分) ドトール/八丁堀店/[営業時間]平日:7:00~19:30 土曜日:7:30~16:00 日 祝:9:00~16:00/230m(徒歩3分) |
| コインパーキング |
タイムズ駐車場/八丁堀第10 [料金] [月~土]通常料金 / 0:00~0:00 15分 440円 [日・祝]通常料金 / 0:00~0:00 15分 440円 [最大料金] [月~土]20:00~8:00 最大料金660円 [日・祝]8:00~20:00 最大料金1650円 20:00~8:00 最大料金660円 [台数]4 タイムズ駐車場/八丁堀第9 [料金] [月~土]通常料金 / 0:00~0:00 15分 300円 [日・祝]通常料金 / 0:00~0:00 15分 300円 [最大料金] [月~土]8:00~18:00 最大料金2800円 18:00~8:00 最大料金400円 [日・祝]8:00~18:00 最大料金1000円 18:00~8:00 最大料金400円 [台数]4 |
周辺地図
マルキョウ新川ビルは、中央区新川にある貸事務所物件です。最寄駅は、東京メトロ東西線、日比谷線茅場町駅、都営浅草線宝町駅、JR八丁堀駅です。1982年竣工で、基準階が108.92坪の賃貸オフィスビルです。天井の高さは2500mmとなっています。トイレは室内男女別で、空調は個別空調です。エレベーターは1基あります。駐車場が利用可能です。最寄駅から徒歩2分。複数路線利用可能で交通アクセスの良い、中央区新川の貸事務所です。
全フロア情報
更新日:2025年11月15日
| 階 | 面積 | 賃料 | 共益費 | 敷金 | 入居日 | お問合せ | お気に入り | |
|---|---|---|---|---|---|---|---|---|
| 1F |
43.27 坪 143.04 ㎡ |
※現在空室情報はございません |
※現在空室情報は 確認する |
|||||
| 2F |
108.92 坪 360.07 ㎡ |
※現在空室情報はございません |
※現在空室情報は 確認する |
|||||
| 4F |
34 坪 112.4 ㎡ |
※現在空室情報はございません |
※現在空室情報は 確認する |
|||||
|
4F
(1区画) |
34 坪 112.4 ㎡ |
※現在空室情報はございません |
※現在空室情報は 確認する |
|||||
お問い合わせ
似た条件の物件はこちら
-
合人社東京八丁堀ビル
東京都中央区八丁堀3-22-8
坪数:36.54 坪
坪単価:21,000 円(坪)
-
鉄鋼会館
東京都中央区日本橋茅場町3-2-10
坪数:31.72 坪
坪単価:22,699 円(坪)
-
NOVEL WORK 京橋
東京都中央区八丁堀3-5-4
坪数:29.64 坪
坪単価:28,000 円(坪)
-
大湯ビル
東京都中央区日本橋茅場町2-6-8
坪数:27 坪
坪単価:15,000 円(坪)
-
塩部ビル
東京都中央区八丁堀4-9-6
坪数:24.06 坪
坪単価:12,500 円(坪)
-
KSビル
東京都中央区八丁堀3-9-5
坪数:25.06 坪
坪単価:12,000 円(坪)
-
ONE SHINKAWA
東京都中央区新川1-23-5
坪数:38.3 坪
坪単価:22,000 円(坪)
-
市川ビル
東京都中央区八丁堀4-4-5
坪数:29.5 坪
坪単価:9,000 円(坪)
-
シーラックグループ 日本橋兜町ビル
東京都中央区日本橋兜町18-5
坪数:41.9 坪
坪単価:26,000 円(坪)
-
坂田ビル
東京都中央区新川2-15-7
坪数:34 坪
坪単価:12,000 円(坪)