ERVIC人形町(物件No:81287122)
ERVIC(エルビック)人形町は、中央区日本橋人形町にある貸事務所物件です。最寄り駅は東京メトロ半蔵門線水天宮前駅、日比谷線、都営浅草線人形町駅です。1990年竣工で基準階が56.82坪の賃貸オフィスビルです。床はOAフロアで、天井の高さは2500mm。トイレは室外男女別で、空調は個別空調です。エレベーターは1基あります。複数路線利用可能で交通アクセスの良い、中央区日本橋人形町の貸事務所です。
-
物件情報
-
設備情報
- トイレ
- 室外男女別
- 床
- -
- 空調
- 個別空調
- セキュリティ
- 有
- 駐車場
- 無
- 会議室
- -
- エレベーター
- 1基
- 天井高
- 2500mm
-
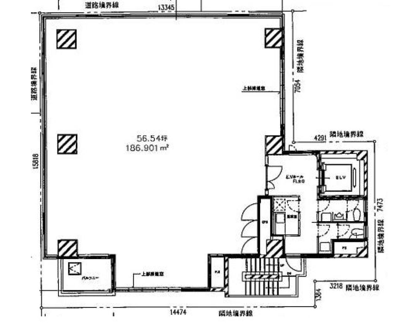
間取り図
-
近隣相場情報
日本橋人形町1丁目(50~100坪)の相場
19000 円 (坪)
※ビルサク調べ
周辺施設情報
| コンビニ |
セブンイレブン/日本橋人形町3丁目/79m(徒歩1分) セブンイレブン/人形町駅西/83m(徒歩1分) |
|---|---|
| 郵便局/銀行 |
セブン銀行/日本橋人形町3丁目店/[営業時間]24時間営業/79m(徒歩1分) セブン銀行/人形町駅西店/[営業時間]24時間営業/83m(徒歩1分) |
| 飲食店 |
かくれんぼ/11時00分~13時30分 17時00分~22時00分/63m(徒歩1分) ななお/11時00分~14時00分 17時00分~23時00分/110m(徒歩2分) |
| カフェ |
ドトール/人形町1丁目店/[営業時間]平日:7:00~20:00 土曜日:8:00~19:00 日 祝:8:00~18:00/300m(徒歩4分) サンマルクカフェ/人形町店/[営業時間]7:00~23:00/150m(徒歩2分) |
| コインパーキング |
パークネット/日本橋小網町 [料金] [料金]昼 08:00~ 22:00 20分 / 300円 夜 22:00 ~ 08:00 60分 / 100円 [最大料金] [料金] 最大料金 6時間 1800円 [台数]1台 タイムズ駐車場/日本橋小網町第4 [料金] [全日]通常料金 / 0:00~0:00 12分 330円 [最大料金] [全日]当日1日最大料金3740円(24時迄) [台数]8 |
周辺地図
ERVIC(エルビック)人形町は、中央区日本橋人形町にある貸事務所物件です。最寄り駅は東京メトロ半蔵門線水天宮前駅、日比谷線、都営浅草線人形町駅です。1990年竣工で基準階が56.82坪の賃貸オフィスビルです。床はOAフロアで、天井の高さは2500mm。トイレは室外男女別で、空調は個別空調です。エレベーターは1基あります。複数路線利用可能で交通アクセスの良い、中央区日本橋人形町の貸事務所です。
全フロア情報
更新日:2025年11月15日
| 階 | 面積 | 賃料 | 共益費 | 敷金 | 入居日 | お問合せ | お気に入り | |
|---|---|---|---|---|---|---|---|---|
| 2F |
45.76 坪 151.27 ㎡ |
※現在空室情報はございません |
※現在空室情報は 確認する |
|||||
| 4F |
56.54 坪 186.91 ㎡ |
※現在空室情報はございません |
※現在空室情報は 確認する |
|||||
| 5F |
56.7 坪 187.44 ㎡ |
※現在空室情報はございません |
※現在空室情報は 確認する |
|||||
| 6F |
56.7 坪 187.44 ㎡ |
※現在空室情報はございません |
※現在空室情報は 確認する |
|||||
| 7F |
56.54 坪 186.91 ㎡ |
※現在空室情報はございません |
※現在空室情報は 確認する |
|||||
| 8F |
56.54 坪 186.91 ㎡ |
※現在空室情報はございません |
※現在空室情報は 確認する |
|||||
| 9F |
56.54 坪 186.91 ㎡ |
※現在空室情報はございません |
※現在空室情報は 確認する |
|||||
お問い合わせ
似た条件の物件はこちら
-
THE GATE日本橋人形町
東京都中央区日本橋富沢町7-16
坪数:62.65 坪
坪単価:24,000 円(坪)
-
人形町アムフラット
東京都中央区日本橋人形町2-35-12
坪数:63.83 坪
坪単価:17,233 円(坪)
-
日本橋人形町スクエア
東京都中央区日本橋堀留町1-8-11
坪数:61.34 坪
坪単価:22,000 円(坪)
-
オーキッドプレイス蛎殻町ビル
東京都中央区日本橋蛎殻町1-4-1
坪数:51.15 坪
坪単価:15,000 円(坪)
-
Grandir 日本橋小伝馬町
東京都中央区日本橋小伝馬町18-1
坪数:44.34 坪
坪単価:24,000 円(坪)
-
日本橋ウッドフィールド
東京都中央区日本橋箱崎町34-4
坪数:67.9 坪
坪単価:9,000 円(坪)
-
日本橋小網町THビル
東京都中央区日本橋小網町18-4
坪数:67.6 坪
坪単価:16,000 円(坪)
-
アライズ第2ビル
東京都中央区日本橋箱崎町5-4
坪数:52.8 坪
坪単価:11,000 円(坪)
-
日本橋浜町ビル
東京都中央区日本橋浜町2-28-1
坪数:46 坪
坪単価:12,000 円(坪)
-
ラ・ベール日本橋
東京都中央区日本橋小網町12-5
坪数:50.43 坪
坪単価:17,000 円(坪)
関連エリアから探す
- 日本橋大伝馬町
- 日本橋蛎殻町
- 日本橋小網町
- 日本橋小伝馬町
- 日本橋小舟町
- 日本橋富沢町
- 日本橋人形町
- 日本橋箱崎町
- 日本橋堀留町
- 日本橋中洲
- 日本橋馬喰町
- 日本橋浜町
- 日本橋久松町
- 日本橋横山町
- 東日本橋