三光ビジネスキャッスル(物件No:81286193)
三光ビジネスキャッスルは、中央区銀座にある貸事務所物件で、最寄り駅は複数あり、銀座一丁目駅、新富町駅、東銀座駅です。1976年竣工の物件で、地上6階建てのコンパクトな賃貸オフィスビルです。EVは1基設置しており、個別空調が有ります。交通アクセス抜群の中央区銀座の貸事務所です。
| 階 | 面積 | 賃料 | 共益費 | 敷金 | 入居日 | お問合せ | お気に入り | |
|---|---|---|---|---|---|---|---|---|
|
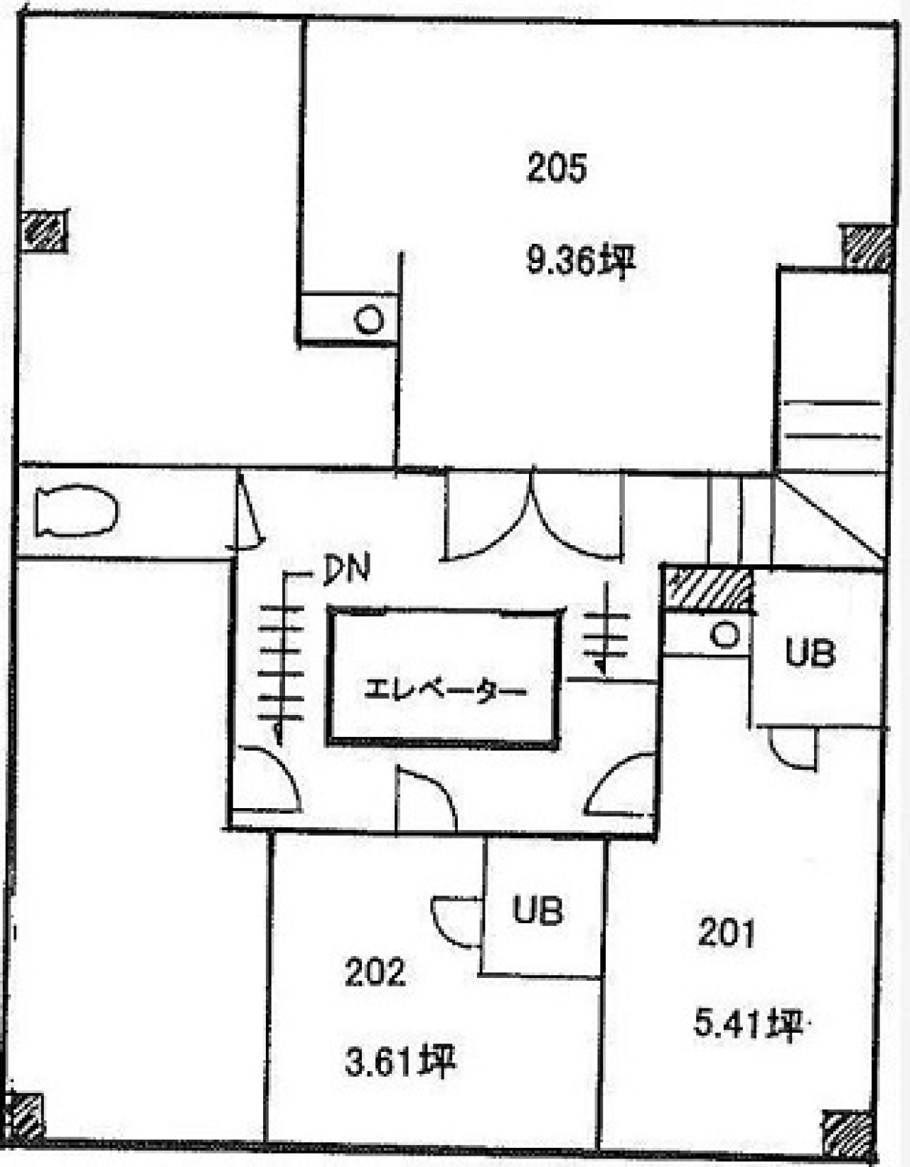
2F
(205区画) |
9.36 坪 30.94 ㎡ |
※現在空室情報はございません |
※現在空室情報は 確認する |
|||||
| 階 | 面積 | 賃料 | 共益費 | 敷金 | 入居日 | お問合せ | お気に入り | |
|---|---|---|---|---|---|---|---|---|
|
2F
(205区画) |
9.36 坪 30.94 ㎡ |
※現在空室情報はございません |
※現在空室情報は 確認する |
|||||
-
物件情報
-
設備情報
- トイレ
- -
- 床
- -
- 空調
- -
- セキュリティ
- -
- 駐車場
- -
- 会議室
- -
- エレベーター
- 1基
- 天井高
- -
-
間取り図
-
近隣相場情報
銀座2丁目(20坪以下)の相場
25365 円 (坪)
※ビルサク調べ
周辺地図
三光ビジネスキャッスルは、中央区銀座にある貸事務所物件で、最寄り駅は複数あり、銀座一丁目駅、新富町駅、東銀座駅です。1976年竣工の物件で、地上6階建てのコンパクトな賃貸オフィスビルです。EVは1基設置しており、個別空調が有ります。交通アクセス抜群の中央区銀座の貸事務所です。
全フロア情報
更新日:2025年10月31日
| 階 | 面積 | 賃料 | 共益費 | 敷金 | 入居日 | お問合せ | お気に入り | |
|---|---|---|---|---|---|---|---|---|
|
2F
(201区画) |
5.41 坪 17.88 ㎡ |
※現在空室情報はございません |
※現在空室情報は 確認する |
|||||
|
2F
(205区画) |
9.36 坪 30.94 ㎡ |
※現在空室情報はございません |
※現在空室情報は 確認する |
|||||
|
3F
(301区画) |
5.4 坪 17.85 ㎡ |
※現在空室情報はございません |
※現在空室情報は 確認する |
|||||
|
3F
(302区画) |
3.61 坪 11.93 ㎡ |
※現在空室情報はございません |
※現在空室情報は 確認する |
|||||
|
3F
(303区画) |
5.4 坪 17.85 ㎡ |
※現在空室情報はございません |
※現在空室情報は 確認する |
|||||
|
3F
(305区画) |
5.41 坪 17.88 ㎡ |
※現在空室情報はございません |
※現在空室情報は 確認する |
|||||
|
3F
(306区画) |
6.75 坪 22.31 ㎡ |
※現在空室情報はございません |
※現在空室情報は 確認する |
|||||
|
4F
(401区画) |
5.41 坪 17.88 ㎡ |
※現在空室情報はございません |
※現在空室情報は 確認する |
|||||
|
4F
(402区画) |
3.61 坪 11.93 ㎡ |
※現在空室情報はございません |
※現在空室情報は 確認する |
|||||
|
4F
(403区画) |
5.4 坪 17.85 ㎡ |
※現在空室情報はございません |
※現在空室情報は 確認する |
|||||
|
4F
(404区画) |
6.75 坪 22.31 ㎡ |
※現在空室情報はございません |
※現在空室情報は 確認する |
|||||
|
4F
(406区画) |
6.75 坪 22.31 ㎡ |
130,000 円 19,259 円(坪) |
込 |
520,000 円 4 ヶ月 |
即日 |
|
|
|
|
5F
(501区画) |
5.4 坪 17.85 ㎡ |
※現在空室情報はございません |
※現在空室情報は 確認する |
|||||
|
5F
(502区画) |
3.61 坪 11.93 ㎡ |
※現在空室情報はございません |
※現在空室情報は 確認する |
|||||
|
5F
(503区画) |
5.41 坪 17.88 ㎡ |
※現在空室情報はございません |
※現在空室情報は 確認する |
|||||
|
6F
(601区画) |
5.4 坪 17.85 ㎡ |
※現在空室情報はございません |
※現在空室情報は 確認する |
|||||
|
6F
(603区画) |
5.4 坪 17.85 ㎡ |
※現在空室情報はございません |
※現在空室情報は 確認する |
|||||
お問い合わせ
似た条件の物件はこちら
-
日本聖書協会ビル(聖書館ビル)
東京都中央区銀座4-5-1
坪数:13.00 坪
坪単価:25,500 円(坪)
-
松沢ビル
東京都中央区銀座7-13-1
坪数:7.97 坪
坪単価:22,585 円(坪)
-
鈴木ビル
東京都中央区銀座3-13-5
坪数:7.23 坪
坪単価:21,000 円(坪)
-
明興ビル
東京都中央区銀座1-5-5
坪数:7 坪
坪単価:25,500 円(坪)
-
福助染ビル
東京都中央区銀座2-5-4
坪数:6.27 坪
坪単価:25,518 円(坪)
-
第7セントラルビル
東京都中央区銀座8-8-1
坪数:12.95 坪
坪単価:27,000 円(坪)
-
ギンザ104ビル
東京都中央区銀座1-4-4
坪数:7.85 坪
坪単価:38,217 円(坪)
-
明宏ビル
東京都中央区銀座1-18-2
坪数:12.50 坪
坪単価:14,000 円(坪)
-
銀座ビル
東京都中央区銀座5-10-10
坪数:8.33 坪
坪単価:50,000 円(坪)
-
東京銀座ビルディング
東京都中央区銀座6-12-2
坪数:8.8 坪
坪単価:18,977 円(坪)