ヒューリック八丁堀第二ビル(物件No:81181123)
ヒューリック八丁堀第二ビルは、中央区八丁堀にある貸事務所物件です。最寄り駅は東京メトロ日比谷線、JR八丁堀駅、東京メトロ銀座線京橋駅、東京メトロ有楽町線新富町駅、都営浅草線宝町駅となっています。1990年竣工で、基準階が113.74坪の賃貸オフィスビルです。床はOAフロアで、天井の高さは2600mm。トイレは室外男女別で、空調は個別空調です。エレベーターは2基あり、駐車場が利用可能です。複数路線利用可能で、交通アクセスの良い、中央区八丁堀の貸事務所です。
-
物件情報
-
設備情報
- トイレ
- 室外男女別
- 床
- フリーアクセス
- 空調
- 個別空調
- セキュリティ
- -
- 駐車場
- 有
- 会議室
- -
- エレベーター
- 2基
- 天井高
- 2550mm
-
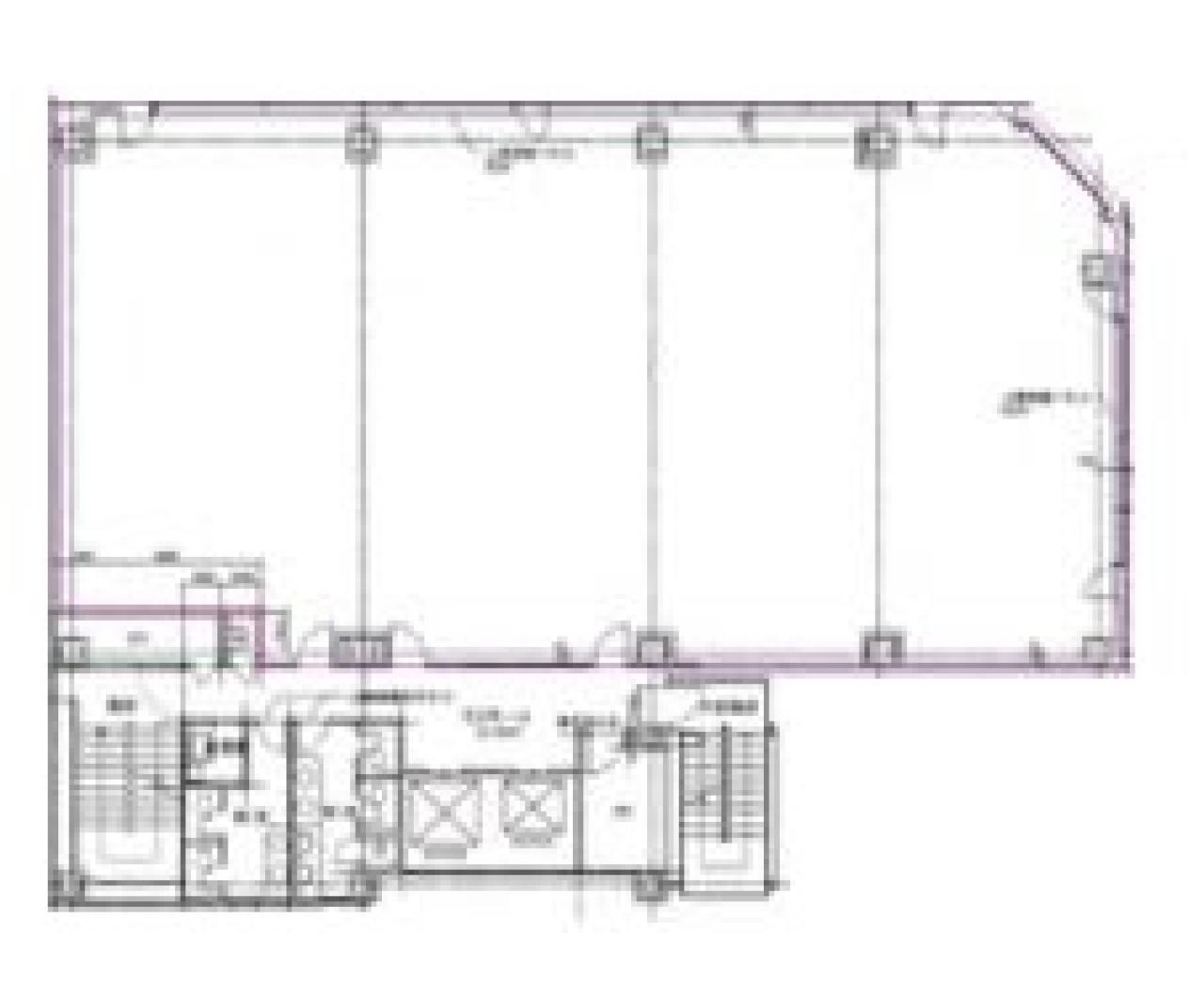
間取り図
-
近隣相場情報
八丁堀4丁目(100坪以上)の相場
26112 円 (坪)
※ビルサク調べ
周辺施設情報
| コンビニ |
ローソン/H八丁堀四丁目/36m(徒歩1分) ファミリーマート/八丁堀店/71m(徒歩1分) |
|---|---|
| 郵便局/銀行 |
中京銀行/東京支店/[営業時間]9:00~15:00/1m(徒歩1分) ローソン銀行/八丁堀四丁目共同出張所/[営業時間]24時間/36m(徒歩1分) |
| 飲食店 |
しゃぶしゃぶ 温野菜 八丁堀店/17時00分~22時00分/39m(徒歩1分) 中華居酒屋 美味閣 八丁堀店/11時00分~15時00分 17時00分~23時00分/58m(徒歩1分) |
| カフェ |
コロラド/八丁堀店/■通常営業時間 平日 8:00~21:00 土曜 - 日祝 - /170m(徒歩3分) プロント/八丁堀店/[営業時間]平日:カフェ 7:00~17:30 バー 17:30~22:00 /220m(徒歩3分) |
| コインパーキング |
PEN/中央区八丁堀4丁目 [料金] 【全日】 8:00~20:00 300円 / 15分 【全日】 20:00~8:00 100円 / 60分 [最大料金] 【当日最大料金】 月曜~土曜日(祝日除く) 8:00~20:00 3900円 (繰り返し可) 【当日最大料金】 日曜日・祝日 8:00~20:00 900円 (繰り返し可) [営業時間]24時間営業 タイムズ/八丁堀駅前第3 [料金] [月~土]通常料金 / 0:00~0:00 15分 440円 [日・祝]通常料金 / 0:00~0:00 15分 440円 [最大料金] [月~土]22:00~8:00 最大料金550円 [日・祝]8:00~22:00 最大料金990円 22:00~8:00 最大料金550円 [台数]2 |
周辺地図
ヒューリック八丁堀第二ビルは、中央区八丁堀にある貸事務所物件です。最寄り駅は東京メトロ日比谷線、JR八丁堀駅、東京メトロ銀座線京橋駅、東京メトロ有楽町線新富町駅、都営浅草線宝町駅となっています。1990年竣工で、基準階が113.74坪の賃貸オフィスビルです。床はOAフロアで、天井の高さは2600mm。トイレは室外男女別で、空調は個別空調です。エレベーターは2基あり、駐車場が利用可能です。複数路線利用可能で、交通アクセスの良い、中央区八丁堀の貸事務所です。
全フロア情報
更新日:2025年11月13日
| 階 | 面積 | 賃料 | 共益費 | 敷金 | 入居日 | お問合せ | お気に入り | |
|---|---|---|---|---|---|---|---|---|
| 1F |
51.43 坪 170.02 ㎡ |
※現在空室情報はございません |
※現在空室情報は 確認する |
|||||
| 2F |
112.83 坪 372.99 ㎡ |
※現在空室情報はございません |
※現在空室情報は 確認する |
|||||
| 6F |
113.61 坪 375.57 ㎡ |
※現在空室情報はございません |
※現在空室情報は 確認する |
|||||
| 8F |
113.61 坪 375.57 ㎡ |
※現在空室情報はございません |
※現在空室情報は 確認する |
|||||
お問い合わせ
似た条件の物件はこちら
-
石川ビル
東京都中央区新川2-1-9
坪数:87.03 坪
坪単価:13,200 円(坪)
-
R-TERRACE HATCHOBORI
東京都中央区新川2-12-15
坪数:106.55 坪
坪単価:19,000 円(坪)
-
京橋北見ビル東館
東京都中央区八丁堀3-4-10
坪数:102.51 坪
坪単価:12,000 円(坪)
-
永代橋エコピアザビル
東京都中央区新川1-29-13
坪数:95 坪
坪単価:13,000 円(坪)
-
八丁堀FRONT
東京都中央区八丁堀2-20-9
坪数:105.5 坪
坪単価:10,500 円(坪)