東急虎ノ門ビル(物件No:71985184)
東急虎ノ門ビルは、港区虎ノ門にある地上10階建ての貸店舗物件/賃貸事務所です。最寄駅は東京メトロ銀座線の虎ノ門駅から徒歩4分、東京メトロ日比谷線の霞ケ関駅から徒歩8分、東京メトロ千代田線の霞ケ関駅から徒歩8分、東京メトロ丸ノ内線の霞ケ関駅から徒歩8分です。2020年4月竣工の基準階面積が359.12坪の鉄骨造です。設備としては、エレベーターが5基あり、駐車場もあります。セキュリティは機械警備です。トイレは室外男女別です。空調は個別空調です。床仕様はフリーアクセスです。天高は2800mmです。耐震設計となっている、複数駅利用可能なアクセスの良い港区虎ノ門の貸店舗物件/賃貸オフィスです。
-
物件情報
-
設備情報
- トイレ
- 室外男女別
- 床
- フリーアクセス
- 空調
- 個別空調
- セキュリティ
- 有
- 駐車場
- 有
- 会議室
- -
- エレベーター
- 5基
- 天井高
- 2800mm
-
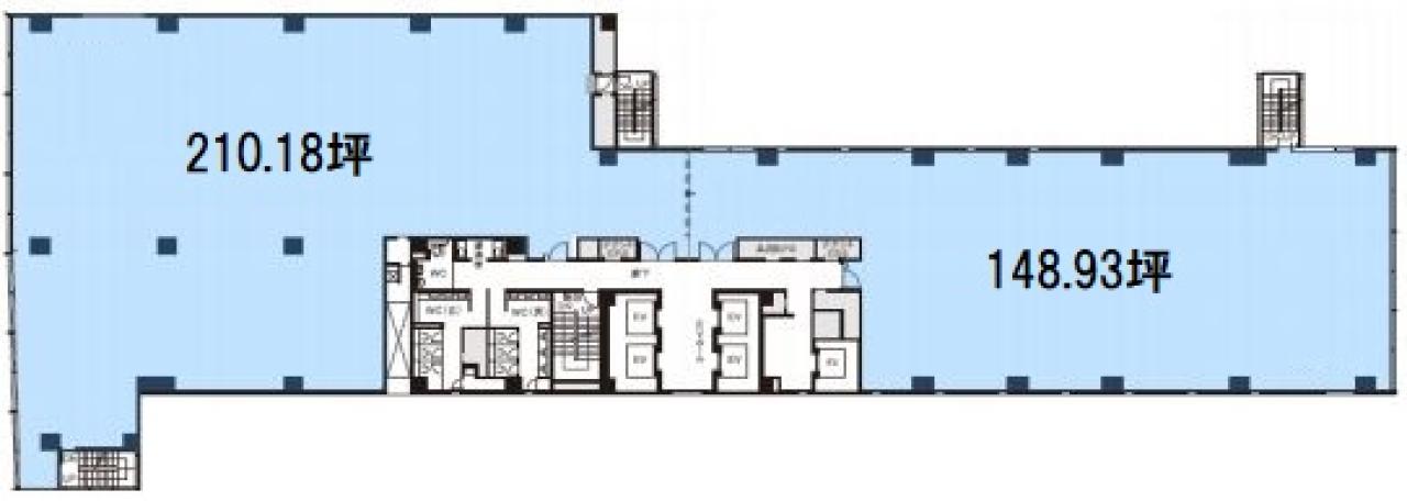
間取り図
-
近隣相場情報
虎ノ門1丁目(100坪以上)の相場
42902 円 (坪)
※ビルサク調べ
周辺施設情報
| コンビニ |
ローソン/ナチュラル 虎ノ門桜田通り/27m(徒歩1分) ファミリーマート/虎ノ門一丁目店/190m(徒歩2分) |
|---|---|
| 郵便局/銀行 |
イオン銀行/ATM ミニストップ愛宕1丁目店出張所/[営業時間]24時間/500m(徒歩6分) 三菱UFJ銀行/虎ノ門中央支店/[営業時間] [窓口]平日 9:00~15:00 土曜日 - 日曜日 - *祝日・休日および12月31日、1月1日~3日は営業いたしません。 [ATM]平日 4:00~24:00 土曜日 4:00~24:00 日・祝日 4:00~24:00 *毎月第2土曜日の21:00~翌朝7:00はご利用いただけ/280m(徒歩4分) |
| 飲食店 |
ちょい呑み福ちゃん/[月~土] 16:00~23:30(L.O.23:00)/120m(徒歩1分) ぱぼーね/11時00分~16時00分、17時30分~23時00分/130m(徒歩2分) |
| カフェ |
森のこぶた/7時00分~18時00分/290m(徒歩4分) 樹林/17時00分~22時00分/300m(徒歩4分) |
| コインパーキング |
タイムズ駐車場/共同通信会館 [料金] [全日]07:00-19:00 30分 300円 [全日]19:00-07:00 30分 300円 [最大料金] [全日]07:00-19:00 最大料金1800円 [全日]19:00-07:00 最大料金500円 [台数]27 三井のリパーク/西新橋3丁目第2 [料金] 平日 08:00~22:00 12分/400円、平日 22:00~08:00 60分/100円 日祝 08:00~22:00 12分/400円、日祝 22:00~08:00 60分/100円 [最大料金] 【日祝】8:00~22:00以内 最大料金1500円 【月~土】1番に限り8:00~22:00以内3800円 [台数]3 |
周辺地図
東急虎ノ門ビルは、港区虎ノ門にある地上10階建ての貸店舗物件/賃貸事務所です。最寄駅は東京メトロ銀座線の虎ノ門駅から徒歩4分、東京メトロ日比谷線の霞ケ関駅から徒歩8分、東京メトロ千代田線の霞ケ関駅から徒歩8分、東京メトロ丸ノ内線の霞ケ関駅から徒歩8分です。2020年4月竣工の基準階面積が359.12坪の鉄骨造です。設備としては、エレベーターが5基あり、駐車場もあります。セキュリティは機械警備です。トイレは室外男女別です。空調は個別空調です。床仕様はフリーアクセスです。天高は2800mmです。耐震設計となっている、複数駅利用可能なアクセスの良い港区虎ノ門の貸店舗物件/賃貸オフィスです。
全フロア情報
更新日:2025年10月27日
| 階 | 面積 | 賃料 | 共益費 | 敷金 | 入居日 | お問合せ | お気に入り | |
|---|---|---|---|---|---|---|---|---|
|
1F
(A区画) |
47.08 坪 155.64 ㎡ |
※現在空室情報はございません |
※現在空室情報は 確認する |
|||||
|
1F
(B区画) |
57.17 坪 188.99 ㎡ |
※現在空室情報はございません |
※現在空室情報は 確認する |
|||||
| 2F |
359.12 坪 1187.17 ㎡ |
※現在空室情報はございません |
※現在空室情報は 確認する |
|||||
|
2F
(A区画) |
210.18 坪 694.81 ㎡ |
※現在空室情報はございません |
※現在空室情報は 確認する |
|||||
|
2F
(B区画) |
148.93 坪 492.33 ㎡ |
※現在空室情報はございません |
※現在空室情報は 確認する |
|||||
| 3F |
359.12 坪 1187.17 ㎡ |
※現在空室情報はございません |
※現在空室情報は 確認する |
|||||
| 4F |
297.82 坪 984.53 ㎡ |
※現在空室情報はございません |
※現在空室情報は 確認する |
|||||
| 5F |
297.82 坪 984.53 ㎡ |
※現在空室情報はございません |
※現在空室情報は 確認する |
|||||
| 6F |
359.12 坪 1187.17 ㎡ |
※現在空室情報はございません |
※現在空室情報は 確認する |
|||||
| 7F |
359.12 坪 1187.17 ㎡ |
※現在空室情報はございません |
※現在空室情報は 確認する |
|||||
|
7F
(A区画) |
210.18 坪 694.81 ㎡ |
※現在空室情報はございません |
※現在空室情報は 確認する |
|||||
| 8F |
359.12 坪 1187.17 ㎡ |
※現在空室情報はございません |
※現在空室情報は 確認する |
|||||
|
8F
(A区画) |
210.18 坪 694.81 ㎡ |
※現在空室情報はございません |
※現在空室情報は 確認する |
|||||
|
8F
(B区画) |
148.93 坪 492.33 ㎡ |
※現在空室情報はございません |
※現在空室情報は 確認する |
|||||
| 9F |
359.12 坪 1187.17 ㎡ |
※現在空室情報はございません |
※現在空室情報は 確認する |
|||||
|
9F
(B区画) |
148.93 坪 492.33 ㎡ |
※現在空室情報はございません |
※現在空室情報は 確認する |
|||||
| 10F |
359.12 坪 1187.17 ㎡ |
※現在空室情報はございません |
※現在空室情報は 確認する |
|||||
お問い合わせ
似た条件の物件はこちら
-
石井ビル
東京都港区新橋3-1-10
坪数:133.84 坪
坪単価:15,999 円(坪)
-
虎ノ門ピアザビル
東京都港区虎ノ門2-4-1
坪数:125 坪
坪単価:19,000 円(坪)
-
御成門郵船ビル
東京都港区西新橋3-23-5
坪数:149.19 坪
坪単価:28,000 円(坪)
-
第2秋山ビルディング
東京都港区虎ノ門3-6-2
坪数:171.18 坪
坪単価:24,000 円(坪)
-
今朝ビル
東京都港区東新橋1-1-21
坪数:126.18 坪
坪単価:23,000 円(坪)