いろいろ聞いてみる

虎ノ門の賃貸オフィス

東急虎ノ門ビル(物件No:71985184)

東急虎ノ門ビルは、港区虎ノ門にある地上10階建ての貸店舗物件/賃貸事務所です。最寄駅は東京メトロ銀座線の虎ノ門駅から徒歩4分、東京メトロ日比谷線の霞ケ関駅から徒歩8分、東京メトロ千代田線の霞ケ関駅から徒歩8分、東京メトロ丸ノ内線の霞ケ関駅から徒歩8分です。2020年4月竣工の基準階面積が359.12坪の鉄骨造です。設備としては、エレベーターが5基あり、駐車場もあります。セキュリティは機械警備です。トイレは室外男女別です。空調は個別空調です。床仕様はフリーアクセスです。天高は2800mmです。耐震設計となっている、複数駅利用可能なアクセスの良い港区虎ノ門の貸店舗物件/賃貸オフィスです。

  • 東急虎ノ門ビル
  • 東急虎ノ門ビル
  • 東急虎ノ門ビル
  • 東急虎ノ門ビル
面積 賃料 共益費 敷金 入居日 お問合せ お気に入り
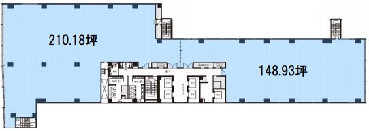
2F

(A区画)

210.18 坪

694.81 ㎡

※現在空室情報はございません

※現在空室情報は
ございません

最新情報を
確認する

周辺施設情報

コンビニ

ローソン/ナチュラル 虎ノ門桜田通り/27m(徒歩1分)

ファミリーマート/虎ノ門一丁目店/190m(徒歩2分)

郵便局/銀行

イオン銀行/ATM ミニストップ愛宕1丁目店出張所/[営業時間]24時間/500m(徒歩6分)

三菱UFJ銀行/虎ノ門中央支店/[営業時間] [窓口]平日 9:00~15:00 土曜日 - 日曜日 - *祝日・休日および12月31日、1月1日~3日は営業いたしません。 [ATM]平日 4:00~24:00 土曜日 4:00~24:00 日・祝日 4:00~24:00 *毎月第2土曜日の21:00~翌朝7:00はご利用いただけ/280m(徒歩4分)

飲食店

ちょい呑み福ちゃん/[月~土] 16:00~23:30(L.O.23:00)/120m(徒歩1分)

ぱぼーね/11時00分~16時00分、17時30分~23時00分/130m(徒歩2分)

カフェ

森のこぶた/7時00分~18時00分/290m(徒歩4分)

樹林/17時00分~22時00分/300m(徒歩4分)

コインパーキング

タイムズ駐車場/共同通信会館

[料金]

[全日]07:00-19:00 30分 300円

[全日]19:00-07:00 30分 300円

[最大料金]

[全日]07:00-19:00 最大料金1800円

[全日]19:00-07:00 最大料金500円

[台数]27

三井のリパーク/西新橋3丁目第2

[料金]

平日 08:00~22:00 12分/400円、平日 22:00~08:00 60分/100円

日祝 08:00~22:00 12分/400円、日祝 22:00~08:00 60分/100円

[最大料金]

【日祝】8:00~22:00以内 最大料金1500円

【月~土】1番に限り8:00~22:00以内3800円

[台数]3

周辺地図

東急虎ノ門ビルは、港区虎ノ門にある地上10階建ての貸店舗物件/賃貸事務所です。最寄駅は東京メトロ銀座線の虎ノ門駅から徒歩4分、東京メトロ日比谷線の霞ケ関駅から徒歩8分、東京メトロ千代田線の霞ケ関駅から徒歩8分、東京メトロ丸ノ内線の霞ケ関駅から徒歩8分です。2020年4月竣工の基準階面積が359.12坪の鉄骨造です。設備としては、エレベーターが5基あり、駐車場もあります。セキュリティは機械警備です。トイレは室外男女別です。空調は個別空調です。床仕様はフリーアクセスです。天高は2800mmです。耐震設計となっている、複数駅利用可能なアクセスの良い港区虎ノ門の貸店舗物件/賃貸オフィスです。

全フロア情報

更新日:2025年10月27日

面積 賃料 共益費 敷金 入居日 お問合せ お気に入り
1F

(A区画)

47.08 坪

155.64 ㎡

※現在空室情報はございません

※現在空室情報は
ございません

最新情報を
確認する
1F

(B区画)

57.17 坪

188.99 ㎡

※現在空室情報はございません

※現在空室情報は
ございません

最新情報を
確認する
2F

359.12 坪

1187.17 ㎡

※現在空室情報はございません

※現在空室情報は
ございません

最新情報を
確認する
2F

(A区画)

210.18 坪

694.81 ㎡

※現在空室情報はございません

※現在空室情報は
ございません

最新情報を
確認する
2F

(B区画)

148.93 坪

492.33 ㎡

※現在空室情報はございません

※現在空室情報は
ございません

最新情報を
確認する
3F

359.12 坪

1187.17 ㎡

※現在空室情報はございません

※現在空室情報は
ございません

最新情報を
確認する
4F

297.82 坪

984.53 ㎡

※現在空室情報はございません

※現在空室情報は
ございません

最新情報を
確認する
5F

297.82 坪

984.53 ㎡

※現在空室情報はございません

※現在空室情報は
ございません

最新情報を
確認する
6F

359.12 坪

1187.17 ㎡

※現在空室情報はございません

※現在空室情報は
ございません

最新情報を
確認する
7F

359.12 坪

1187.17 ㎡

※現在空室情報はございません

※現在空室情報は
ございません

最新情報を
確認する
7F

(A区画)

210.18 坪

694.81 ㎡

※現在空室情報はございません

※現在空室情報は
ございません

最新情報を
確認する
8F

359.12 坪

1187.17 ㎡

※現在空室情報はございません

※現在空室情報は
ございません

最新情報を
確認する
8F

(A区画)

210.18 坪

694.81 ㎡

※現在空室情報はございません

※現在空室情報は
ございません

最新情報を
確認する
8F

(B区画)

148.93 坪

492.33 ㎡

※現在空室情報はございません

※現在空室情報は
ございません

最新情報を
確認する
9F

359.12 坪

1187.17 ㎡

※現在空室情報はございません

※現在空室情報は
ございません

最新情報を
確認する
9F

(B区画)

148.93 坪

492.33 ㎡

※現在空室情報はございません

※現在空室情報は
ございません

最新情報を
確認する
10F

359.12 坪

1187.17 ㎡

※現在空室情報はございません

※現在空室情報は
ございません

最新情報を
確認する

お問い合わせ

必須
必須
必須
必須
必須

関連エリアから探す

駅から探す

お問い合わせ

物件に関してのお問い合わせ

「失敗しないオフィス移転サポート」物件探しから移転までスムーズで担当者様がとにかく楽になるサービスです。

050-7587-0049平日 9:00~18:00

メールでお問い合わせ

フリーワード検索