笠原ビル(物件No:71786019)
笠原ビルは千代田区内神田にある地下1階、地上13階建ての賃貸事務所です。最寄駅は東京メトロ丸ノ内線の大手町駅から徒歩3分、東京メトロ銀座線の神田駅から徒歩6分、JR山手線の神田駅から徒歩5分です。2008年1月竣工の基準階面積が141.91坪の鉄骨鉄筋コンクリート造です。設備としては、エレベーターが2基あります。駐車場もあります。警備は機械警備です。トイレは室外男女別です。空調は個別空調です。床仕様はフリーアクセスです。天高は2700mmです。耐震設計となっている、複数路線利用可能なアクセスの良い千代田区内神田の賃貸オフィスです。
-
物件情報
-
設備情報
- トイレ
- 室外男女別
- 床
- フリーアクセス
- 空調
- 個別空調
- セキュリティ
- 有
- 駐車場
- 有
- 会議室
- -
- エレベーター
- 2基
- 天井高
- 2700mm
-
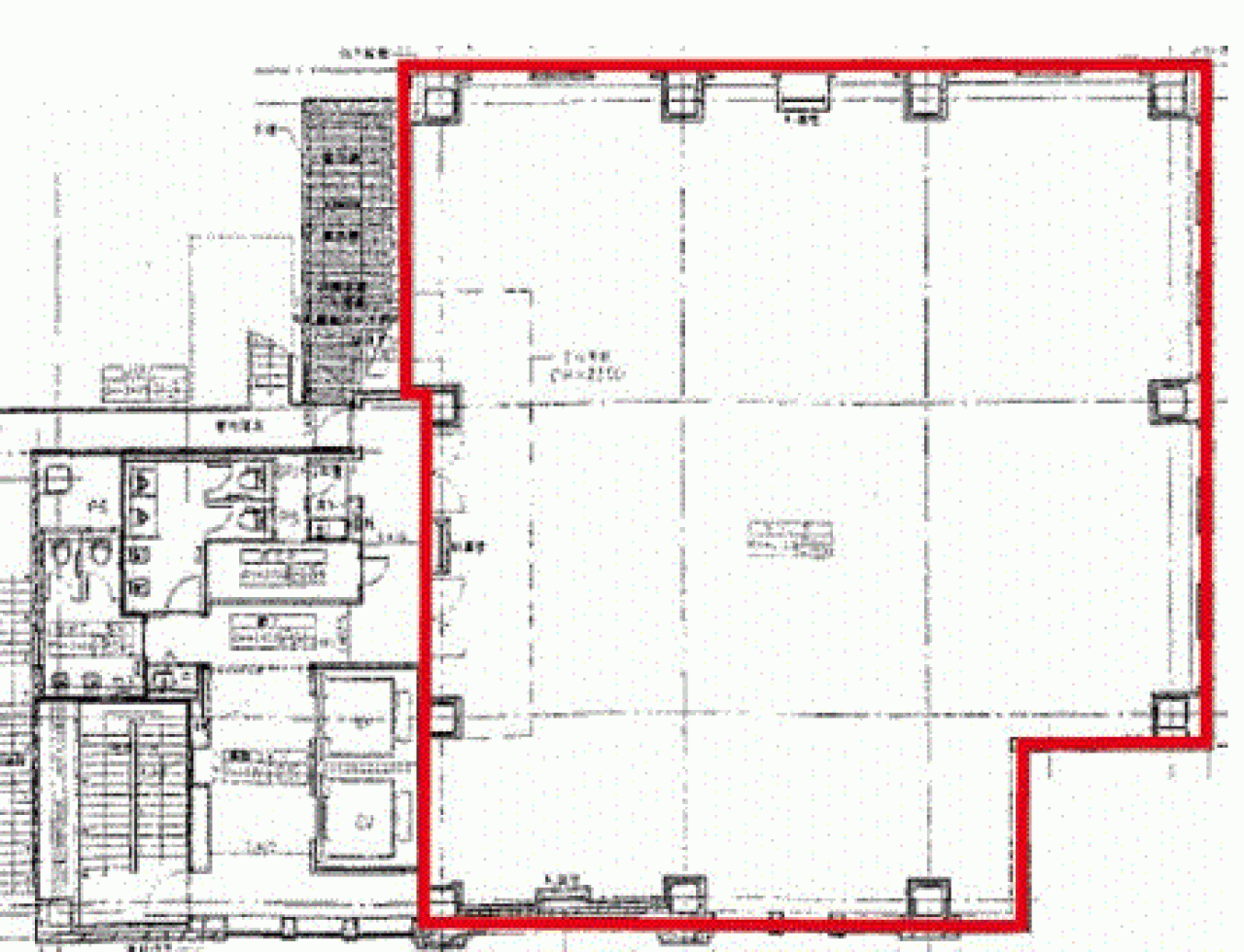
間取り図
-
近隣相場情報
内神田1丁目(100坪以上)の相場
43959 円 (坪)
※ビルサク調べ
周辺施設情報
| コンビニ |
ファミリーマート/内神田二丁目店/400m(徒歩5分) ローソン/大手町二丁目/230m(徒歩3分) |
|---|---|
| 郵便局/銀行 |
三菱UFJ銀行/ATM 大手町ビルヂング/[営業時間] [ATM]平日 8:45~19:00 土曜日 9:00~17:00 日・祝日 -/650m(徒歩8分) イオン銀行/ATM まいばすけっと神田駅西店出張所/[営業時間]7:00~23:00/250m(徒歩3分) |
| 飲食店 |
Terrasse (テラッセ)/17時30分~22時00分/400m(徒歩5分) Lady Blue/11時30分~20時00分/450m(徒歩6分) |
| カフェ |
スターバックス/大手町ビル店/[営業時間]月~金:7:00~22:00 土:7:00~21:00 ※臨時営業時間のお知らせ 下記の日程は臨時の営業時間となります。2021年5月31日~2021年6月5日 営業時間:7:00~20:00 2021年6月7日~2021年6月12日 営業時間:7:00~20:00 2021年6月14日~2021年6月19日 営業時間:7:00~20:00 [休業日]日・祝 [備考]無線LAN:STA/600m(徒歩7分) Tee Time/8時00分~20時00分/400m(徒歩5分) |
| コインパーキング |
タイムズ/内神田第15 [料金] [月~土]通常料金 / 8:00~22:00 15分 440円 22:00~8:00 60分 110円 [日・祝]通常料金 / 8:00~22:00 30分 330円 22:00~8:00 60分 110円 [台数]1 名鉄協商パーキング/千代田第6内神田3丁目 |
周辺地図
笠原ビルは千代田区内神田にある地下1階、地上13階建ての賃貸事務所です。最寄駅は東京メトロ丸ノ内線の大手町駅から徒歩3分、東京メトロ銀座線の神田駅から徒歩6分、JR山手線の神田駅から徒歩5分です。2008年1月竣工の基準階面積が141.91坪の鉄骨鉄筋コンクリート造です。設備としては、エレベーターが2基あります。駐車場もあります。警備は機械警備です。トイレは室外男女別です。空調は個別空調です。床仕様はフリーアクセスです。天高は2700mmです。耐震設計となっている、複数路線利用可能なアクセスの良い千代田区内神田の賃貸オフィスです。
全フロア情報
更新日:2025年11月25日
| 階 | 面積 | 賃料 | 共益費 | 敷金 | 入居日 | お問合せ | お気に入り | |
|---|---|---|---|---|---|---|---|---|
| 1F |
65.34 坪 216 ㎡ |
※現在空室情報はございません |
※現在空室情報は 確認する |
|||||
| 2F |
113.14 坪 374.02 ㎡ |
※現在空室情報はございません |
※現在空室情報は 確認する |
|||||
| 3F |
114.35 坪 378.02 ㎡ |
※現在空室情報はございません |
※現在空室情報は 確認する |
|||||
| 4F |
114.35 坪 378.02 ㎡ |
相談 |
457,400 円 4,000 円(坪) |
10ヶ月 |
2026/05/01 |
|
|
|
| 7F |
114.35 坪 378.02 ㎡ |
※現在空室情報はございません |
※現在空室情報は 確認する |
|||||
お問い合わせ
似た条件の物件はこちら
-
大手町ゲートビルディング
東京都千代田区内神田1-31-11
坪数:94.48 坪
坪単価:64,564 円(坪)
-
偕楽ビル(新末広)
東京都千代田区外神田6-5-12
坪数:126 坪
坪単価:14,000 円(坪)
-
THE PORTAL IWAMOTOCHO
東京都千代田区岩本町2-8-8
坪数:87.84 坪
坪単価:24,000 円(坪)
-
VORT秋葉原BLD.
東京都千代田区神田須田町2-7-3
坪数:124.85 坪
坪単価:20,000 円(坪)
-
早川トナカイビル
東京都千代田区岩本町2-12-5
坪数:114.49 坪
坪単価:16,000 円(坪)
-
WORK VILLA MYJ Kanda
東京都千代田区神田小川町1-4-4
坪数:95.69 坪
坪単価:33,441 円(坪)
-
センボービル
東京都千代田区内神田2-16-9
坪数:114.4 坪
坪単価:16,300 円(坪)
-
佐藤産業ビル
東京都千代田区岩本町2-6-9
坪数:92.17 坪
坪単価:15,000 円(坪)
-
第1電波ビル
東京都千代田区外神田2-4-4
坪数:85.52 坪
坪単価:12,000 円(坪)
-
ムラタヤビル
東京都千代田区神田練塀町68
坪数:88 坪
坪単価:13,000 円(坪)
関連エリアから探す
- 内神田
- 神田淡路町
- 神田小川町
- 神田鍛冶町
- 神田須田町
- 神田駿河台
- 神田多町
- 神田司町
- 神田錦町
- 神田美土代町
- 岩本町
- 鍛冶町
- 神田岩本町
- 神田北乗物町
- 神田紺屋町
- 神田富山町
- 神田西福田町
- 神田東松下町
- 神田東紺屋町
- 神田美倉町
- 東神田
- 神田相生町
- 神田和泉町
- 神田佐久間町
- 神田佐久間河岸
- 神田練塀町
- 神田花岡町
- 神田松永町
- 外神田
- 神田平河町