いろいろ聞いてみる

太子堂の賃貸オフィス

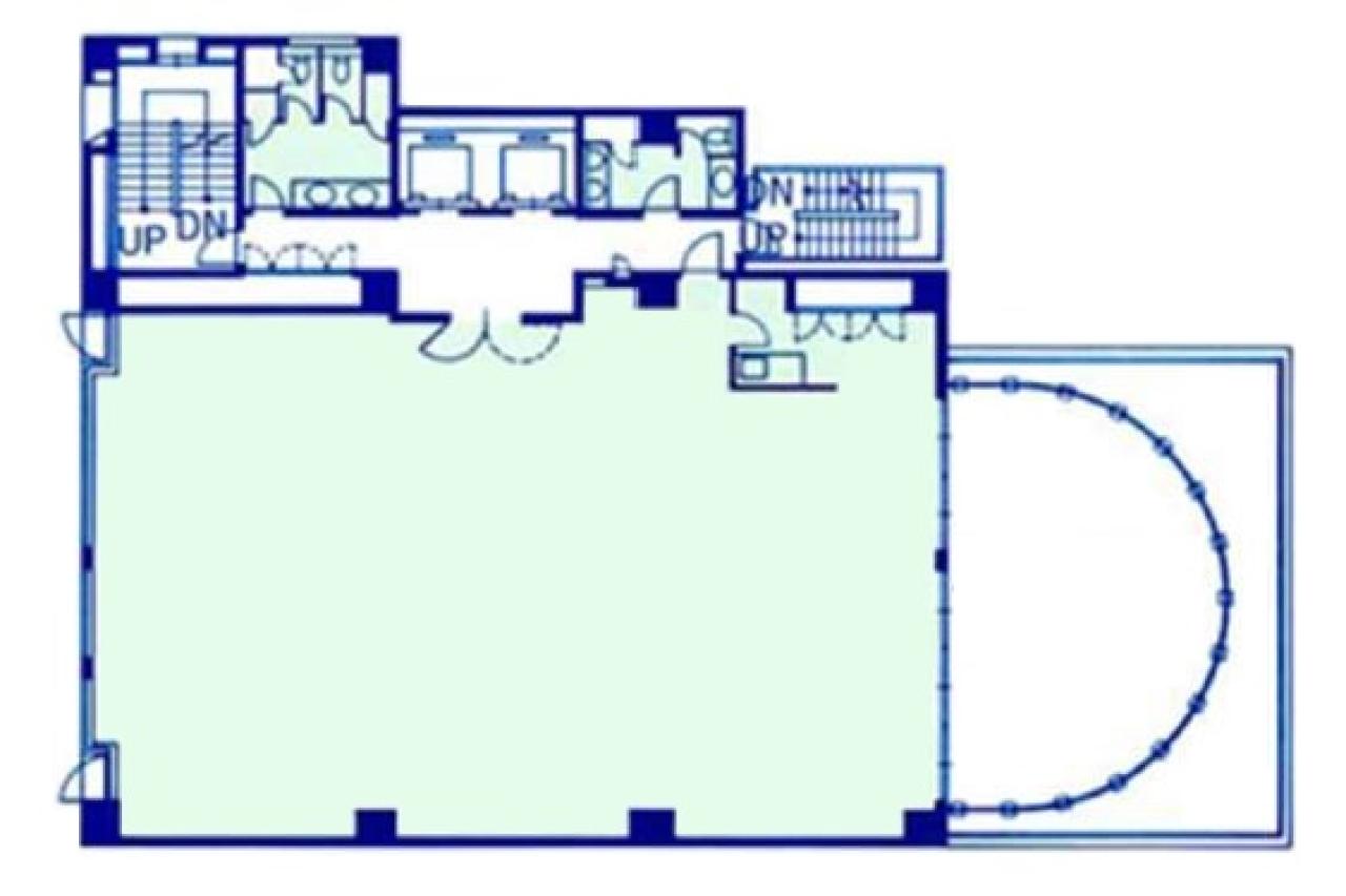
萩藤ビル(物件No:71585230)

萩藤ビルは、世田谷区太子堂にある地上8階建ての貸倉庫です。最寄駅は東急田園都市線の三軒茶屋駅から徒歩7分、東急世田谷線の三軒茶屋駅から徒歩8分です。1993年2月竣工の基準階面積が73.95坪の鉄骨鉄筋コンクリート造です。設備としては、エレベーターが1基あり、駐車場もあります。セキュリティは機械警備です。耐震設計となっている、コンビニや飲食店などの周辺施設が充実した世田谷区太子堂の貸倉庫です。

  • 萩藤ビル
  • 萩藤ビル
  • 萩藤ビル
  • 萩藤ビル
面積 賃料 共益費 敷金 入居日 お問合せ お気に入り
5F

73.95 坪

244.46 ㎡

※現在空室情報はございません

※現在空室情報は
ございません

最新情報を
確認する

周辺地図

萩藤ビルは、世田谷区太子堂にある地上8階建ての貸倉庫です。最寄駅は東急田園都市線の三軒茶屋駅から徒歩7分、東急世田谷線の三軒茶屋駅から徒歩8分です。1993年2月竣工の基準階面積が73.95坪の鉄骨鉄筋コンクリート造です。設備としては、エレベーターが1基あり、駐車場もあります。セキュリティは機械警備です。耐震設計となっている、コンビニや飲食店などの周辺施設が充実した世田谷区太子堂の貸倉庫です。

全フロア情報

更新日:2022年11月2日

面積 賃料 共益費 敷金 入居日 お問合せ お気に入り
1F

1.50 坪

4.96 ㎡

※現在空室情報はございません

※現在空室情報は
ございません

最新情報を
確認する
4F

99.43 坪

328.69 ㎡

※現在空室情報はございません

※現在空室情報は
ございません

最新情報を
確認する
5F

73.95 坪

244.46 ㎡

※現在空室情報はございません

※現在空室情報は
ございません

最新情報を
確認する
7F

73.95 坪

244.46 ㎡

※現在空室情報はございません

※現在空室情報は
ございません

最新情報を
確認する
8F

48.25 坪

159.50 ㎡

※現在空室情報はございません

※現在空室情報は
ございません

最新情報を
確認する

お問い合わせ

必須
必須
必須
必須
必須

似た条件の物件はこちら

関連エリアから探す

駅から探す

お問い合わせ

物件に関してのお問い合わせ

「失敗しないオフィス移転サポート」物件探しから移転までスムーズで担当者様がとにかく楽になるサービスです。

050-7587-0049平日 9:00~18:00

メールでお問い合わせ

フリーワード検索