FUJIBUILDING HARAJYUKU(物件No:71481056)
FUJIBUILDING HARAJYUKUは渋谷区神宮前にある地下1階、地上8階建ての賃貸事務所です。最寄駅は東京メトロ副都心線の明治神宮前〈原宿〉駅から徒歩5分、JR山手線の原宿駅から徒歩7分、東京メトロ千代田線の明治神宮前〈原宿〉駅から徒歩5分です。1989年1月竣工の基準階面積が40.04坪の鉄骨鉄筋コンクリート造です。設備としては、エレベーターが1基あり、駐車場もあります。トイレは男女別です。空調は個別空調です。床仕様はフリーアクセスです。天高は3550mmです。耐震設計となっている、複数路線利用可能なアクセスの良い渋谷区神宮前の賃貸オフィスです。
-
物件情報
- 住所
- 東京都渋谷区神宮前3-25-12
- 最寄り駅
-
東京メトロ副都心線
明治神宮前〈原宿〉駅
徒歩5分
東京メトロ千代田線 明治神宮前〈原宿〉駅 徒歩5分
JR山手線 原宿駅 徒歩7分
- 竣工
- 1989年
- 耐震
- 新耐震基準
- 規模・構造
- B1F - 8F 鉄骨鉄筋コンクリート造
-
設備情報
- トイレ
- 男女別
- 床
- フリーアクセス
- 空調
- 個別空調
- セキュリティ
- -
- 駐車場
- 有
- 会議室
- -
- エレベーター
- 1基
- 天井高
- 2670mm
-
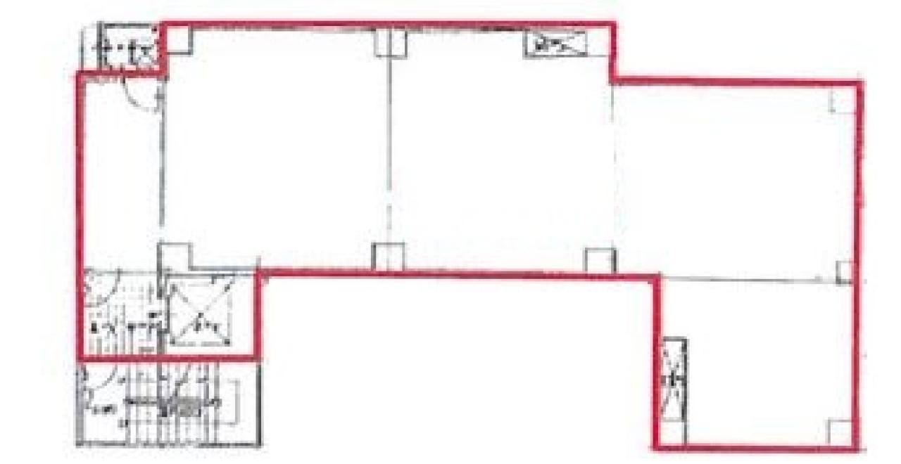
間取り図
-
近隣相場情報
神宮前3丁目(40~50坪)の相場
21750 円 (坪)
※ビルサク調べ
周辺施設情報
| コンビニ |
ファミリーマート/神宮前二丁目店/190m(徒歩2分) ミニストップ/神宮前1丁目店/200m(徒歩3分) |
|---|---|
| 郵便局/銀行 |
みずほ銀行/ATM 神宮前三丁目出張所/[営業時間] [ATM]平日 7:00~24:00 土曜日 8:00~21:00 日曜日 8:00~21:00 祝日・振替休日 8:00~21:00/110m(徒歩1分) ローソン銀行/神宮前一丁目共同出張所/[営業時間]24時間 サービス提供時間は、設置先の営業時間に準じます(設置している店舗等の営業時間により、一部時間帯でご利用いただけない場合があります) [取扱]本人確認サービス対応、ATMチャージ/ATM払戻サービス、スマホATM(QR入出金)、海外発行カード/海外送金、視覚障害者対応 [備考]当/220m(徒歩3分) |
| 飲食店 |
串もん酒場 ちゃい九炉 原宿店/17時00分~1時00分/79m(徒歩1分) レッドロック 原宿店/11時30分~21時00分/30m(徒歩1分) |
| カフェ |
モッチャム/原宿店/[営業時間]11:00~19:00/140m(徒歩2分) リシュー/10時00分~19時00分/50m(徒歩1分) |
| コインパーキング |
エコロパーク/原宿通り第1 [料金] 全日 昼 8時~24時 12分300円 全日 夜 24時~8時 60分200円 [最大料金] 月~土 4時間 最大2400円 日曜/祝日 12時間 最大2000円 [台数]1 NPD/神宮前テラス駐車場 [料金] 通常 300円/20分 [最大料金] 平日 2000円/1日 土日 2000円/1日 宿泊料金 1000円 [営業時間]平日 8:00~21:00 土曜日 8:00~21:00 日祝 8:00~21:00 [備考]屋内 |
周辺地図
FUJIBUILDING HARAJYUKUは渋谷区神宮前にある地下1階、地上8階建ての賃貸事務所です。最寄駅は東京メトロ副都心線の明治神宮前〈原宿〉駅から徒歩5分、JR山手線の原宿駅から徒歩7分、東京メトロ千代田線の明治神宮前〈原宿〉駅から徒歩5分です。1989年1月竣工の基準階面積が40.04坪の鉄骨鉄筋コンクリート造です。設備としては、エレベーターが1基あり、駐車場もあります。トイレは男女別です。空調は個別空調です。床仕様はフリーアクセスです。天高は3550mmです。耐震設計となっている、複数路線利用可能なアクセスの良い渋谷区神宮前の賃貸オフィスです。
全フロア情報
更新日:2025年12月4日
| 階 | 面積 | 賃料 | 共益費 | 敷金 | 入居日 | お問合せ | お気に入り | |
|---|---|---|---|---|---|---|---|---|
| 3F |
40.04 坪 132.36 ㎡ |
※現在空室情報はございません |
※現在空室情報は 確認する |
|||||
| 7-8F |
53.75 坪 177.69 ㎡ |
1,343,750 円 25,000 円(坪) |
161,250 円 3,000 円(坪) |
5,375,000 円 4 ヶ月 |
2026/04/01 |
|
|
|
お問い合わせ
似た条件の物件はこちら
-
ルート神南ビル
東京都渋谷区神南1-5-13
坪数:31.78 坪
坪単価:25,000 円(坪)
-
冨貴ビル
東京都渋谷区神宮前6-9-1
坪数:47.25 坪
坪単価:27,937 円(坪)
-
清澤ビル
東京都渋谷区渋谷3-17-2
坪数:38.11 坪
坪単価:25,500 円(坪)
-
ベリータ
東京都渋谷区東3-12-13
坪数:31.67 坪
坪単価:20,500 円(坪)
-
倉島渋谷ビル
東京都渋谷区渋谷2-3-8
坪数:49.26 坪
坪単価:18,000 円(坪)
-
越一ビル
東京都渋谷区神宮前6-19-16
坪数:30.2 坪
坪単価:22,000 円(坪)
-
モドマルシェ渋谷桜丘
東京都渋谷区桜丘町10-4
坪数:33.71 坪
坪単価:18,000 円(坪)
-
桑原ビル
東京都渋谷区神宮前3-24-3
坪数:42.20 坪
坪単価:16,000 円(坪)
-
丸栄ビル
東京都渋谷区神南1-9-7
坪数:32.83 坪
坪単価:16,601 円(坪)
-
第27SYビル
東京都渋谷区渋谷1-8-7
坪数:34 坪
坪単価:25,000 円(坪)