第一南櫻ビル(物件No:71383195)
第1南桜ビルは、東京都港区西新橋にある地下1階、地上7階建ての賃貸オフィスです。最寄駅は都営三田線の内幸町駅から徒歩5分、東京メトロ日比谷線の虎ノ門ヒルズ駅から徒歩8分、JR線の新橋駅から徒歩7分、都営三田線の御成門駅から徒歩8分、東京メトロ銀座線の虎ノ門駅から徒歩6分です。1965年1月竣工の基準階面積が85坪の鉄筋コンクリート造です。設備としては、エレベーターが1基あります。トイレは室外男女別です。空調は個別空調です。床仕様はフリーアクセス/タイルカーペットです。複数路線利用可能なアクセスの良い東京都港区西新橋の賃貸事務所です。
-
物件情報
-
設備情報
- トイレ
- 室外男女別
- 床
- タイルカーペット
- 空調
- 個別空調
- セキュリティ
- -
- 駐車場
- -
- 会議室
- -
- エレベーター
- 1基
- 天井高
- -
-
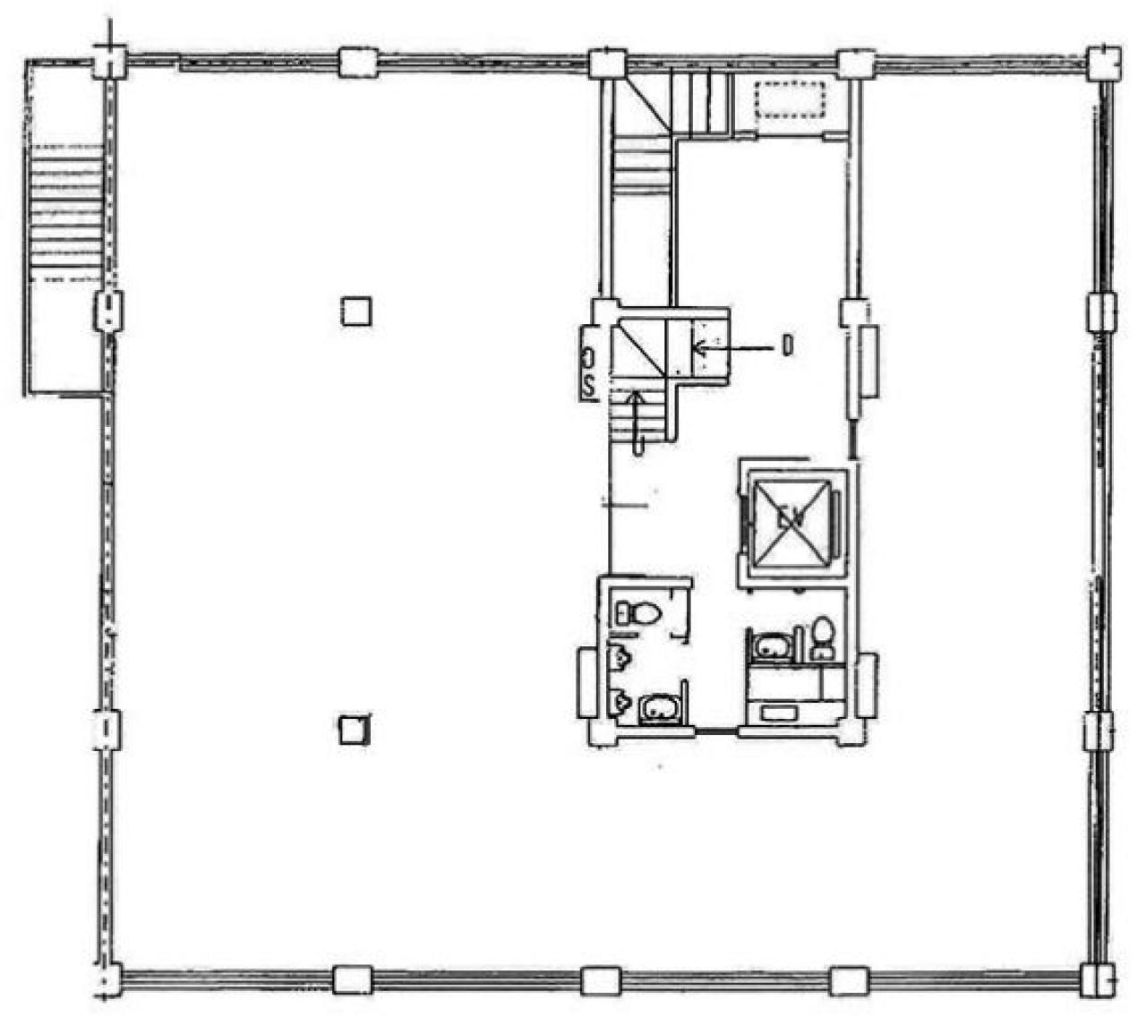
間取り図
-
近隣相場情報
西新橋2丁目(50~100坪)の相場
27332 円 (坪)
※ビルサク調べ
周辺施設情報
コンビニ |
ファミリーマート/西新橋二丁目店/180m(徒歩2分) ローソン/ナチュラル 虎ノ門巴町/700m(徒歩9分) |
---|---|
郵便局/銀行 |
セブン銀行/西新橋3丁目店/[営業時間]24時間営業 [備考]1 台/220m(徒歩3分) 郵便局/ATM ファミリーマート新橋仲通り南店内出張所/[ATM]平日0:05~23:55、土曜0:05~23:55、日曜0:05~23:55/400m(徒歩6分) |
飲食店 |
喰呑をかし/11時30分~13時30分、17時30分~23時00分/62m(徒歩1分) からやま 新橋店/10時30分~22時30分/600m(徒歩8分) |
カフェ |
キーズカフェ/KEY’S CAFE -CLASSE-/[営業時間]8:00~17:00 [休業日]土日祝 [駐車場]- [備考]テラス席32席(全席禁煙)/180m(徒歩2分) 日立ハイテクカフェラウンジ/8時00分~11時45分、12時45分~17時00分/350m(徒歩5分) |
コインパーキング |
タイムズ駐車場/西新橋3丁目第2 [料金] [月~金]通常料金 / 00:00-00:00 10分 400円 [土・日・祝]通常料金 / 00:00-00:00 10分 400円 [最大料金] [土・日・祝]当日1日最大料金2800円(24時迄) [台数]2 三井のリパーク/西新橋2丁目第5 [料金] 平日 08:00~00:00 15分/400円、平日 00:00~08:00 60分/100円 日祝 08:00~00:00 15分/400円、日祝 00:00~08:00 60分/100円 [最大料金] 【月~土】最大料金入庫当日24時まで4500円 【日祝】最大料金入庫当日24時まで1200円 [台数]17 |
周辺地図
第1南桜ビルは、東京都港区西新橋にある地下1階、地上7階建ての賃貸オフィスです。最寄駅は都営三田線の内幸町駅から徒歩5分、東京メトロ日比谷線の虎ノ門ヒルズ駅から徒歩8分、JR線の新橋駅から徒歩7分、都営三田線の御成門駅から徒歩8分、東京メトロ銀座線の虎ノ門駅から徒歩6分です。1965年1月竣工の基準階面積が85坪の鉄筋コンクリート造です。設備としては、エレベーターが1基あります。トイレは室外男女別です。空調は個別空調です。床仕様はフリーアクセス/タイルカーペットです。複数路線利用可能なアクセスの良い東京都港区西新橋の賃貸事務所です。
全フロア情報
更新日:2024年3月20日
階 | 面積 | 賃料 | 共益費 | 敷金 | 入居日 | お問合せ | お気に入り | |
---|---|---|---|---|---|---|---|---|
1F |
78.00 坪 257.85 ㎡ |
※現在空室情報はございません |
※現在空室情報は 確認する |
|||||
3F |
85.00 坪 280.99 ㎡ |
※現在空室情報はございません |
※現在空室情報は 確認する |
|||||
4F |
85.00 坪 280.99 ㎡ |
※現在空室情報はございません |
※現在空室情報は 確認する |
|||||
6F |
73.00 坪 241.32 ㎡ |
※現在空室情報はございません |
※現在空室情報は 確認する |
お問い合わせ
似た条件の物件はこちら
-
堤ビルディング
東京都港区新橋1-13-12
坪数:76.39 坪
坪単価:21,500 円(坪)
-
西新橋JKビル
東京都港区西新橋3-15-12
坪数:69.95 坪
坪単価:15,400 円(坪)
-
カシケイビル
東京都港区新橋2-19-3
坪数:65.28 坪
坪単価:19,001 円(坪)
-
愛宕山PREX
東京都港区西新橋3-25-31
坪数:70.11 坪
坪単価:32,806 円(坪)
-
飯田ビル
東京都港区西新橋3-24-9
坪数:82 坪
坪単価:12,000 円(坪)
-
御成門BNビル
東京都港区新橋6-16-10
坪数:80 坪
坪単価:20,000 円(坪)
-
虎ノ門リンク
東京都港区西新橋2-11-13
坪数:73.8 坪
坪単価:27,100 円(坪)
-
村松ビル
東京都港区東新橋2-2-10
坪数:92.34 坪
坪単価:13,500 円(坪)