キューブ渋谷神南(物件No:70013290)
ガーデンキューブ渋谷神南は、渋谷区神南にある地下1階、地上6階建ての貸店舗物件/賃貸事務所です。最寄駅はJR線の渋谷駅から徒歩5分、東京メトロ銀座線の渋谷駅から徒歩5分、東京メトロ副都心線の渋谷駅から徒歩5分、東急東横線の渋谷駅から徒歩5分、東急田園都市線の渋谷駅から徒歩5分、京王井の頭線の渋谷駅から徒歩5分です。2021年1月竣工の鉄骨造です。設備としては、エレベーターが2基あります。セキュリティは機械警備です。トイレは室外男女別です。床仕様はフリーアクセスです。天高は2800mmです。耐震設計となっている、複数路線利用可能なアクセスの良い渋谷区神南の貸店舗物件/賃貸オフィスです。
-
物件情報
-
設備情報
- トイレ
- 室外男女別
- 床
- フリーアクセス
- 空調
- 個別空調
- セキュリティ
- 有
- 駐車場
- -
- 会議室
- -
- エレベーター
- 2基
- 天井高
- 2700mm
-
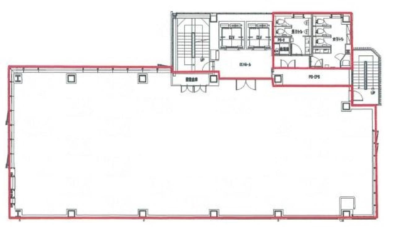
間取り図
-
近隣相場情報
神南1丁目(100坪以上)の相場
調査中
周辺地図
ガーデンキューブ渋谷神南は、渋谷区神南にある地下1階、地上6階建ての貸店舗物件/賃貸事務所です。最寄駅はJR線の渋谷駅から徒歩5分、東京メトロ銀座線の渋谷駅から徒歩5分、東京メトロ副都心線の渋谷駅から徒歩5分、東急東横線の渋谷駅から徒歩5分、東急田園都市線の渋谷駅から徒歩5分、京王井の頭線の渋谷駅から徒歩5分です。2021年1月竣工の鉄骨造です。設備としては、エレベーターが2基あります。セキュリティは機械警備です。トイレは室外男女別です。床仕様はフリーアクセスです。天高は2800mmです。耐震設計となっている、複数路線利用可能なアクセスの良い渋谷区神南の貸店舗物件/賃貸オフィスです。
全フロア情報
更新日:2025年12月1日
| 階 | 面積 | 賃料 | 共益費 | 敷金 | 入居日 | お問合せ | お気に入り | |
|---|---|---|---|---|---|---|---|---|
| 2F |
120.26 坪 397.55 ㎡ |
※現在空室情報はございません |
※現在空室情報は 確認する |
|||||
| 3F |
122.48 坪 404.89 ㎡ |
相談 |
込 |
相談 |
2026/04/27 |
|
|
|
| 4F |
120.26 坪 397.55 ㎡ |
※現在空室情報はございません |
※現在空室情報は 確認する |
|||||
| 5F |
114.62 坪 378.91 ㎡ |
※現在空室情報はございません |
※現在空室情報は 確認する |
|||||
| 6F |
114.62 坪 378.91 ㎡ |
※現在空室情報はございません |
※現在空室情報は 確認する |
|||||
お問い合わせ
似た条件の物件はこちら
-
日本会館
東京都渋谷区桜丘町18-6
坪数:100.44 坪
坪単価:27,500 円(坪)
-
EDGE南青山
東京都渋谷区渋谷4-2-12
坪数:113.6 坪
坪単価:24,000 円(坪)
-
二宮ビル
東京都渋谷区桜丘町18-4
坪数:104.37 坪
坪単価:24,500 円(坪)
-
並木橋ビル
東京都渋谷区渋谷3-15-6
坪数:100.36 坪
坪単価:20,000 円(坪)
-
祐真ビル新館
東京都渋谷区渋谷3-27-11
坪数:136.4 坪
坪単価:30,000 円(坪)
-
渋谷TSKビル
東京都渋谷区南平台町3-8
坪数:104.66 坪
坪単価:25,000 円(坪)
-
寿パークビル
東京都渋谷区道玄坂1-20-8
坪数:93.25 坪
坪単価:20,300 円(坪)
-
PMO渋谷Ⅱ
東京都渋谷区渋谷3-1-1
坪数:138.01 坪
坪単価:43,000 円(坪)
-
HACO JINGUMAE
東京都渋谷区神宮前2-26-8
坪数:137.65 坪
坪単価:22,938 円(坪)
-
松濤館
東京都渋谷区松濤1
坪数:98.98 坪
坪単価:27,554 円(坪)