楽ビル(物件No:61984134)
楽ビル(旧:河村ビル)は、港区赤坂にある貸事務所物件です。最寄り駅は東京メトロ丸の内線、銀座線の赤坂見附駅、東京メトロ半蔵門線、南北線、有楽町線の永田町駅、東京メトロ千代田線赤坂駅です。1969年竣工で、基準階が39坪の賃貸オフィスビルです。天高は2600mmで、床は2WAYとなっています。空調は個別空調でトイレは室外にあり、男女共用です。エレベーターは1基あります。複数路線利用可能な、アクセスの良い港区赤坂の貸事務所です。
階 | 面積 | 賃料 | 共益費 | 敷金 | 入居日 | お問合せ | お気に入り |
---|---|---|---|---|---|---|---|
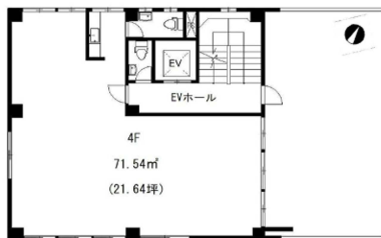
4F |
21.64 坪 71.54 ㎡ |
472,145 円 21,818 円(坪) |
未定 |
1,888,580 円 4 ヶ月 |
即日 |
|
|
階 | 面積 | 賃料 | 共益費 | 敷金 | 入居日 | お問合せ | お気に入り |
---|---|---|---|---|---|---|---|
4F |
21.64 坪 71.54 ㎡ |
472,145 円 21,818 円(坪) |
未定 |
1,888,580 円 4 ヶ月 |
即日 |
|
|
-
物件情報
-
設備情報
- トイレ
- 室外男女共用
- 床
- 2WAY
- 空調
- 個別空調
- セキュリティ
- -
- 駐車場
- -
- 会議室
- -
- エレベーター
- 1基
- 天井高
- 2600mm
-
間取り図
-
近隣相場情報
赤坂3丁目(20~30坪)の相場
21368 円 (坪)
※ビルサク調べ
周辺施設情報
コンビニ |
セブンイレブン/赤坂4丁目/500m(徒歩7分) ファミリーマート/エスプラナード赤坂店/280m(徒歩3分) |
---|---|
郵便局/銀行 |
バンクタイム/ATM ファミリーマート 永田町店/[営業時間]全日/24H営業 ※毎週日曜日23:00~翌日7:00 および 毎月第二土曜日23:00~翌日8:00はご利用になれません。※店舗の営業時間により、ATM営業時間が変更となる場合があります/280m(徒歩4分) セブン銀行/赤坂Bizタワー店/[営業時間]24時間営業ではありません [備考]3 台/450m(徒歩6分) |
飲食店 |
バール・デルソーレ/7時00分~0時00分/130m(徒歩2分) シュマッツ ビアダイニング 赤坂店/17時00分~23時00分/170m(徒歩2分) |
カフェ |
タリーズ/東急プラザ赤坂店/[営業時間]平日:7:00~22:00 土 :8:00~20:00 日祝:8:00~19:00 [備考]Tully's Wi-Fi/200m(徒歩3分) プロント/espressamente illy 赤坂Bizタワー店/[営業時間]平日:カフェ 7:00~23:00 土曜:カフェ 7:00~22:30 日曜:カフェ 7:00~22:30 [休業日]無休 [備考]72席/空間分煙/600m(徒歩8分) |
コインパーキング |
NTTル・パルク/赤坂見附第1 [料金] 昼 8:00-20:00 20分 500円 夜 20:00-8:00 30分 500円 [最大料金] 夜20:00-8:00最大料金 2,000円(繰り返しOK) <No.4・5車室限定>駐車後12時間以内 4,000円 [台数]:5台 タイムズ駐車場/赤坂3丁目第2 [料金] [全日]0:00~0:00 12分 330円 [最大料金] [全日]19:00~8:00 最大料金2200円 [台数]2 |
周辺地図
楽ビル(旧:河村ビル)は、港区赤坂にある貸事務所物件です。最寄り駅は東京メトロ丸の内線、銀座線の赤坂見附駅、東京メトロ半蔵門線、南北線、有楽町線の永田町駅、東京メトロ千代田線赤坂駅です。1969年竣工で、基準階が39坪の賃貸オフィスビルです。天高は2600mmで、床は2WAYとなっています。空調は個別空調でトイレは室外にあり、男女共用です。エレベーターは1基あります。複数路線利用可能な、アクセスの良い港区赤坂の貸事務所です。
全フロア情報
更新日:2025年9月11日
階 | 面積 | 賃料 | 共益費 | 敷金 | 入居日 | お問合せ | お気に入り | |
---|---|---|---|---|---|---|---|---|
4F |
21.64 坪 71.54 ㎡ |
472,145 円 21,818 円(坪) |
未定 |
1,888,580 円 4 ヶ月 |
即日 |
|
|
|
5F |
27.52 坪 90.97 ㎡ |
587,937 円 21,364 円(坪) |
未定 |
2,351,748 円 4 ヶ月 |
即日 |
|
|
|
6F |
14.97 坪 49.49 ㎡ |
※現在空室情報はございません |
※現在空室情報は 確認する |
お問い合わせ
似た条件の物件はこちら
-
ライオンズマンション赤坂
東京都港区赤坂7-5-6
坪数:22.7 坪
坪単価:17,000 円(坪)
-
第4文成ビル
東京都港区赤坂7-10-9
坪数:17 坪
坪単価:20,000 円(坪)
-
赤坂余湖ビル
東京都港区赤坂4-8-6
坪数:18.48 坪
坪単価:15,000 円(坪)
-
赤坂ASビル
東京都港区赤坂7-11-10
坪数:20.8 坪
坪単価:16,000 円(坪)
-
ゴールド赤坂
東京都港区赤坂3-12-11
坪数:17.58 坪
坪単価:23,891 円(坪)
-
赤坂鈴木ビル
東京都港区赤坂3-19-13
坪数:21.56 坪
坪単価:26,438 円(坪)
-
第2中田ビル
東京都港区赤坂1-3-15
坪数:21 坪
坪単価:15,952 円(坪)
-
内田ビル
東京都港区赤坂2-19-5
坪数:20.57 坪
坪単価:8,653 円(坪)
-
溜池山王葵ビル
東京都港区赤坂2-8-11
坪数:20.09 坪
坪単価:16,008 円(坪)
-
赤坂ヒルサイド
東京都港区赤坂2-20-13
坪数:23.34 坪
坪単価:13,925 円(坪)