カンバラビル(物件No:61889109)
カンバラビルは、台東区上野にある貸事務所物件です。最寄り駅は東京メトロ銀座線、日比谷線、JR線の上野駅、JR線の鶯谷駅、東京メトロ日比谷線の入谷駅です。1971年竣工の賃貸オフィスビルです。トイレは室内にあり、男女別です。駐車場があり、エレベーターは1基あります。複数路線利用可能な、アクセスの良い台東区上野の貸事務所です。
-
物件情報
-
設備情報
- トイレ
- 室内男女別
- 床
- -
- 空調
- -
- セキュリティ
- -
- 駐車場
- 有
- 会議室
- -
- エレベーター
- 1基
- 天井高
- -
-
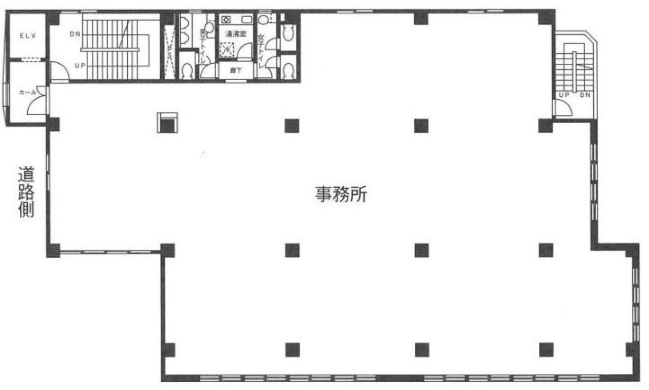
間取り図
-
近隣相場情報
上野公園18丁目(50~100坪)の相場
調査中
周辺地図
カンバラビルは、台東区上野にある貸事務所物件です。最寄り駅は東京メトロ銀座線、日比谷線、JR線の上野駅、JR線の鶯谷駅、東京メトロ日比谷線の入谷駅です。1971年竣工の賃貸オフィスビルです。トイレは室内にあり、男女別です。駐車場があり、エレベーターは1基あります。複数路線利用可能な、アクセスの良い台東区上野の貸事務所です。
全フロア情報
更新日:2025年10月29日
| 階 | 面積 | 賃料 | 共益費 | 敷金 | 入居日 | お問合せ | お気に入り | |
|---|---|---|---|---|---|---|---|---|
| 3F |
96.45 坪 318.84 ㎡ |
※現在空室情報はございません |
※現在空室情報は 確認する |
|||||
お問い合わせ
似た条件の物件はこちら
-
シティコープ上野広徳
東京都台東区東上野4-6-7
坪数:105.45 坪
坪単価:12,850 円(坪)
-
キクヤビル
東京都台東区東上野1-28-9
坪数:90.67 坪
坪単価:13,000 円(坪)
-
上野富士ビル
東京都台東区東上野5-1-8
坪数:76 坪
坪単価:19,487 円(坪)