むさしのビル(物件No:61785099)
むさしのビルは、千代田区神田淡路町にある貸事務所物件で最寄り駅は地下鉄丸ノ内線淡路町駅、都営新宿線小川町駅、JR御茶ノ水駅です。1967年竣工の賃貸オフィスビルです。空調は個別空調です。エレベーターは1基あります。複数路線利用可能で交通アクセスの良い千代田区神田淡路町の貸事務所です。
| 階 | 面積 | 賃料 | 共益費 | 敷金 | 入居日 | お問合せ | お気に入り |
|---|---|---|---|---|---|---|---|
| 4F |
13.63 坪 45.06 ㎡ |
154,000 円 11,299 円(坪) |
20,000 円 1,467 円(坪) |
924,000 円 6 ヶ月 |
即日 |
|
|
| 階 | 面積 | 賃料 | 共益費 | 敷金 | 入居日 | お問合せ | お気に入り |
|---|---|---|---|---|---|---|---|
| 4F |
13.63 坪 45.06 ㎡ |
154,000 円 11,299 円(坪) |
20,000 円 1,467 円(坪) |
924,000 円 6 ヶ月 |
即日 |
|
|
-
物件情報
-
設備情報
- トイレ
- 室内男女共用
- 床
- -
- 空調
- 個別空調
- セキュリティ
- 有
- 駐車場
- 無
- 会議室
- -
- エレベーター
- 1基
- 天井高
- -
-
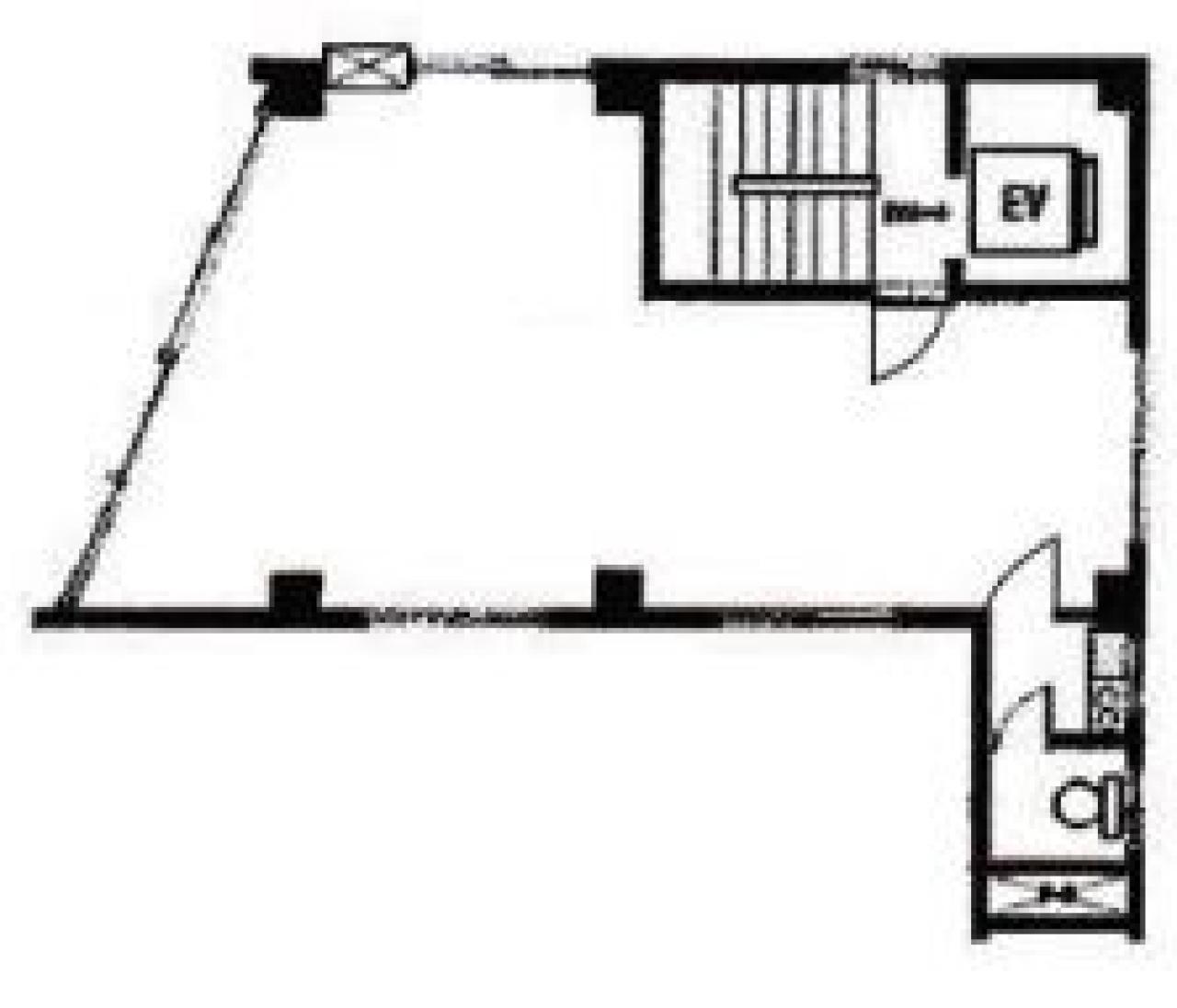
間取り図
-
近隣相場情報
神田淡路町1丁目(20坪以下)の相場
15750 円 (坪)
※ビルサク調べ
周辺地図
むさしのビルは、千代田区神田淡路町にある貸事務所物件で最寄り駅は地下鉄丸ノ内線淡路町駅、都営新宿線小川町駅、JR御茶ノ水駅です。1967年竣工の賃貸オフィスビルです。空調は個別空調です。エレベーターは1基あります。複数路線利用可能で交通アクセスの良い千代田区神田淡路町の貸事務所です。
全フロア情報
更新日:2025年10月30日
| 階 | 面積 | 賃料 | 共益費 | 敷金 | 入居日 | お問合せ | お気に入り | |
|---|---|---|---|---|---|---|---|---|
| 3F |
13.63 坪 45.06 ㎡ |
※現在空室情報はございません |
※現在空室情報は 確認する |
|||||
| 4F |
13.63 坪 45.06 ㎡ |
154,000 円 11,299 円(坪) |
20,000 円 1,467 円(坪) |
924,000 円 6 ヶ月 |
即日 |
|
|
|
お問い合わせ
似た条件の物件はこちら
-
大手町ゲートビルディング
東京都千代田区内神田1-31-11
坪数:11.65 坪
坪単価:77,253 円(坪)
-
アーバンスクエア神田ビル
東京都千代田区神田須田町1-18
坪数:14.18 坪
坪単価:17,000 円(坪)
-
第二櫻井ビル
東京都千代田区神田佐久間町3-5
坪数:17.24 坪
坪単価:11,996 円(坪)
-
矢板ビル
東京都千代田区内神田2-6-2
坪数:12.3 坪
坪単価:11,000 円(坪)
-
大丸アネックス
東京都千代田区内神田1-11-6
坪数:12.65 坪
坪単価:16,000 円(坪)
-
神田乗物町ビル
東京都千代田区神田北乗物町2
坪数:10.1 坪
坪単価:12,000 円(坪)
-
パレヤソジマ
東京都千代田区神田司町2-15-1
坪数:12.03 坪
坪単価:13,300 円(坪)
-
アクタス岩本町
東京都千代田区岩本町1-14-5
坪数:15.63 坪
坪単価:12,000 円(坪)
-
山崎ビル
東京都千代田区鍛冶町2-4-4
坪数:8 坪
坪単価:12,000 円(坪)
-
昭和ビル
東京都千代田区神田和泉町1-2-5
坪数:16.5 坪
坪単価:11,000 円(坪)
関連エリアから探す
- 内神田
- 神田淡路町
- 神田小川町
- 神田鍛冶町
- 神田須田町
- 神田駿河台
- 神田多町
- 神田司町
- 神田錦町
- 神田美土代町
- 岩本町
- 鍛冶町
- 神田岩本町
- 神田北乗物町
- 神田紺屋町
- 神田富山町
- 神田西福田町
- 神田東松下町
- 神田東紺屋町
- 神田美倉町
- 東神田
- 神田相生町
- 神田和泉町
- 神田佐久間町
- 神田佐久間河岸
- 神田練塀町
- 神田花岡町
- 神田松永町
- 外神田
- 神田平河町