アタゴ小林ビル(物件No:61685114)
アタゴ小林ビルは港区新橋にある地下1階、地上8階建ての賃貸事務所です。最寄駅は都営三田線の御成門駅から徒歩3分、都営浅草線の大門駅から徒歩7分、都営大江戸線の大門駅から徒歩7分、JR線の新橋駅から徒歩8分です。1988年竣工の鉄骨鉄筋コンクリート造です。設備としては、エレベーターが1基、駐車場もあります。空調は個別空調です。天高は2360mmです。耐震設計となっている、複数路線利用可能なアクセスの良い港区新橋の賃貸オフィスです。
-
物件情報
-
設備情報
- トイレ
- 室内男女共用
- 床
- タイルカーペット
- 空調
- 個別空調
- セキュリティ
- 有
- 駐車場
- 有
- 会議室
- -
- エレベーター
- 1基
- 天井高
- 2360mm
-
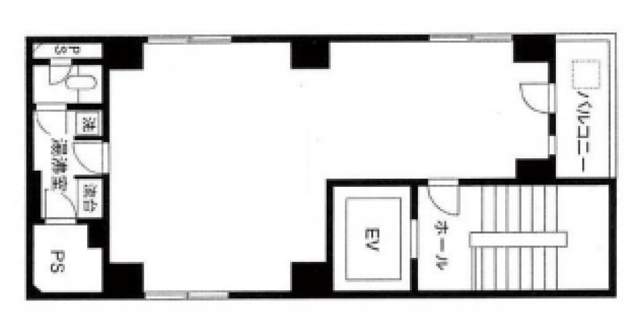
間取り図
-
近隣相場情報
新橋6丁目(20坪以下)の相場
14885 円 (坪)
※ビルサク調べ
周辺施設情報
コンビニ |
セブンイレブン/新橋5丁目/120m(徒歩1分) ローソン/新橋五丁目/210m(徒歩3分) |
---|---|
郵便局/銀行 |
三菱UFJ銀行/ATM 慈恵大学病院中央棟8階/[営業時間] [ATM]平日 9:00~18:00 土曜日 9:00~17:00 日・祝日 -/650m(徒歩9分) 関西みらい銀行/東京支店(旧関西アーバン銀行店舗)/[営業時間]平日/9:00~15:00 [ATM]平日/8:45~17:00/290m(徒歩4分) |
飲食店 |
西安刀削麺酒楼 新橋店/11時00分~15時00分、17時00分~23時30分/ 路地裏割烹 翔地/17時30分~21時30分/500m(徒歩6分) |
カフェ |
スターバックス/愛宕グリーンヒルズ店/[営業時間]月~金:7:00~21:00/土:8:00~19:00/日祝:9:00~19:00 [休業日]不定休 [備考]無線LAN:STARBUCKS/docomo/Softbank/au/Wi2 300/600m(徒歩8分) 上島珈琲店/No.11/[営業時間]平日 7:00~20:00 / 土日祝 8:00~18:00 [休業日]不定休 [取扱]コーヒー豆挽き売り モーニングメニュー テイクアウト可 [備考]96席(全席禁煙)/130m(徒歩2分) |
コインパーキング |
ナビパーク/新橋第1 [料金] 全曜日 24:00 ~ 24:00 15分 / 400円 [最大料金] 当日最大(日・祝) 1,000円 当日最大(月~土) 4,300円 夜間最大(全曜日) 19:00 ~ 8:00 500円 [台数]17台 うち月極・専用区画 0台 コインパーク/新橋6丁目第2 [料金] 【 月~土 】 ■通常料金 【 オールタイム(24時間) 】 15分/400円 【 日祝 】 ■通常料金 【 オールタイム(24時間) 】 15分/400円 [最大料金] 【 月~土 】 ■最大料金 【 駐車後12時間以内 (1回限り)】 4400円 【 日祝 】■最大料金 【 駐車後12時間以内 (1回限り)】 1000円 [台数][車: 10台] |
周辺地図
アタゴ小林ビルは港区新橋にある地下1階、地上8階建ての賃貸事務所です。最寄駅は都営三田線の御成門駅から徒歩3分、都営浅草線の大門駅から徒歩7分、都営大江戸線の大門駅から徒歩7分、JR線の新橋駅から徒歩8分です。1988年竣工の鉄骨鉄筋コンクリート造です。設備としては、エレベーターが1基、駐車場もあります。空調は個別空調です。天高は2360mmです。耐震設計となっている、複数路線利用可能なアクセスの良い港区新橋の賃貸オフィスです。
全フロア情報
更新日:2021年7月7日
階 | 面積 | 賃料 | 共益費 | 敷金 | 入居日 | お問合せ | お気に入り | |
---|---|---|---|---|---|---|---|---|
2F |
17.20 坪 56.86 ㎡ |
※現在空室情報はございません |
※現在空室情報は 確認する |
お問い合わせ
似た条件の物件はこちら
-
日比谷パークビル
東京都港区西新橋2-23-2
坪数:21.98 坪
坪単価:18,004 円(坪)
-
桔梗備前ビル
東京都港区西新橋1-19-6
坪数:20.63 坪
坪単価:18,420 円(坪)
-
プレイアデ虎ノ門
東京都港区西新橋2-33-4
坪数:17.21 坪
坪単価:16,270 円(坪)
-
S.A.グレイス
東京都港区西新橋1-23-3
坪数:16.65 坪
坪単価:23,000 円(坪)
-
上村ビル
東京都港区新橋5-27-6
坪数:12 坪
坪単価:10,000 円(坪)
-
虎ノ門RICHビル
東京都港区虎ノ門5-11-13
坪数:18.12 坪
坪単価:14,625 円(坪)
-
アヴァンセ虎ノ門ビル
東京都港区西新橋2-13-15
坪数:20.28 坪
坪単価:23,669 円(坪)
-
田村町Shinshodoh BLDG
東京都港区新橋4-27-7
坪数:14.17 坪
坪単価:25,000 円(坪)
-
虎ノ門林ビル
東京都港区虎ノ門1-15-11
坪数:16.31 坪
坪単価:17,500 円(坪)
-
YAHATA汐留ビル
東京都港区東新橋2-9-7
坪数:18.79 坪
坪単価:20,490 円(坪)