須賀ビル(物件No:61288117)
須賀ビルは品川区東五反田にある地下1階、地上8階建ての賃貸事務所です。最寄駅はJR線の五反田駅から徒歩1分、都営浅草線の五反田駅から徒歩1分、東急池上線の五反田駅から徒歩1分です。1973年竣工の基準階面積が51坪の鉄骨鉄筋コンクリート造です。設備としては、エレベーターが1基あります。警備は機械警備です。トイレは室外男女別です。空調は個別空調です。床仕様はフリーアクセスです。天高は2500mmです。最寄駅から近くて便利な品川区東五反田の賃貸オフィスです。
-
物件情報
-
設備情報
- トイレ
- 室外男女別
- 床
- フリーアクセス
- 空調
- 個別空調
- セキュリティ
- 有
- 駐車場
- 無
- 会議室
- 無
- エレベーター
- 1基
- 天井高
- 2500mm
-
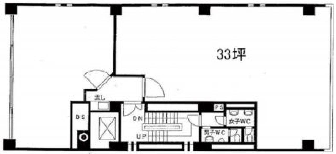
間取り図
-
近隣相場情報
東五反田1丁目(30~40坪)の相場
16699 円 (坪)
※ビルサク調べ
周辺地図
須賀ビルは品川区東五反田にある地下1階、地上8階建ての賃貸事務所です。最寄駅はJR線の五反田駅から徒歩1分、都営浅草線の五反田駅から徒歩1分、東急池上線の五反田駅から徒歩1分です。1973年竣工の基準階面積が51坪の鉄骨鉄筋コンクリート造です。設備としては、エレベーターが1基あります。警備は機械警備です。トイレは室外男女別です。空調は個別空調です。床仕様はフリーアクセスです。天高は2500mmです。最寄駅から近くて便利な品川区東五反田の賃貸オフィスです。
全フロア情報
更新日:2025年10月29日
| 階 | 面積 | 賃料 | 共益費 | 敷金 | 入居日 | お問合せ | お気に入り | |
|---|---|---|---|---|---|---|---|---|
| B1F |
30 坪 99.17 ㎡ |
※現在空室情報はございません |
※現在空室情報は 確認する |
|||||
| 2F |
33 坪 109.09 ㎡ |
※現在空室情報はございません |
※現在空室情報は 確認する |
|||||
|
2F
(北区画) |
18 坪 59.5 ㎡ |
※現在空室情報はございません |
※現在空室情報は 確認する |
|||||
| 4F |
51 坪 168.59 ㎡ |
※現在空室情報はございません |
※現在空室情報は 確認する |
|||||
| 6F |
33 坪 109.09 ㎡ |
※現在空室情報はございません |
※現在空室情報は 確認する |
|||||
| 7F |
50.97 坪 168.5 ㎡ |
1,020,000 円 20,012 円(坪) |
102,000 円 2,001 円(坪) |
6,120,000 円 6 ヶ月 |
相談 |
|
|
|
お問い合わせ
似た条件の物件はこちら
-
トラスト・リンク第Ⅲビル
東京都品川区上大崎2-13-45
坪数:28.37 坪
坪単価:19,017 円(坪)
-
東京モリスビル第10
東京都品川区西五反田7-16-3
坪数:26.33 坪
坪単価:14,500 円(坪)
-
THE GATE GOTANDA EAST
東京都品川区東五反田1-25-11
坪数:40.16 坪
坪単価:27,000 円(坪)
-
いちご五反田ビル
東京都品川区東五反田1-13-12
坪数:31.89 坪
坪単価:19,000 円(坪)
-
Y.BLDG
東京都品川区西五反田6-24-15
坪数:27.6 坪
坪単価:12,000 円(坪)
-
三信ビル
東京都品川区西五反田3-7-14
坪数:42.97 坪
坪単価:14,500 円(坪)
-
神野商事第二ビル
東京都品川区東五反田1-20-7
坪数:40.44 坪
坪単価:10,989 円(坪)
-
吾作ビル
東京都品川区西五反田1-29-2
坪数:35 坪
坪単価:13,000 円(坪)
-
五反田第三花谷ビル
東京都品川区東五反田5-28-9
坪数:38 坪
坪単価:12,500 円(坪)
-
オフィスサークルN五反田
東京都品川区東五反田5-22-37
坪数:33.59 坪
坪単価:14,000 円(坪)