いろいろ聞いてみる

青葉台の賃貸オフィス

HF青葉台ビル(物件No:61282188)

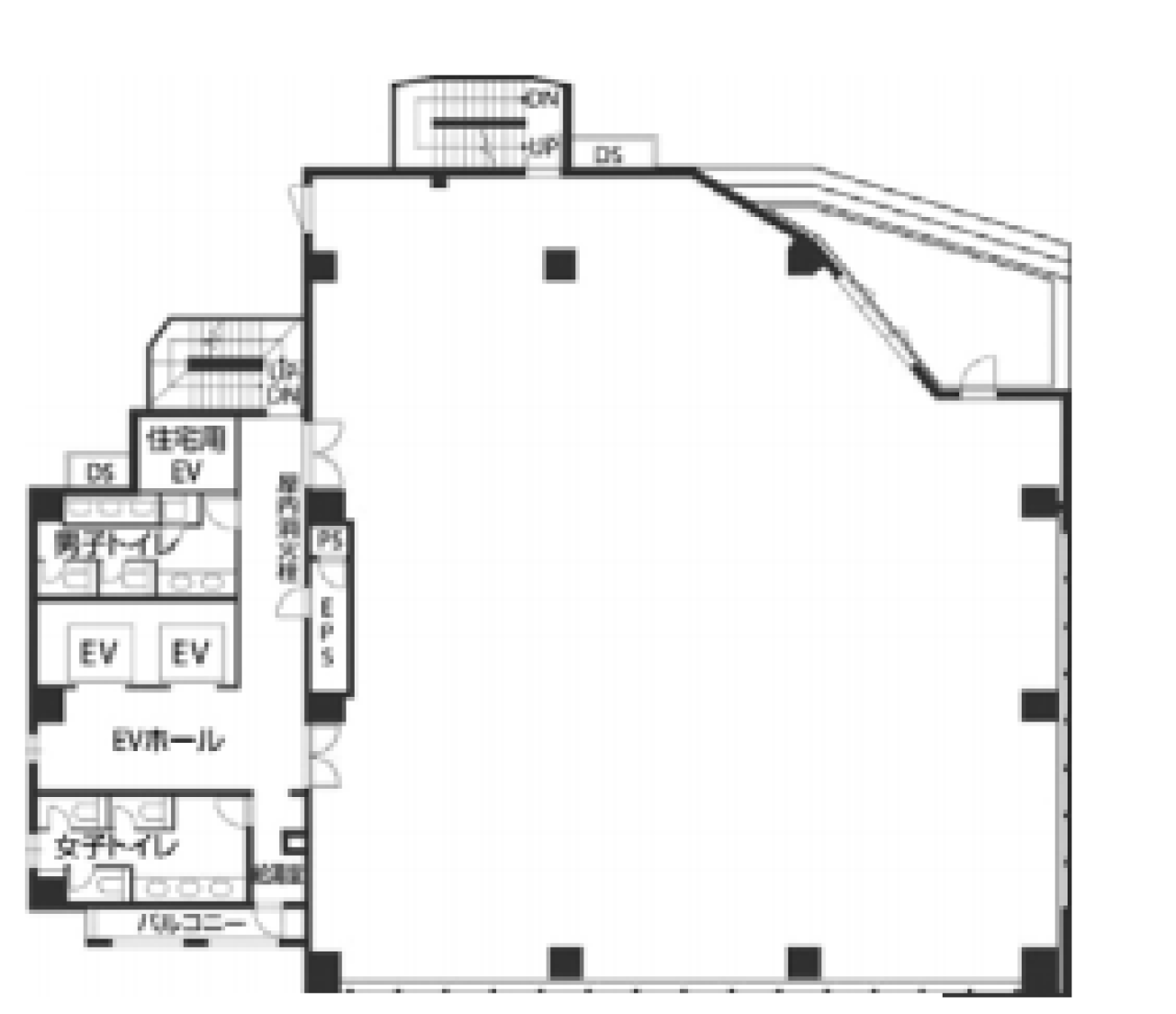
HF青葉台ビルは目黒区青葉台にある地上8階建ての賃貸事務所です。最寄駅は東急田園都市線の池尻大橋駅から徒歩7分、京王井の頭線の神泉駅から徒歩10分、東急東横線の中目黒駅から徒歩10分です。2009年竣工の基準階面積が158.28坪の鉄骨造です。設備としては、エレベーターが2基あり、駐車場もあります。セキュリティは機械警備です。トイレは室内男女別です。空調は個別空調です。床仕様はフリーアクセスです。天高は2700mmです。耐震設計となっている、複数駅利用可能なアクセスの良い目黒区青葉台の賃貸オフィスです。

  • HF青葉台ビル
  • HF青葉台ビル
  • HF青葉台ビル
  • HF青葉台ビル
  • HF青葉台ビル
  • HF青葉台ビル
  • HF青葉台ビル
  • HF青葉台ビル
  • HF青葉台ビル
  • HF青葉台ビル
  • HF青葉台ビル
  • HF青葉台ビル
  • HF青葉台ビル
  • HF青葉台ビル
  • HF青葉台ビル
  • HF青葉台ビル
  • HF青葉台ビル
  • HF青葉台ビル
  • HF青葉台ビル
  • HF青葉台ビル
  • HF青葉台ビル
  • HF青葉台ビル
面積 賃料 共益費 敷金 入居日 お問合せ お気に入り
5F

(1区画)

111.13 坪

367.37 ㎡

※現在空室情報はございません

※現在空室情報は
ございません

最新情報を
確認する

周辺地図

HF青葉台ビルは目黒区青葉台にある地上8階建ての賃貸事務所です。最寄駅は東急田園都市線の池尻大橋駅から徒歩7分、京王井の頭線の神泉駅から徒歩10分、東急東横線の中目黒駅から徒歩10分です。2009年竣工の基準階面積が158.28坪の鉄骨造です。設備としては、エレベーターが2基あり、駐車場もあります。セキュリティは機械警備です。トイレは室内男女別です。空調は個別空調です。床仕様はフリーアクセスです。天高は2700mmです。耐震設計となっている、複数駅利用可能なアクセスの良い目黒区青葉台の賃貸オフィスです。

全フロア情報

更新日:2025年10月29日

面積 賃料 共益費 敷金 入居日 お問合せ お気に入り
2F

158.28 坪

523.24 ㎡

※現在空室情報はございません

※現在空室情報は
ございません

最新情報を
確認する
4F

119.34 坪

394.51 ㎡

※現在空室情報はございません

※現在空室情報は
ございません

最新情報を
確認する
5F

(1区画)

111.13 坪

367.37 ㎡

※現在空室情報はございません

※現在空室情報は
ございません

最新情報を
確認する
6F

100.59 坪

332.53 ㎡

※現在空室情報はございません

※現在空室情報は
ございません

最新情報を
確認する
6F

(A区画)

28.36 坪

93.75 ㎡

※現在空室情報はございません

※現在空室情報は
ございません

最新情報を
確認する

お問い合わせ

必須
必須
必須
必須
必須

似た条件の物件はこちら

関連エリアから探す

駅から探す

お問い合わせ

物件に関してのお問い合わせ

「失敗しないオフィス移転サポート」物件探しから移転までスムーズで担当者様がとにかく楽になるサービスです。

050-7587-0049平日 9:00~18:00

メールでお問い合わせ

フリーワード検索