中川ビル(物件No:61185158)
中川ビルは、文京区湯島にある貸事務所物件です。最寄駅は、JR御徒町駅、千代田線湯島駅、銀座線末広町駅です。1986年竣工で基準階が90.13坪の賃貸オフィスビルです。床は1WAYで、天井の高さは2320mm。トイレは男女別で、空調は個別空調です。エレベーターは2基あり、セキュリティは機械警備となっています。駐車場が利用可能です。複数路線利用可能で交通アクセスの良い、文京区湯島の貸事務所です。
| 階 | 面積 | 賃料 | 共益費 | 敷金 | 入居日 | お問合せ | お気に入り | |
|---|---|---|---|---|---|---|---|---|
|
4F
(402区画) |
32.06 坪 105.98 ㎡ |
※現在空室情報はございません |
※現在空室情報は 確認する |
|||||
| 階 | 面積 | 賃料 | 共益費 | 敷金 | 入居日 | お問合せ | お気に入り | |
|---|---|---|---|---|---|---|---|---|
|
4F
(402区画) |
32.06 坪 105.98 ㎡ |
※現在空室情報はございません |
※現在空室情報は 確認する |
|||||
-
物件情報
-
設備情報
- トイレ
- 男女別
- 床
- タイルカーペット
- 空調
- 個別空調
- セキュリティ
- 有
- 駐車場
- 有
- 会議室
- -
- エレベーター
- 2基
- 天井高
- 2530mm
-
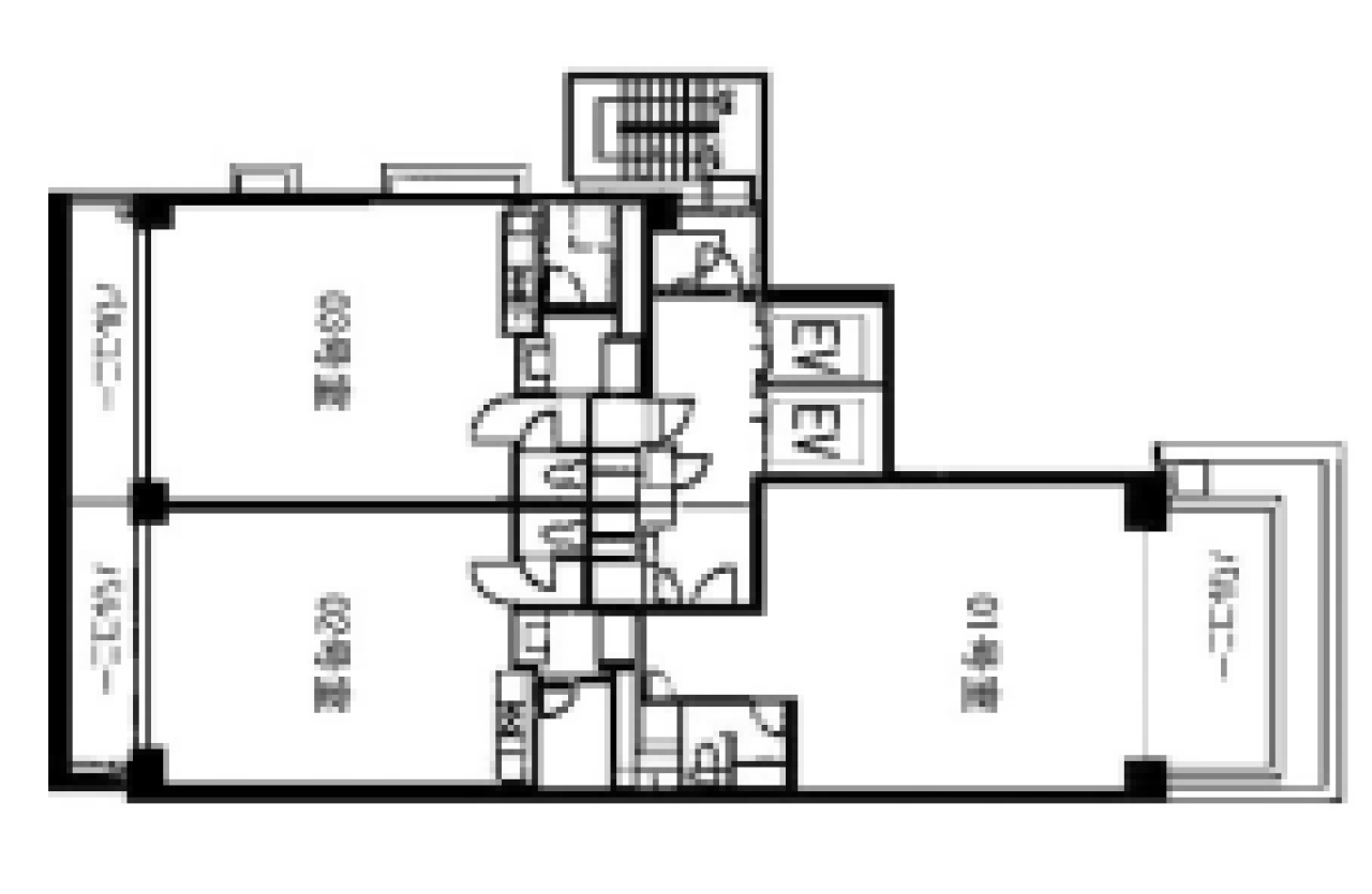
間取り図
-
近隣相場情報
湯島3丁目(30~40坪)の相場
17876 円 (坪)
※ビルサク調べ
周辺施設情報
| コンビニ |
まいばすけっと 末広町駅前店/600m(徒歩8分) ローソン 上野中央通/350m(徒歩4分) |
|---|---|
| 郵便局/銀行 |
三井住友銀行 ATM 上野広小路出張所/[営業時間] [ATM]平日 0:00~24:00 土曜 0:00~24:00 日曜 0:00~21:00/250m(徒歩4分) きらぼし銀行 御徒町支店/[営業時間] [窓口]平日 9:00~15:00 土曜日 - 日・祝日 - [ATM]平日 8:00~19:00 土曜日 9:00~17:00 日・祝日 - [備考]※三河島支店とブランチ・イン・ブランチ(店舗内店舗)方式で営業しております/350m(徒歩4分) |
| 飲食店 |
ゆしま食堂/300m(徒歩4分) 和食とワインの店 田んぼとぶどう 湯島/11時30分~14時00分 17時00分~22時00分/ |
| カフェ |
珈琲ヒロカワ/11時00分~17時30分/250m(徒歩3分) ボンドール/11時30分~20時30分/400m(徒歩5分) |
| コインパーキング |
タイムズ 湯島天神第1 [料金] [全日]通常料金 0:00~0:00 20分 220円 [最大料金] [全日]最大料金(繰り返し適用)8:00~20:00 最大料金2800円 20:00~8:00 最大料金400円 [台数]13台 コインパーク 湯島天神下 [料金] 【全日】■通常料金【0:00~24:00】20分300円 [最大料金] 【全日】【駐車後4時間以内(1回限り)】1800円 【全日】【24:00~8:00】300円 [台数] [車: 2台] |
周辺地図
中川ビルは、文京区湯島にある貸事務所物件です。最寄駅は、JR御徒町駅、千代田線湯島駅、銀座線末広町駅です。1986年竣工で基準階が90.13坪の賃貸オフィスビルです。床は1WAYで、天井の高さは2320mm。トイレは男女別で、空調は個別空調です。エレベーターは2基あり、セキュリティは機械警備となっています。駐車場が利用可能です。複数路線利用可能で交通アクセスの良い、文京区湯島の貸事務所です。
全フロア情報
更新日:2025年11月17日
| 階 | 面積 | 賃料 | 共益費 | 敷金 | 入居日 | お問合せ | お気に入り | |
|---|---|---|---|---|---|---|---|---|
|
2F
(201区画) |
18.4 坪 60.83 ㎡ |
※現在空室情報はございません |
※現在空室情報は 確認する |
|||||
|
2F
(202区画) |
64.05 坪 211.74 ㎡ |
※現在空室情報はございません |
※現在空室情報は 確認する |
|||||
|
3F
(301区画) |
18.4 坪 60.83 ㎡ |
※現在空室情報はございません |
※現在空室情報は 確認する |
|||||
|
3F
(302区画) |
64.05 坪 211.74 ㎡ |
※現在空室情報はございません |
※現在空室情報は 確認する |
|||||
|
4F
(401区画) |
17.97 坪 59.4 ㎡ |
※現在空室情報はございません |
※現在空室情報は 確認する |
|||||
|
4F
(402区画) |
32.06 坪 105.98 ㎡ |
※現在空室情報はございません |
※現在空室情報は 確認する |
|||||
|
4F
(403区画) |
29.23 坪 96.63 ㎡ |
※現在空室情報はございません |
※現在空室情報は 確認する |
|||||
|
6F
(601区画) |
16.57 坪 54.78 ㎡ |
※現在空室情報はございません |
※現在空室情報は 確認する |
|||||
|
8F
(801区画) |
17.38 坪 57.45 ㎡ |
※現在空室情報はございません |
※現在空室情報は 確認する |
|||||
|
8F
(802区画) |
34.55 坪 114.21 ㎡ |
※現在空室情報はございません |
※現在空室情報は 確認する |
|||||
|
9F
(901区画) |
19.53 坪 64.56 ㎡ |
292,950 円 15,000 円(坪) |
込 |
1,046,250 円 |
2026/02/01 |
|
|
|
|
9F
(902区画) |
15.47 坪 51.14 ㎡ |
※現在空室情報はございません |
※現在空室情報は 確認する |
|||||
お問い合わせ
似た条件の物件はこちら
-
山本ビル
東京都文京区本郷3-39-9
坪数:29.77 坪
坪単価:13,100 円(坪)
-
本郷ビル
東京都文京区本郷7-2-2
坪数:22.98 坪
坪単価:9,922 円(坪)
-
ムツミ工業本社ビル
東京都文京区本郷3-26-13
坪数:24.27 坪
坪単価:13,185 円(坪)
-
後楽1丁目ビル
東京都文京区後楽1-2-8
坪数:39.33 坪
坪単価:21,994 円(坪)
-
福泉ビル
東京都文京区春日2-24-11
坪数:31.18 坪
坪単価:9,301 円(坪)
-
新大塚プラザ
東京都文京区大塚5-9-2
坪数:33.88 坪
坪単価:12,727 円(坪)
-
白王ビル
東京都文京区後楽2-3-10
坪数:29 坪
坪単価:10,000 円(坪)
-
浅沼ビル
東京都文京区本郷3-4-17
坪数:35.96 坪
坪単価:10,011 円(坪)
-
第一天神ビル
東京都文京区湯島3-34-8
坪数:24.76 坪
坪単価:9,289 円(坪)
-
ITP本郷オフィス
東京都文京区湯島2-25-7
坪数:33.96 坪
坪単価:14,000 円(坪)