コスタレイ高田馬場(物件No:60931810)
コスタレイ高田馬場は、東京都新宿区高田馬場にある地上6階建てのSOHO物件です。最寄駅はJR線の高田馬場駅から徒歩5分、東京メトロ東西線の高田馬場駅から徒歩5分です。1973年7月竣工の鉄筋コンクリート造です。設備としては、エレベーターが1基あります。トイレは室内男女共用です。空調は家庭用空調です。耐震設計となっている、ビジネス街として人気のある東京都新宿区高田馬場のSOHO物件です。
| 階 | 面積 | 賃料 | 共益費 | 敷金 | 入居日 | お問合せ | お気に入り |
|---|---|---|---|---|---|---|---|
|
4F
(403区画) |
20.25 坪 66.94 ㎡ |
283,500 円 14,000 円(坪) |
込 |
850,500 円 3 ヶ月 |
相談 |
|
|
| 階 | 面積 | 賃料 | 共益費 | 敷金 | 入居日 | お問合せ | お気に入り |
|---|---|---|---|---|---|---|---|
|
4F
(403区画) |
20.25 坪 66.94 ㎡ |
283,500 円 14,000 円(坪) |
込 |
850,500 円 3 ヶ月 |
相談 |
|
|
-
物件情報
-
設備情報
- トイレ
- -
- 床
- -
- 空調
- -
- セキュリティ
- -
- 駐車場
- -
- 会議室
- -
- エレベーター
- 1基
- 天井高
- -
-
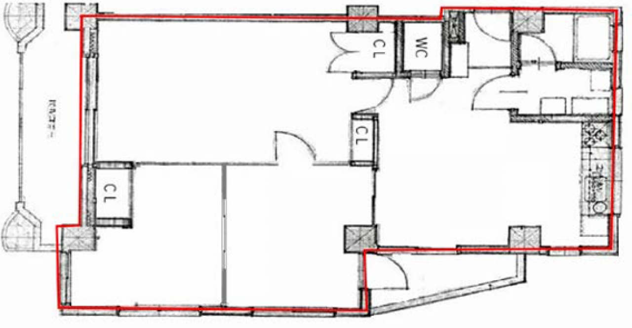
間取り図
-
近隣相場情報
高田馬場4丁目(20~30坪)の相場
19723 円 (坪)
※ビルサク調べ
周辺地図
コスタレイ高田馬場は、東京都新宿区高田馬場にある地上6階建てのSOHO物件です。最寄駅はJR線の高田馬場駅から徒歩5分、東京メトロ東西線の高田馬場駅から徒歩5分です。1973年7月竣工の鉄筋コンクリート造です。設備としては、エレベーターが1基あります。トイレは室内男女共用です。空調は家庭用空調です。耐震設計となっている、ビジネス街として人気のある東京都新宿区高田馬場のSOHO物件です。
全フロア情報
更新日:2025年11月4日
| 階 | 面積 | 賃料 | 共益費 | 敷金 | 入居日 | お問合せ | お気に入り | |
|---|---|---|---|---|---|---|---|---|
|
1F
(103区画) |
15.42 坪 50.98 ㎡ |
※現在空室情報はございません |
※現在空室情報は 確認する |
|||||
|
2F
(201区画) |
15.27 坪 50.48 ㎡ |
※現在空室情報はございません |
※現在空室情報は 確認する |
|||||
|
2F
(203区画) |
20.25 坪 66.94 ㎡ |
※現在空室情報はございません |
※現在空室情報は 確認する |
|||||
|
3F
(301区画) |
15.27 坪 50.48 ㎡ |
※現在空室情報はございません |
※現在空室情報は 確認する |
|||||
|
3F
(302区画) |
18.53 坪 61.24 ㎡ |
※現在空室情報はございません |
※現在空室情報は 確認する |
|||||
|
4F
(401区画) |
10.14 坪 33.52 ㎡ |
141,960 円 14,000 円(坪) |
込 |
425,880 円 3 ヶ月 |
即日 |
|
|
|
|
4F
(402区画) |
18.52 坪 61.22 ㎡ |
※現在空室情報はございません |
※現在空室情報は 確認する |
|||||
|
4F
(403区画) |
20.25 坪 66.94 ㎡ |
283,500 円 14,000 円(坪) |
込 |
850,500 円 3 ヶ月 |
相談 |
|
|
|
|
5F
(500区画) |
6.32 坪 20.89 ㎡ |
※現在空室情報はございません |
※現在空室情報は 確認する |
|||||
|
5F
(501区画) |
29.42 坪 97.26 ㎡ |
※現在空室情報はございません |
※現在空室情報は 確認する |
|||||
お問い合わせ
似た条件の物件はこちら
-
山武落合ビル
東京都新宿区上落合2-29-1
坪数:22 坪
坪単価:10,992 円(坪)
-
廣池ビルディング
東京都新宿区高田馬場1-21-13
坪数:24.1 坪
坪単価:22,000 円(坪)
-
牧ビル
東京都新宿区早稲田鶴巻町109
坪数:20.81 坪
坪単価:7,442 円(坪)
-
TFT高田馬場駅前ビル
東京都新宿区高田馬場1-33-15
坪数:17.94 坪
坪単価:25,084 円(坪)
-
スカイパレスビル
東京都新宿区高田馬場1-29-7
坪数:15.69 坪
坪単価:12,747 円(坪)
-
揺籃ビル
東京都新宿区高田馬場4-23-34
坪数:15.68 坪
坪単価:15,306 円(坪)
-
佐々木ビル
東京都新宿区高田馬場1-25-7
坪数:19.6 坪
坪単価:8,117 円(坪)
-
U square 高田馬場
東京都新宿区高田馬場1-29-1
坪数:24.88 坪
坪単価:24,000 円(坪)
-
プラザ新大樹
東京都新宿区大久保2-1-8
坪数:16.5 坪
坪単価:20,000 円(坪)
-
ヴァリエ戸山
東京都新宿区大久保2-3-9
坪数:22.62 坪
坪単価:9,996 円(坪)