カルドアンビエンテ(物件No:60422785)
カルドアンビエンテは、豊島区池袋本町にある地下1階、地上9階建ての貸店舗物件/賃貸事務所です。最寄駅はJR線の池袋駅から徒歩12分、東武東上線の北池袋駅から徒歩10分です。1988年1月竣工の鉄骨鉄筋コンクリート造です。設備としては、トイレは室内男女別です。耐震設計となっている、ビジネス街として人気のある豊島区池袋本町の貸店舗物件/賃貸オフィスです。
| 階 | 面積 | 賃料 | 共益費 | 敷金 | 入居日 | お問合せ | お気に入り | |
|---|---|---|---|---|---|---|---|---|
|
3F
(301区画) |
29.65 坪 98 ㎡ |
※現在空室情報はございません |
※現在空室情報は 確認する |
|||||
| 階 | 面積 | 賃料 | 共益費 | 敷金 | 入居日 | お問合せ | お気に入り | |
|---|---|---|---|---|---|---|---|---|
|
3F
(301区画) |
29.65 坪 98 ㎡ |
※現在空室情報はございません |
※現在空室情報は 確認する |
|||||
-
物件情報
-
設備情報
- トイレ
- 室内男女別
- 床
- -
- 空調
- -
- セキュリティ
- -
- 駐車場
- -
- 会議室
- -
- エレベーター
- 1基
- 天井高
- -
-
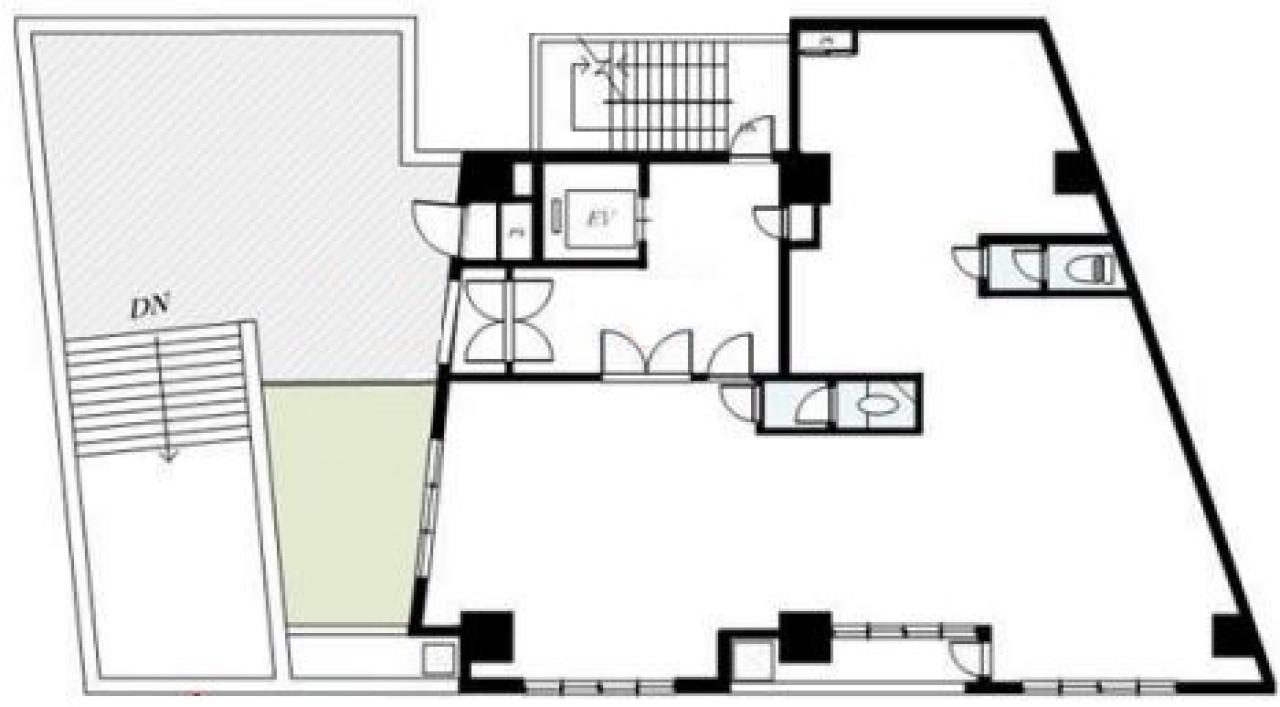
間取り図
-
近隣相場情報
池袋本町2丁目(20~30坪)の相場
調査中
周辺地図
カルドアンビエンテは、豊島区池袋本町にある地下1階、地上9階建ての貸店舗物件/賃貸事務所です。最寄駅はJR線の池袋駅から徒歩12分、東武東上線の北池袋駅から徒歩10分です。1988年1月竣工の鉄骨鉄筋コンクリート造です。設備としては、トイレは室内男女別です。耐震設計となっている、ビジネス街として人気のある豊島区池袋本町の貸店舗物件/賃貸オフィスです。
全フロア情報
更新日:2025年10月3日
| 階 | 面積 | 賃料 | 共益費 | 敷金 | 入居日 | お問合せ | お気に入り | |
|---|---|---|---|---|---|---|---|---|
|
1F
(101区画) |
40.31 坪 133.25 ㎡ |
725,455 円 17,997 円(坪) |
相談 |
4,352,730 円 6 ヶ月 |
即日 |
|
|
|
|
2F
(201区画) |
32.8 坪 108.43 ㎡ |
※現在空室情報はございません |
※現在空室情報は 確認する |
|||||
|
3F
(301区画) |
29.65 坪 98 ㎡ |
※現在空室情報はございません |
※現在空室情報は 確認する |
|||||
お問い合わせ
似た条件の物件はこちら
-
サンポウ池袋ビル
東京都豊島区池袋4-32-8
坪数:38.36 坪
坪単価:9,500 円(坪)
-
いちご東池袋ビル
東京都豊島区東池袋1-34-5
坪数:27.97 坪
坪単価:19,000 円(坪)
-
三仲ビル
東京都豊島区西池袋1-15-8
坪数:30 坪
坪単価:25,000 円(坪)
-
コスモス26上池袋
東京都豊島区上池袋1-25-2
坪数:27.47 坪
坪単価:18,493 円(坪)
-
日興池袋ビル(旧 トウセン池袋ビル)
東京都豊島区池袋4-29-11
坪数:37.5 坪
坪単価:10,600 円(坪)
-
明昌KSビル
東京都豊島区東池袋3-9-9
坪数:21.8 坪
坪単価:13,000 円(坪)
-
フェイマスショップビル
東京都豊島区長崎4-9-5
坪数:23.69 坪
坪単価:6,332 円(坪)
-
東都自動車ビルディング
東京都豊島区西池袋5-13-13
坪数:37.51 坪
坪単価:11,978 円(坪)
-
新東第一ビル
東京都豊島区西池袋1-16-1
坪数:36.48 坪
坪単価:22,994 円(坪)
-
第5アムスビル
東京都豊島区東池袋1-15-10
坪数:37.17 坪
坪単価:33,629 円(坪)