飯田ビル(物件No:53240087)
飯田ビルは、千代田区六番町にある地下1階、地上4階建ての賃貸事務所です。最寄駅はJR中央・総武線の四ツ谷駅から徒歩4分、東京メトロ有楽町線の麹町駅から徒歩5分、東京メトロ丸ノ内線の四ツ谷駅から徒歩6分、東京メトロ南北線の四ツ谷駅から徒歩6分です。1990年1月竣工の鉄筋コンクリート造です。設備としては、エレベーターが2基あります。トイレは室外男女別です。空調は個別空調です。複数路線利用可能なアクセスの良い千代田区六番町の賃貸オフィスです。
| 階 | 面積 | 賃料 | 共益費 | 敷金 | 入居日 | お問合せ | お気に入り |
|---|---|---|---|---|---|---|---|
|
3F
(A区画) |
13 坪 42.98 ㎡ |
260,000 円 20,000 円(坪) |
26,000 円 2,000 円(坪) |
1,560,000 円 6 ヶ月 |
即日 |
|
|
| 階 | 面積 | 賃料 | 共益費 | 敷金 | 入居日 | お問合せ | お気に入り |
|---|---|---|---|---|---|---|---|
|
3F
(A区画) |
13 坪 42.98 ㎡ |
260,000 円 20,000 円(坪) |
26,000 円 2,000 円(坪) |
1,560,000 円 6 ヶ月 |
即日 |
|
|
-
物件情報
-
設備情報
- トイレ
- 室外男女別
- 床
- タイルカーペット
- 空調
- 個別空調
- セキュリティ
- -
- 駐車場
- -
- 会議室
- 有
- エレベーター
- 2基
- 天井高
- 2380mm
-
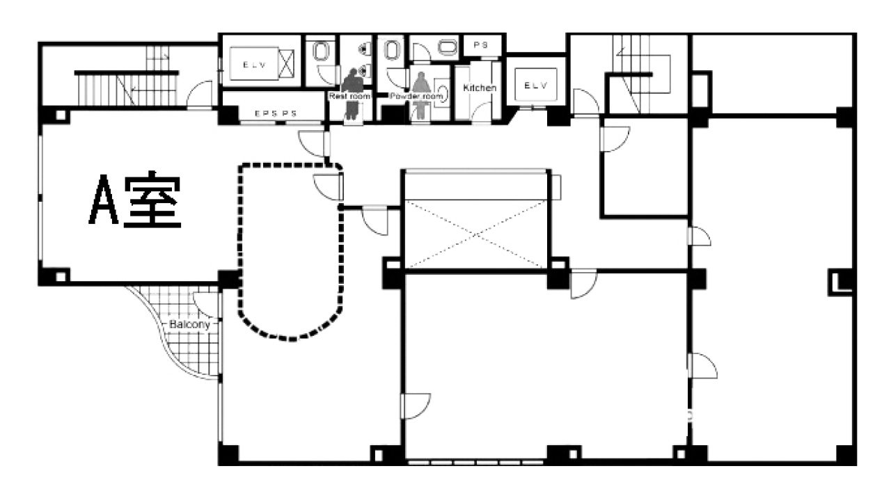
間取り図
-
近隣相場情報
六番町5丁目(20坪以下)の相場
17445 円 (坪)
※ビルサク調べ
周辺施設情報
| コンビニ |
ローソン/麹町五丁目/500m(徒歩7分) NewDays/市ヶ谷/500m(徒歩6分) |
|---|---|
| 郵便局/銀行 |
西武信用金庫/日テレ通り支店/350m(徒歩4分) セブン銀行/麹町5丁目店/[営業時間]24時間営業 [備考]1 台/450m(徒歩6分) |
| 飲食店 |
炭火焼肉 なかはら/17時00分~20時00分/300m(徒歩4分) やましょう GEMS 市ヶ谷店/300m(徒歩4分) |
| カフェ |
S-Cafe/500m(徒歩7分) ゼンカフェ・マリーナ/11時30分~14時30分、17時30分~19時00分/350m(徒歩4分) |
| コインパーキング |
三井のリパーク/二番町第5 [料金] 全日 08:00~22:00 15分/330円 全日 22:00~08:00 60分/110円 [最大料金] 【全日】最大料金入庫後4時間以内3080円 [台数]4 三井のリパーク/六番町第6 [料金] 平日 08:00~22:00 15分/200円 平日 22:00~08:00 120分/100円 日祝 08:00~22:00 15分/200円 日祝 22:00~08:00 120分/100円 [最大料金] 【月~土】8:00~22:00以内 最大料金2800円 【日祝】8:00~22:00以内 最大料金1200円 [台数]6 |
周辺地図
飯田ビルは、千代田区六番町にある地下1階、地上4階建ての賃貸事務所です。最寄駅はJR中央・総武線の四ツ谷駅から徒歩4分、東京メトロ有楽町線の麹町駅から徒歩5分、東京メトロ丸ノ内線の四ツ谷駅から徒歩6分、東京メトロ南北線の四ツ谷駅から徒歩6分です。1990年1月竣工の鉄筋コンクリート造です。設備としては、エレベーターが2基あります。トイレは室外男女別です。空調は個別空調です。複数路線利用可能なアクセスの良い千代田区六番町の賃貸オフィスです。
全フロア情報
更新日:2025年11月17日
| 階 | 面積 | 賃料 | 共益費 | 敷金 | 入居日 | お問合せ | お気に入り | |
|---|---|---|---|---|---|---|---|---|
| 1F |
16 坪 52.89 ㎡ |
320,000 円 20,000 円(坪) |
32,000 円 2,000 円(坪) |
1,920,000 円 6 ヶ月 |
即日 |
|
|
|
|
2F
(AB区画) |
48 坪 158.68 ㎡ |
960,000 円 20,000 円(坪) |
96,000 円 2,000 円(坪) |
5,760,000 円 6 ヶ月 |
即日 |
|
|
|
|
2F
(C区画) |
25 坪 82.64 ㎡ |
※現在空室情報はございません |
※現在空室情報は 確認する |
|||||
|
3F
(A区画) |
13 坪 42.98 ㎡ |
260,000 円 20,000 円(坪) |
26,000 円 2,000 円(坪) |
1,560,000 円 6 ヶ月 |
即日 |
|
|
|
|
3F
(BCD区画) |
55.5 坪 183.47 ㎡ |
※現在空室情報はございません |
※現在空室情報は 確認する |
|||||
|
3F
(C区画) |
23 坪 76.03 ㎡ |
460,000 円 20,000 円(坪) |
46,000 円 2,000 円(坪) |
2,760,000 円 6 ヶ月 |
即日 |
|
|
|
|
3F
(D区画) |
13 坪 42.97 ㎡ |
260,000 円 20,000 円(坪) |
26,000 円 2,000 円(坪) |
1,560,000 円 6 ヶ月 |
即日 |
|
|
|
お問い合わせ
似た条件の物件はこちら
-
ビュロー平河町
東京都千代田区平河町1-7-16
坪数:15.16 坪
坪単価:19,789 円(坪)
-
市ヶ谷法曹ビル
東京都千代田区九段北4-1-5
坪数:8.58 坪
坪単価:19,231 円(坪)
-
喜助九段北ビル
東京都千代田区九段北1-4-7
坪数:14.13 坪
坪単価:12,000 円(坪)
-
プリンス通ビル
東京都千代田区紀尾井町3-33
坪数:17.48 坪
坪単価:15,446 円(坪)
-
ビラカーサ五番町
東京都千代田区五番町5-6
坪数:8.97 坪
坪単価:15,050 円(坪)
-
三番町TYプラザ
東京都千代田区三番町24-25
坪数:8.6 坪
坪単価:19,767 円(坪)
-
浅松ビル
東京都千代田区六番町13-4
坪数:10.63 坪
坪単価:17,000 円(坪)
-
サンライン第14ビル
東京都千代田区九段北4-3-16
坪数:16.34 坪
坪単価:16,524 円(坪)
-
桜ビル
東京都千代田区九段北4-2-2
坪数:16.33 坪
坪単価:12,463 円(坪)
-
麹町三丁目ハウス
東京都千代田区麹町3-12-1
坪数:8.99 坪
坪単価:12,792 円(坪)