芝公園リッジビル(物件No:51989164)
芝公園リッジビルは港区芝公園にある地下1階、地上9階建ての賃貸事務所です。最寄駅はJR線の新橋駅から徒歩8分、都営三田線の御成門駅から徒歩4分、都営浅草線の大門駅から徒歩5分です。1994年9月竣工の基準階面積が64.63坪の鉄骨造です。設備としては、エレベーターが2基、駐車場もあります。セキュリティは機械警備です。トイレは男女別です。空調は個別空調です。床仕様はフリーアクセスです。天高は2600mmです。耐震設計となっている、複数路線利用可能なアクセスの良い港区芝公園の賃貸オフィスです。
-
物件情報
-
設備情報
- トイレ
- 室外男女別
- 床
- フリーアクセス
- 空調
- 個別空調
- セキュリティ
- 有
- 駐車場
- 有
- 会議室
- -
- エレベーター
- 2基
- 天井高
- 2600mm
-
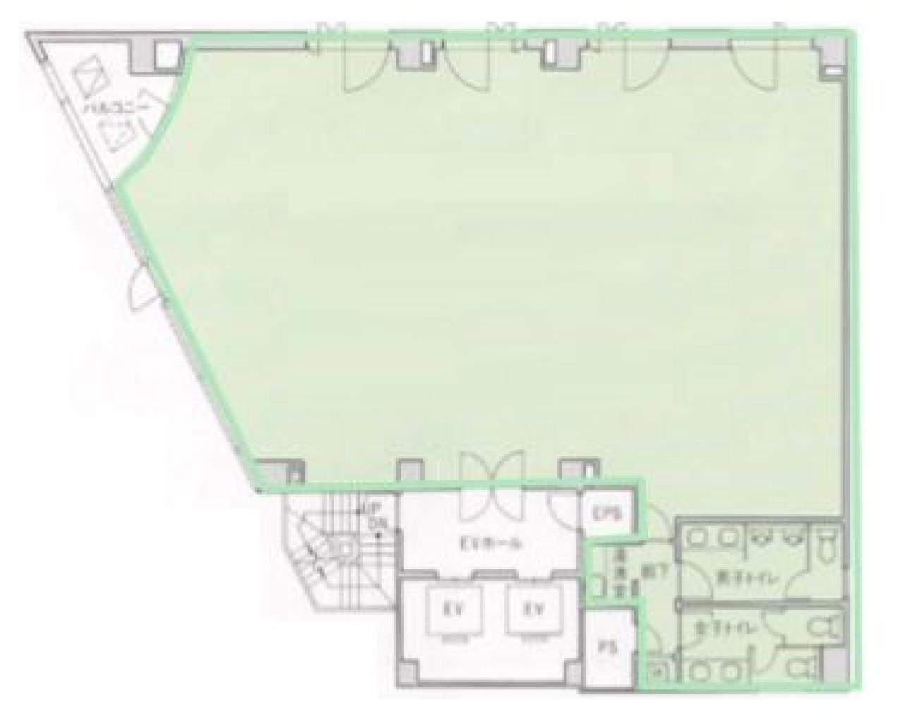
間取り図
-
近隣相場情報
芝公園1丁目(50~100坪)の相場
24333 円 (坪)
※ビルサク調べ
周辺施設情報
コンビニ |
ローソン/S港区役所庁舎/64m(徒歩1分) デイリーヤマザキ/浜松町クレアタワー店/600m(徒歩8分) |
---|---|
郵便局/銀行 |
ローソン銀行/東京プリンスホテル共同出張所/[営業時間]7:00~23:00 [取扱]海外発行カード対応、視覚障害者対応 [備考]ご利用可能な金融機関 当店のATM管理はローソン銀行です/450m(徒歩6分) みずほ銀行/ATM 御成門駅前出張所/[営業時間] [ATM]平日 7:00~22:00 土曜日 8:00~21:00 日曜日 8:00~21:00 祝日・振替休日 8:00~21:00 備考 *通帳はご利用いただけません。通帳繰越機 設置なし/500m(徒歩6分) |
飲食店 |
モスバーガー 芝大門店/6時30分~21時00分/400m(徒歩5分) クレッセント/15時00分~22時30分/14m(徒歩1分) |
カフェ |
フェイバリットタイムコーヒー 芝大門スタンド/6時00分~21時30分/400m(徒歩5分) グリーンクローバー/9時30分~17時00分/290m(徒歩4分) |
コインパーキング |
三井のリパーク/芝大門2丁目第4 [料金] 全日 08:00~20:00 20分/300円 全日 20:00~08:00 60分/100円 [最大料金] 【全日】最大料金入庫後6時間以内3200円 [台数]2 タイムズ駐車場/東京プリンスホテル第1 [料金] 通常料金 / 08:00-20:00 30分 400円 通常料金 / 20:00-08:00 60分 100円 [最大料金] [全日]当日1日最大料金3000円(24時迄) [台数]165 |
周辺地図
芝公園リッジビルは港区芝公園にある地下1階、地上9階建ての賃貸事務所です。最寄駅はJR線の新橋駅から徒歩8分、都営三田線の御成門駅から徒歩4分、都営浅草線の大門駅から徒歩5分です。1994年9月竣工の基準階面積が64.63坪の鉄骨造です。設備としては、エレベーターが2基、駐車場もあります。セキュリティは機械警備です。トイレは男女別です。空調は個別空調です。床仕様はフリーアクセスです。天高は2600mmです。耐震設計となっている、複数路線利用可能なアクセスの良い港区芝公園の賃貸オフィスです。
全フロア情報
更新日:2025年10月7日
階 | 面積 | 賃料 | 共益費 | 敷金 | 入居日 | お問合せ | お気に入り | |
---|---|---|---|---|---|---|---|---|
1F |
23.82 坪 78.74 ㎡ |
571,680 円 24,000 円(坪) |
込 |
6,860,160 円 12 ヶ月 |
2026/03 |
|
|
|
2F |
84.3 坪 278.68 ㎡ |
※現在空室情報はございません |
※現在空室情報は 確認する |
|||||
3F |
64.63 坪 213.65 ㎡ |
※現在空室情報はございません |
※現在空室情報は 確認する |
|||||
4F |
60.82 坪 201.06 ㎡ |
※現在空室情報はございません |
※現在空室情報は 確認する |
|||||
5F |
60.82 坪 201.06 ㎡ |
※現在空室情報はございません |
※現在空室情報は 確認する |
|||||
6F |
60.82 坪 201.06 ㎡ |
※現在空室情報はございません |
※現在空室情報は 確認する |
|||||
8F |
64.63 坪 213.65 ㎡ |
※現在空室情報はございません |
※現在空室情報は 確認する |
お問い合わせ
似た条件の物件はこちら
-
池藤ビル
東京都港区芝4-5-8
坪数:54.31 坪
坪単価:14,000 円(坪)
-
岡家寿ビル
東京都港区芝浦1-7-14
坪数:62.95 坪
坪単価:13,000 円(坪)
-
専売ビル
東京都港区芝5-26-30
坪数:69.1 坪
坪単価:21,526 円(坪)
-
芝公園プラザビル
東京都港区芝3-6-9
坪数:50.88 坪
坪単価:18,000 円(坪)
-
森伝ビル
東京都港区三田3-9-9
坪数:73.23 坪
坪単価:14,000 円(坪)
-
大門アーバニストビル
東京都港区芝大門2-3-6
坪数:47.81 坪
坪単価:14,071 円(坪)
-
オー・アイ・芝浦
東京都港区芝浦3-19-19
坪数:53.42 坪
坪単価:16,000 円(坪)
-
ARZ芝公園
東京都港区芝2-23-1
坪数:45.88 坪
坪単価:27,000 円(坪)
-
サンワード浜松町
東京都港区浜松町2-13-14
坪数:47.84 坪
坪単価:12,000 円(坪)
-
Expert Tamachi
東京都港区芝浦3-6-14
坪数:48.14 坪
坪単価:36,000 円(坪)