マルケービル(物件No:51984290)
マルケービルは、台東区浅草橋にある貸事務所物件です。最寄り駅は、JR中央・総武線、都営浅草線の浅草橋駅、JR総武線快速の馬喰町駅、都営浅草線の東日本橋駅、都営新宿線の馬喰横山駅です。1989年竣工で、基準階が24.6坪の賃貸オフィスビルです。空調は個別空調で、トイレは室内にあり、男女別です。機械警備で、エレベーターは1基あります。複数路線利用可能な、アクセスの良い台東区浅草橋の貸事務所です。
-
物件情報
-
設備情報
- トイレ
- -
- 床
- -
- 空調
- 個別空調
- セキュリティ
- 有
- 駐車場
- -
- 会議室
- -
- エレベーター
- 1基
- 天井高
- -
-
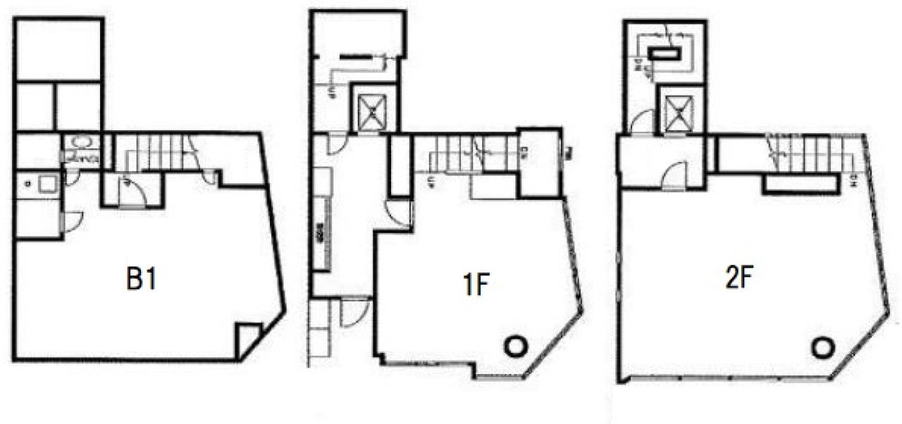
間取り図
-
近隣相場情報
浅草橋2丁目(50~100坪)の相場
16754 円 (坪)
※ビルサク調べ
周辺地図
マルケービルは、台東区浅草橋にある貸事務所物件です。最寄り駅は、JR中央・総武線、都営浅草線の浅草橋駅、JR総武線快速の馬喰町駅、都営浅草線の東日本橋駅、都営新宿線の馬喰横山駅です。1989年竣工で、基準階が24.6坪の賃貸オフィスビルです。空調は個別空調で、トイレは室内にあり、男女別です。機械警備で、エレベーターは1基あります。複数路線利用可能な、アクセスの良い台東区浅草橋の貸事務所です。
全フロア情報
更新日:2025年11月4日
| 階 | 面積 | 賃料 | 共益費 | 敷金 | 入居日 | お問合せ | お気に入り | |
|---|---|---|---|---|---|---|---|---|
| B1-2F |
71.25 坪 235.54 ㎡ |
※現在空室情報はございません |
※現在空室情報は 確認する |
|||||
| 4F |
24.6 坪 81.32 ㎡ |
※現在空室情報はございません |
※現在空室情報は 確認する |
|||||
| 5F |
24.6 坪 81.32 ㎡ |
※現在空室情報はございません |
※現在空室情報は 確認する |
|||||
| 6F |
24.6 坪 81.32 ㎡ |
※現在空室情報はございません |
※現在空室情報は 確認する |
|||||
| 7F |
24.6 坪 81.32 ㎡ |
196,800 円 8,000 円(坪) |
73,800 円 3,000 円(坪) |
1,574,400 円 8 ヶ月 |
即日 |
|
|
|
| 8F |
24.6 坪 81.32 ㎡ |
※現在空室情報はございません |
※現在空室情報は 確認する |
|||||
| 9F |
24.6 坪 81.32 ㎡ |
※現在空室情報はございません |
※現在空室情報は 確認する |
|||||
| 10F |
24.6 坪 81.32 ㎡ |
※現在空室情報はございません |
※現在空室情報は 確認する |
|||||
お問い合わせ
似た条件の物件はこちら
-
浅草橋ミハマビル
東京都台東区浅草橋3-20-15
坪数:59.01 坪
坪単価:12,000 円(坪)
-
浅草TFビル
東京都台東区西浅草2-27-7
坪数:79.72 坪
坪単価:12,000 円(坪)
-
蔵前酒井ビル
東京都台東区蔵前3-15-7
坪数:68.79 坪
坪単価:16,000 円(坪)
-
山吉ビル
東京都台東区浅草6-22-4
坪数:84.71 坪
坪単価:5,430 円(坪)