マキリバーサイドビル(物件No:51983179)
マキリバーサイドビルは、台東区柳橋にある貸事務所物件です。最寄り駅は、都営浅草線、JR中央・総武線の浅草橋駅、JR中央・総武線の両国駅、JR総武線快速の馬喰町駅、都営新宿線の馬喰横山駅、都営浅草線の東日本橋駅です。1991年竣工で、基準階が115.83坪の賃貸オフィスビルです。天高は2700mm、床はOAとなっております。個別空調で、トイレは室外にあり、男女別です。機械警備で、駐車場があり、エレベーターは2基あります。複数路線利用可能な、アクセスの良い台東区柳橋の貸事務所です。
-
物件情報
-
設備情報
- トイレ
- 室外男女別
- 床
- フリーアクセス
- 空調
- 個別空調
- セキュリティ
- 有
- 駐車場
- 有
- 会議室
- -
- エレベーター
- 2基
- 天井高
- 2700mm
-
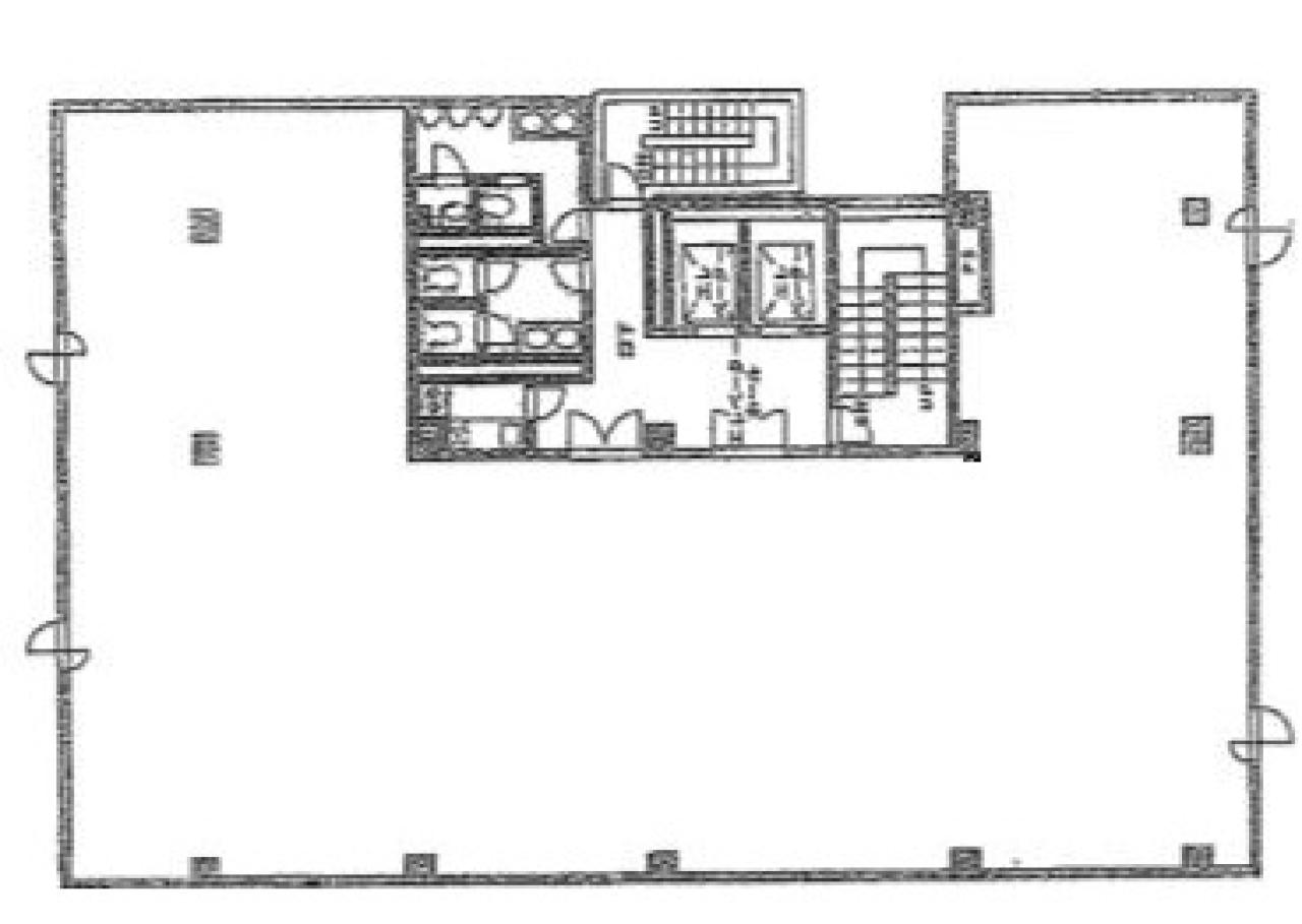
間取り図
-
近隣相場情報
柳橋1丁目(100坪以上)の相場
15000 円 (坪)
※ビルサク調べ
周辺地図
マキリバーサイドビルは、台東区柳橋にある貸事務所物件です。最寄り駅は、都営浅草線、JR中央・総武線の浅草橋駅、JR中央・総武線の両国駅、JR総武線快速の馬喰町駅、都営新宿線の馬喰横山駅、都営浅草線の東日本橋駅です。1991年竣工で、基準階が115.83坪の賃貸オフィスビルです。天高は2700mm、床はOAとなっております。個別空調で、トイレは室外にあり、男女別です。機械警備で、駐車場があり、エレベーターは2基あります。複数路線利用可能な、アクセスの良い台東区柳橋の貸事務所です。
全フロア情報
更新日:2025年10月29日
| 階 | 面積 | 賃料 | 共益費 | 敷金 | 入居日 | お問合せ | お気に入り | |
|---|---|---|---|---|---|---|---|---|
| 2F |
115.83 坪 382.91 ㎡ |
※現在空室情報はございません |
※現在空室情報は 確認する |
|||||
| 3F |
115.83 坪 382.91 ㎡ |
※現在空室情報はございません |
※現在空室情報は 確認する |
|||||
| 4F |
115.83 坪 382.91 ㎡ |
※現在空室情報はございません |
※現在空室情報は 確認する |
|||||
| 5F |
115.83 坪 382.91 ㎡ |
※現在空室情報はございません |
※現在空室情報は 確認する |
|||||
| 6F |
106.39 坪 351.7 ㎡ |
※現在空室情報はございません |
※現在空室情報は 確認する |
|||||
お問い合わせ
似た条件の物件はこちら
-
上野NSビル
東京都台東区元浅草3-18-10
坪数:94.69 坪
坪単価:13,500 円(坪)
-
リッチライフ浅一ビルⅡ
東京都台東区浅草1-12-2
坪数:97 坪
坪単価:12,371 円(坪)
-
第2東商センター2号館
東京都台東区柳橋2-19-10
坪数:98.96 坪
坪単価:8,084 円(坪)
-
gran+ASAKUSABASHI-Ⅱ
東京都台東区浅草橋1-23-5
坪数:90.83 坪
坪単価:22,019 円(坪)