浜町落合ビル(物件No:51885122)
浜町落合ビルは、中央区日本橋浜町にある貸事務所物件です。最寄り駅は、東京メトロ半蔵門線の水天宮前駅、都営新宿線の浜町駅、森下駅、東京メトロ日比谷線の人形町駅、都営浅草線の人形町駅、都営大江戸線の森下駅です。1988年竣工で、基準階が66.18坪の賃貸オフィスビルです。床はOAフロアとなっております。空調は個別空調で、トイレは室内にあり、男女共用です。機械警備で、エレベーターは1基あります。複数路線利用可能な、アクセスの良い中央区日本橋浜町の貸事務所です。
-
物件情報
-
設備情報
- トイレ
- 室内男女共用
- 床
- フリーアクセス
- 空調
- 個別空調
- セキュリティ
- 有
- 駐車場
- 無
- 会議室
- -
- エレベーター
- 1基
- 天井高
- -
-
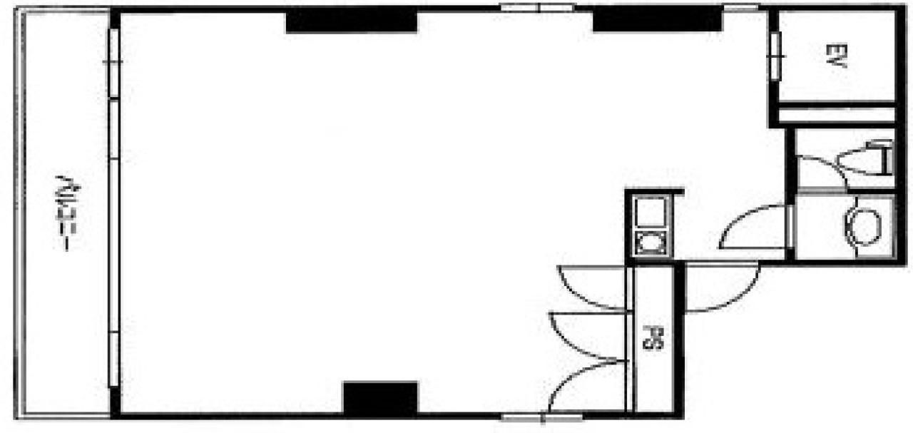
間取り図
-
近隣相場情報
日本橋浜町3丁目(20~30坪)の相場
16457 円 (坪)
※ビルサク調べ
周辺施設情報
| コンビニ |
セブンイレブン/日本橋浜町/240m(徒歩3分) ファミリーマート/日本橋浜町Fタワー店/300m(徒歩4分) |
|---|---|
| 郵便局/銀行 |
セブン銀行/日本橋浜町店/[営業時間]24時間営業/240m(徒歩3分) みずほ銀行/ATM トルナーレ日本橋浜町店出張所/[ATM]平日 10:00~23:00 土曜日 10:00~22:00 日曜日 10:00~23:00 祝日・振替休日/250m(徒歩3分) |
| 飲食店 |
Cheese on the table本店/11時00分~19時00分/76m(徒歩1分) 浜町かねこ/11時30分~14時00分 17時30分~21時00分/28m(徒歩1分) |
| カフェ |
ドトール/人形町箱崎店/[営業時間]平日:7:00~21:00 土曜日:8:00~18:00 日 祝:-/500m(徒歩6分) カフェドクリエ/T-CAT/[営業時間][平 日] 7:00-20:00 [土日祝] (土)7:00-19:00 (日/祝)7:00-19:00/270m(徒歩3分) |
| コインパーキング |
三井のリパーク/日本橋浜町3丁目第3 [料金] [料金]平日 08:00~22:00 15分/300円 平日 22:00~08:00 60分/100円 [料金]日祝 08:00~22:00 15分/300円 日祝 22:00~08:00 60分/100円 [最大料金] 最大料金 【月~土】8:00~22:00以内 最大料金2900円 【月~土】22:00~8:00以内 最大料金500円 最大料金 【日祝】8:00~22:00以内 最大料金1200円 【日祝】22:00~8:00以内 最大料金500円 [台数]3 名鉄協商パーキング/中央第2日本橋浜町 [料金] [料金]全日 8:00~18:00 20分 300円 18:00~8:00 60分 100円 18:00~8:00 [最大料金] 最大料金 400円 月~金・土 8:00~18:00 最大料金 2,600円 日祝 8:00~18:00 最大料金 1,100円 [台数]3台 |
周辺地図
浜町落合ビルは、中央区日本橋浜町にある貸事務所物件です。最寄り駅は、東京メトロ半蔵門線の水天宮前駅、都営新宿線の浜町駅、森下駅、東京メトロ日比谷線の人形町駅、都営浅草線の人形町駅、都営大江戸線の森下駅です。1988年竣工で、基準階が66.18坪の賃貸オフィスビルです。床はOAフロアとなっております。空調は個別空調で、トイレは室内にあり、男女共用です。機械警備で、エレベーターは1基あります。複数路線利用可能な、アクセスの良い中央区日本橋浜町の貸事務所です。
全フロア情報
更新日:2025年12月4日
| 階 | 面積 | 賃料 | 共益費 | 敷金 | 入居日 | お問合せ | お気に入り | |
|---|---|---|---|---|---|---|---|---|
| 2F |
29.05 坪 96.03 ㎡ |
377,650 円 13,000 円(坪) |
58,100 円 2,000 円(坪) |
2,265,900 円 6 ヶ月 |
即日 |
|
|
|
| 4F |
27.74 坪 91.7 ㎡ |
※現在空室情報はございません |
※現在空室情報は 確認する |
|||||
お問い合わせ
似た条件の物件はこちら
-
伊勢兼ビル
東京都中央区日本橋人形町1-7-9
坪数:27.05 坪
坪単価:17,000 円(坪)
-
三上ビル
東京都中央区日本橋横山町1-1
坪数:21.35 坪
坪単価:25,000 円(坪)
-
林ビル
東京都中央区日本橋馬喰町1-5-10
坪数:29.43 坪
坪単価:10,000 円(坪)
-
金物会館ビル
東京都中央区日本橋浜町2-37-8
坪数:34.76 坪
坪単価:4,315 円(坪)
-
オーキッドプレイス蛎殻町ビル
東京都中央区日本橋蛎殻町1-4-1
坪数:24.87 坪
坪単価:15,000 円(坪)
-
FSビル
東京都中央区日本橋人形町2-21-1
坪数:22.05 坪
坪単価:11,000 円(坪)
-
aLATO日本橋小伝馬町
東京都中央区日本橋小伝馬町16-9
坪数:18.32 坪
坪単価:16,376 円(坪)
-
エムジー小伝馬町ビル
東京都中央区日本橋小伝馬町7-10
坪数:24.71 坪
坪単価:10,500 円(坪)
-
JP浜町ビル
東京都中央区日本橋浜町2-23-5
坪数:19.1 坪
坪単価:13,000 円(坪)
-
鈴善ビル
東京都中央区日本橋小舟町1-12
坪数:22.15 坪
坪単価:11,000 円(坪)
関連エリアから探す
- 日本橋大伝馬町
- 日本橋蛎殻町
- 日本橋小網町
- 日本橋小伝馬町
- 日本橋小舟町
- 日本橋富沢町
- 日本橋人形町
- 日本橋箱崎町
- 日本橋堀留町
- 日本橋中洲
- 日本橋馬喰町
- 日本橋浜町
- 日本橋久松町
- 日本橋横山町
- 東日本橋