井門美竹ビル(物件No:51685057)
井門美竹ビルは渋谷区渋谷にある地下1階、地上6階建ての賃貸事務所です。最寄駅は東京メトロ副都心線の渋谷駅から徒歩5分、東京メトロ半蔵門線の渋谷駅から徒歩8分、東京メトロ銀座線の渋谷駅から徒歩9分、東急東横線の渋谷駅から徒歩9分、東急田園都市線の渋谷駅から徒歩9分、JR線の渋谷駅から徒歩10分です。1975年3月竣工の基準階面積が232.97坪の鉄筋コンクリート造です。設備としては、エレベーターが1基あり、駐車場もあります。トイレは室外男女別です。空調は個別空調です。複数駅利用可能なアクセスの良い渋谷区渋谷の賃貸オフィスです。
-
物件情報
-
設備情報
- トイレ
- 室外男女別
- 床
- -
- 空調
- 個別空調
- セキュリティ
- 有
- 駐車場
- 有
- 会議室
- -
- エレベーター
- 1基
- 天井高
- -
-
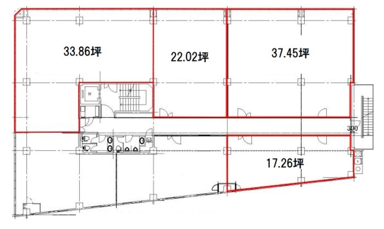
間取り図
-
近隣相場情報
渋谷1丁目(30~40坪)の相場
26812 円 (坪)
※ビルサク調べ
周辺施設情報
| コンビニ |
ファミリーマート/渋谷一丁目店/350m(徒歩4分) セブンイレブン/渋谷1丁目/400m(徒歩5分) |
|---|---|
| 郵便局/銀行 |
西武信用金庫/渋谷営業部/400m(徒歩6分) ゆうちょ/ATM 本店 あおぞら銀行渋谷支店内出張所/[営業時間] [ATM]平日 9:00~15:00 土曜日 - 日曜日・休日 - [駐車場]なし [取扱]ATM/カードATM [備考]海外発行カードによる現金引き出しサービスにおいて、16言語でご利用いただけます/450m(徒歩6分) |
| 飲食店 |
asobu_/10時00分~18時00分/160m(徒歩2分) 82渋谷宮益坂店/400m(徒歩5分) |
| カフェ |
珈琲茶館 集/渋谷宮益坂店/[営業時間]月~土 9:00~23:00(LO 22:30)日祝 10:00~23:00(LO 22:30) [休業日]年中無休/550m(徒歩7分) コメダ珈琲/渋谷宮益坂上店/[営業時間]7:00~20:30 ※新型コロナ感染対策のため、7:00~20:00 [休業日]なし [駐車場]無し [備考]71席/400m(徒歩6分) |
| コインパーキング |
三井のリパーク/渋谷1丁目第10 [料金] 全日 08:00~22:00 20分/400円 全日 22:00~08:00 60分/100円 [台数]5 タイムズ/渋谷宮益坂第2 [料金] [全日]0:00~0:00 10分 440円 [最大料金] [全日]20:00~9:00 最大料金1900円 [台数]1 |
周辺地図
井門美竹ビルは渋谷区渋谷にある地下1階、地上6階建ての賃貸事務所です。最寄駅は東京メトロ副都心線の渋谷駅から徒歩5分、東京メトロ半蔵門線の渋谷駅から徒歩8分、東京メトロ銀座線の渋谷駅から徒歩9分、東急東横線の渋谷駅から徒歩9分、東急田園都市線の渋谷駅から徒歩9分、JR線の渋谷駅から徒歩10分です。1975年3月竣工の基準階面積が232.97坪の鉄筋コンクリート造です。設備としては、エレベーターが1基あり、駐車場もあります。トイレは室外男女別です。空調は個別空調です。複数駅利用可能なアクセスの良い渋谷区渋谷の賃貸オフィスです。
全フロア情報
更新日:2025年12月5日
| 階 | 面積 | 賃料 | 共益費 | 敷金 | 入居日 | お問合せ | お気に入り | |
|---|---|---|---|---|---|---|---|---|
|
B1F
(1区画) |
19.16 坪 63.34 ㎡ |
※現在空室情報はございません |
※現在空室情報は 確認する |
|||||
|
B1F
(2区画) |
13.68 坪 45.22 ㎡ |
※現在空室情報はございません |
※現在空室情報は 確認する |
|||||
|
2F
(1区画) |
17.31 坪 57.22 ㎡ |
※現在空室情報はございません |
※現在空室情報は 確認する |
|||||
|
2F
(2区画) |
22.02 坪 72.79 ㎡ |
※現在空室情報はございません |
※現在空室情報は 確認する |
|||||
|
2F
(3区画) |
37.45 坪 123.8 ㎡ |
※現在空室情報はございません |
※現在空室情報は 確認する |
|||||
|
2F
(4区画) |
17.26 坪 57.06 ㎡ |
※現在空室情報はございません |
※現在空室情報は 確認する |
|||||
|
2F
(5区画) |
33.86 坪 111.93 ㎡ |
※現在空室情報はございません |
※現在空室情報は 確認する |
|||||
|
2F
(6区画) |
22.02 坪 72.79 ㎡ |
※現在空室情報はございません |
※現在空室情報は 確認する |
|||||
|
2F
(7区画) |
21.91 坪 72.43 ㎡ |
※現在空室情報はございません |
※現在空室情報は 確認する |
|||||
|
3F
(1区画) |
17.31 坪 57.22 ㎡ |
※現在空室情報はございません |
※現在空室情報は 確認する |
|||||
|
3F
(2区画) |
17.12 坪 56.59 ㎡ |
相談 |
込 |
12ヶ月 |
2026/04 |
|
|
|
|
4F
(1区画) |
55.99 坪 185.09 ㎡ |
※現在空室情報はございません |
※現在空室情報は 確認する |
|||||
|
4F
(2区画) |
17.31 坪 57.22 ㎡ |
※現在空室情報はございません |
※現在空室情報は 確認する |
|||||
|
4F
(3区画) |
59.26 坪 195.9 ㎡ |
※現在空室情報はございません |
※現在空室情報は 確認する |
|||||
|
6F
(1区画) |
89.04 坪 294.35 ㎡ |
相談 |
込 |
10ヶ月 |
2026/03 |
|
|
|
|
6F
(A区画) |
89.04 坪 294.35 ㎡ |
相談 |
込 |
10ヶ月 |
2026/03 |
|
|
|
お問い合わせ
似た条件の物件はこちら
-
ルート神南ビル
東京都渋谷区神南1-5-13
坪数:31.78 坪
坪単価:25,000 円(坪)
-
第一暁ビルディング
東京都渋谷区道玄坂1-19-9
坪数:24.14 坪
坪単価:20,713 円(坪)
-
清澤ビル
東京都渋谷区渋谷3-17-2
坪数:38.11 坪
坪単価:25,500 円(坪)
-
ベリータ
東京都渋谷区東3-12-13
坪数:31.67 坪
坪単価:20,500 円(坪)
-
倉島渋谷ビル
東京都渋谷区渋谷2-3-8
坪数:24.63 坪
坪単価:18,000 円(坪)
-
越一ビル
東京都渋谷区神宮前6-19-16
坪数:30.2 坪
坪単価:22,000 円(坪)
-
第1矢木ビル
東京都渋谷区渋谷3-6-19
坪数:26 坪
坪単価:18,000 円(坪)
-
リマージュK
東京都渋谷区東1-10-9
坪数:23.31 坪
坪単価:14,157 円(坪)
-
モドマルシェ渋谷桜丘
東京都渋谷区桜丘町10-4
坪数:33.71 坪
坪単価:18,000 円(坪)
-
トップヒル並木ビル
東京都渋谷区道玄坂1-19-13
坪数:24.15 坪
坪単価:26,000 円(坪)