ドミ・エメロード(物件No:51585174)
ドミ・エメロードは港区赤坂にある地上9階建ての賃貸事務所です。最寄駅は東京メトロ千代田線の赤坂駅から徒歩3分です。2012年7月竣工の鉄筋コンクリート造です。設備としては、エレベーターが1基あります。空調は個別空調です。耐震設計となっている、最寄駅から近くて便利な港区赤坂の賃貸オフィスです。
-
物件情報
-
設備情報
- トイレ
- 室内男女共用
- 床
- -
- 空調
- 個別空調
- セキュリティ
- -
- 駐車場
- -
- 会議室
- -
- エレベーター
- 1基
- 天井高
- -
-
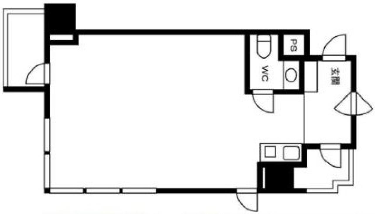
間取り図
-
近隣相場情報
赤坂6丁目(20坪以下)の相場
15487 円 (坪)
※ビルサク調べ
周辺施設情報
| コンビニ |
ローソン/西麻布四丁目/19m(徒歩1分) まいばすけっと/西麻布店/300m(徒歩4分) |
|---|---|
| 郵便局/銀行 |
三井住友銀行/麻布支店/平日 9:00-15:00 土曜 - 日曜・祝日 - [ATM]平日 7:00~24:00 土曜 7:00~24:00 日曜・祝日 7:00~21:00/36m(徒歩1分) セブン銀行/南麻布5外苑西通り店/[営業時間]24時間営業 [ATM台数]1/550m(徒歩6分) |
| 飲食店 |
ホブソンズ 西麻布店/12時00分~3時00分/ IL MEL/18時00分~5時00分/4m(徒歩1分) |
| カフェ |
シンシア/18時00分~5時00分/63m(徒歩1分) 丸山珈琲/西麻布店/[営業時間]8:00~21:00 [休業日]無休 [駐車場]なし/240m(徒歩3分) |
| コインパーキング |
三井のリパーク/興和西麻布ビル駐車場 [料金] 全日 08:00~00:00 20分/400円 全日 00:00~08:00 60分/100円 [最大料金] 【全日】最大料金入庫後12時間以内4200円 [台数]5 公社駐車場/霞町 [料金] 30分400円(7:00~24:00) 25分100円(0:00~7:00) [台数]22台 |
周辺地図
ドミ・エメロードは港区赤坂にある地上9階建ての賃貸事務所です。最寄駅は東京メトロ千代田線の赤坂駅から徒歩3分です。2012年7月竣工の鉄筋コンクリート造です。設備としては、エレベーターが1基あります。空調は個別空調です。耐震設計となっている、最寄駅から近くて便利な港区赤坂の賃貸オフィスです。
全フロア情報
更新日:2025年10月27日
| 階 | 面積 | 賃料 | 共益費 | 敷金 | 入居日 | お問合せ | お気に入り | |
|---|---|---|---|---|---|---|---|---|
|
1F
(101区画) |
18.9 坪 62.48 ㎡ |
※現在空室情報はございません |
※現在空室情報は 確認する |
|||||
| 3F |
12.46 坪 41.19 ㎡ |
※現在空室情報はございません |
※現在空室情報は 確認する |
|||||
お問い合わせ
似た条件の物件はこちら
-
赤坂Kマンション
東京都港区赤坂2-15-7
坪数:15.81 坪
坪単価:16,302 円(坪)
-
第4文成ビル
東京都港区赤坂7-10-9
坪数:17 坪
坪単価:20,000 円(坪)
-
氷川アネックス2号館
東京都港区赤坂6-9-5
坪数:14.89 坪
坪単価:13,298 円(坪)
-
赤坂栄ビル
東京都港区赤坂6-6-4
坪数:14.97 坪
坪単価:10,488 円(坪)
-
笠松千代田ビル
東京都千代田区永田町2-17-4
坪数:11.42 坪
坪単価:23,993 円(坪)
-
アークヒルズエグゼクティブタワー
東京都港区赤坂1-14-5
坪数:15.6 坪
坪単価:21,562 円(坪)
-
松田ビル
東京都港区赤坂2-9-2
坪数:15.8 坪
坪単価:15,823 円(坪)
-
No.1ニイクラビル
東京都港区赤坂1-7-4
坪数:12.41 坪
坪単価:37,873 円(坪)
-
赤坂七番館
東京都港区赤坂7-6-41
坪数:14.86 坪
坪単価:15,478 円(坪)
-
NINETY TWO13
東京都港区赤坂9-2-13
坪数:14.52 坪
坪単価:17,080 円(坪)