斎田ビル(物件No:51489059)
斎田ビルは千代田区神田佐久間町にある地上7階建ての賃貸事務所です。最寄駅はJR線の秋葉原駅から徒歩4分、東京メトロ日比谷線の秋葉原駅から徒歩4分、都営新宿線の岩本町駅から徒歩7分、JR中央・総武線の浅草橋駅から徒歩6分、都営浅草線の浅草橋駅から徒歩6分です。1980年竣工の鉄筋コンクリート造です。設備としては、エレベーターが1基あります。セキュリティは機械警備と有人警備です。空調は個別空調です。複数路線利用可能なアクセスの良い千代田区神田佐久間町の賃貸オフィスです。
| 階 | 面積 | 賃料 | 共益費 | 敷金 | 入居日 | お問合せ | お気に入り | |
|---|---|---|---|---|---|---|---|---|
| 4F (401区画) | 10.8 坪 35.7 ㎡ | ※現在空室情報はございません | ※現在空室情報は 確認する | |||||
| 階 | 面積 | 賃料 | 共益費 | 敷金 | 入居日 | お問合せ | お気に入り | |
|---|---|---|---|---|---|---|---|---|
| 4F (401区画) | 10.8 坪 35.7 ㎡ | ※現在空室情報はございません | ※現在空室情報は 確認する | |||||
- 
                    物件情報
- 
                        設備情報- トイレ
- 室内男女共用
- 床
- タイルカーペット
- 空調
- 個別空調
- セキュリティ
- 有
- 駐車場
- -
- 会議室
- -
- エレベーター
- 1基
- 天井高
- -
 
- 
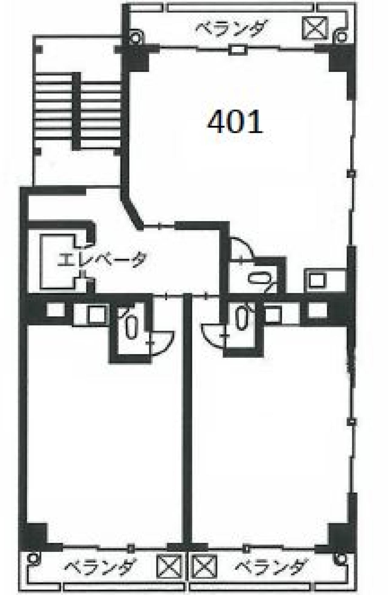
                        間取り図
- 
                    近隣相場情報神田佐久間町4丁目(20坪以下)の相場 13800 円 (坪) 
 ※ビルサク調べ
周辺地図
斎田ビルは千代田区神田佐久間町にある地上7階建ての賃貸事務所です。最寄駅はJR線の秋葉原駅から徒歩4分、東京メトロ日比谷線の秋葉原駅から徒歩4分、都営新宿線の岩本町駅から徒歩7分、JR中央・総武線の浅草橋駅から徒歩6分、都営浅草線の浅草橋駅から徒歩6分です。1980年竣工の鉄筋コンクリート造です。設備としては、エレベーターが1基あります。セキュリティは機械警備と有人警備です。空調は個別空調です。複数路線利用可能なアクセスの良い千代田区神田佐久間町の賃貸オフィスです。
全フロア情報
更新日:2025年10月29日
| 階 | 面積 | 賃料 | 共益費 | 敷金 | 入居日 | お問合せ | お気に入り | |
|---|---|---|---|---|---|---|---|---|
| 2F (201区画) | 17.1 坪 56.53 ㎡ | ※現在空室情報はございません | ※現在空室情報は 確認する | |||||
| 3F (301区画) | 8.5 坪 28.1 ㎡ | 110,500 円 13,000 円(坪) | 21,250 円 2,500 円(坪) | 773,500 円 7 ヶ月 | 2025/11 |  |  | |
| 3F (303区画) | 10.8 坪 35.7 ㎡ | ※現在空室情報はございません | ※現在空室情報は 確認する | |||||
| 4F (401区画) | 10.8 坪 35.7 ㎡ | ※現在空室情報はございません | ※現在空室情報は 確認する | |||||
| 5F | 10.8 坪 35.7 ㎡ | ※現在空室情報はございません | ※現在空室情報は 確認する | |||||
お問い合わせ
似た条件の物件はこちら
- 
                    
                          大手町ゲートビルディング東京都千代田区内神田1-31-11 坪数:11.65 坪 坪単価:77,253 円(坪) 
- 
                    
                        アーバンスクエア神田ビル東京都千代田区神田須田町1-18 坪数:14.18 坪 坪単価:17,000 円(坪) 
- 
                    
                        矢板ビル東京都千代田区内神田2-6-2 坪数:12.3 坪 坪単価:11,000 円(坪) 
- 
                    
                        大丸アネックス東京都千代田区内神田1-11-6 坪数:12.65 坪 坪単価:16,000 円(坪) 
- 
                    
                        神田錦町ビル東京都千代田区神田錦町1-1-6 坪数:6.99 坪 坪単価:16,000 円(坪) 
- 
                    
                        神田乗物町ビル東京都千代田区神田北乗物町2 坪数:10.1 坪 坪単価:12,000 円(坪) 
- 
                    
                        パレヤソジマ東京都千代田区神田司町2-15-1 坪数:12.03 坪 坪単価:13,300 円(坪) 
- 
                    
                        山崎ビル東京都千代田区鍛冶町2-4-4 坪数:8 坪 坪単価:12,000 円(坪) 
- 
                    
                        ルミエールお茶の水東京都千代田区神田淡路町2-23-2 坪数:12.08 坪 坪単価:21,192 円(坪) 
- 
                    
                          川崎ビル東京都千代田区外神田2-8-12 坪数:13.5 坪 坪単価:16,000 円(坪) 
関連エリアから探す
- 内神田
- 神田淡路町
- 神田小川町
- 神田鍛冶町
- 神田須田町
- 神田駿河台
- 神田多町
- 神田司町
- 神田錦町
- 神田美土代町
- 岩本町
- 鍛冶町
- 神田岩本町
- 神田北乗物町
- 神田紺屋町
- 神田富山町
- 神田西福田町
- 神田東松下町
- 神田東紺屋町
- 神田美倉町
- 東神田
- 神田相生町
- 神田和泉町
- 神田佐久間町
- 神田佐久間河岸
- 神田練塀町
- 神田花岡町
- 神田松永町
- 外神田
- 神田平河町
 
         
    