本郷大関ビル(物件No:51381106)
本郷大関ビルは、文京区本郷にある貸事務所物件です。最寄駅は、東京メトロ丸ノ内線、JR御茶ノ水駅。都営大江戸線本郷三丁目駅です。1989年竣工で基準階が65坪の賃貸オフィスビルです。床はOAフロアで、天井の高さは2400mm。トイレは男女別で、空調は個別空調です。エレベーターは1基あり、セキュリティは機械警備となっています。駐車場が利用可能です。最寄駅から徒歩4分、複数路線利用可能で交通アクセスの良い、文京区本郷の貸事務所です。
| 階 | 面積 | 賃料 | 共益費 | 敷金 | 入居日 | お問合せ | お気に入り |
|---|---|---|---|---|---|---|---|
|
3F
(303区画) |
29.28 坪 96.79 ㎡ |
263,520 円 9,000 円(坪) |
102,480 円 3,500 円(坪) |
2,635,200 円 10 ヶ月 |
相談 |
|
|
| 階 | 面積 | 賃料 | 共益費 | 敷金 | 入居日 | お問合せ | お気に入り |
|---|---|---|---|---|---|---|---|
|
3F
(303区画) |
29.28 坪 96.79 ㎡ |
263,520 円 9,000 円(坪) |
102,480 円 3,500 円(坪) |
2,635,200 円 10 ヶ月 |
相談 |
|
|
-
物件情報
-
設備情報
- トイレ
- 室外男女別
- 床
- -
- 空調
- 個別空調
- セキュリティ
- 有
- 駐車場
- 有
- 会議室
- -
- エレベーター
- 1基
- 天井高
- 2480mm
-
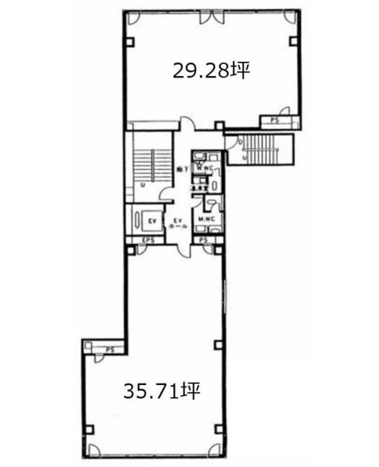
間取り図
-
近隣相場情報
本郷3丁目(20~30坪)の相場
14998 円 (坪)
※ビルサク調べ
周辺地図
本郷大関ビルは、文京区本郷にある貸事務所物件です。最寄駅は、東京メトロ丸ノ内線、JR御茶ノ水駅。都営大江戸線本郷三丁目駅です。1989年竣工で基準階が65坪の賃貸オフィスビルです。床はOAフロアで、天井の高さは2400mm。トイレは男女別で、空調は個別空調です。エレベーターは1基あり、セキュリティは機械警備となっています。駐車場が利用可能です。最寄駅から徒歩4分、複数路線利用可能で交通アクセスの良い、文京区本郷の貸事務所です。
全フロア情報
更新日:2025年11月17日
| 階 | 面積 | 賃料 | 共益費 | 敷金 | 入居日 | お問合せ | お気に入り | |
|---|---|---|---|---|---|---|---|---|
|
1F
(1区画) |
19.88 坪 65.72 ㎡ |
※現在空室情報はございません |
※現在空室情報は 確認する |
|||||
|
2F
(201区画) |
35.71 坪 118.05 ㎡ |
※現在空室情報はございません |
※現在空室情報は 確認する |
|||||
|
2F
(202区画) |
29.28 坪 96.79 ㎡ |
※現在空室情報はございません |
※現在空室情報は 確認する |
|||||
|
3F
(301区画) |
35.71 坪 118.05 ㎡ |
※現在空室情報はございません |
※現在空室情報は 確認する |
|||||
|
3F
(302区画) |
29.28 坪 96.79 ㎡ |
263,454 円 8,998 円(坪) |
102,480 円 3,500 円(坪) |
2,634,540 円 10 ヶ月 |
2025/12/18 |
|
|
|
|
3F
(303区画) |
29.28 坪 96.79 ㎡ |
263,520 円 9,000 円(坪) |
102,480 円 3,500 円(坪) |
2,635,200 円 10 ヶ月 |
相談 |
|
|
|
|
4F
(401区画) |
35.71 坪 118.05 ㎡ |
321,390 円 9,000 円(坪) |
124,985 円 3,500 円(坪) |
3,213,900 円 10 ヶ月 |
即日 |
|
|
|
|
5F
(502区画) |
29.28 坪 96.79 ㎡ |
※現在空室情報はございません |
※現在空室情報は 確認する |
|||||
|
8F
(801区画) |
35.71 坪 118.05 ㎡ |
※現在空室情報はございません |
※現在空室情報は 確認する |
|||||
|
8F
(802区画) |
29.28 坪 96.79 ㎡ |
※現在空室情報はございません |
※現在空室情報は 確認する |
|||||
お問い合わせ
似た条件の物件はこちら
-
山本ビル
東京都文京区本郷3-39-9
坪数:29.77 坪
坪単価:13,100 円(坪)
-
本郷ビル
東京都文京区本郷7-2-2
坪数:22.98 坪
坪単価:9,922 円(坪)
-
ムツミ工業本社ビル
東京都文京区本郷3-26-13
坪数:24.27 坪
坪単価:13,185 円(坪)
-
エスティビル小石川
東京都文京区小石川2-23-12
坪数:19.1 坪
坪単価:10,471 円(坪)
-
プロムナード深瀬
東京都文京区本郷3-37-15
坪数:19.09 坪
坪単価:9,429 円(坪)
-
福泉ビル
東京都文京区春日2-24-11
坪数:31.18 坪
坪単価:9,301 円(坪)
-
新大塚プラザ
東京都文京区大塚5-9-2
坪数:33.88 坪
坪単価:12,727 円(坪)
-
白王ビル
東京都文京区後楽2-3-10
坪数:29 坪
坪単価:10,000 円(坪)
-
浅沼ビル
東京都文京区本郷3-4-17
坪数:35.96 坪
坪単価:10,011 円(坪)
-
第一天神ビル
東京都文京区湯島3-34-8
坪数:24.76 坪
坪単価:9,289 円(坪)