蔵前酒井ビル(物件No:51289129)
蔵前酒井ビルは、台東区蔵前にある貸事務所物件です。最寄り駅は、都営大江戸線、都営浅草線の蔵前駅、JR中央・総武線、都営浅草線の浅草橋駅、東京メトロ銀座線の田原町駅です。1988年竣工で、基準階が81坪の賃貸オフィスビルです。天高は2430mmで、床はOAフロアとなっております。空調は個別空調で、トイレは男女別です。機械警備で、エレベーターは1基あります。複数路線利用可能な、アクセスの良い台東区蔵前の貸事務所です。
| 階 | 面積 | 賃料 | 共益費 | 敷金 | 入居日 | お問合せ | お気に入り |
|---|---|---|---|---|---|---|---|
| 4F |
69.09 坪 228.4 ㎡ |
1,105,440 円 16,000 円(坪) |
込 |
11,054,400 円 10 ヶ月 |
2025/12/01 |
|
|
| 階 | 面積 | 賃料 | 共益費 | 敷金 | 入居日 | お問合せ | お気に入り |
|---|---|---|---|---|---|---|---|
| 4F |
69.09 坪 228.4 ㎡ |
1,105,440 円 16,000 円(坪) |
込 |
11,054,400 円 10 ヶ月 |
2025/12/01 |
|
|
-
物件情報
-
設備情報
- トイレ
- 室内男女別
- 床
- フリーアクセス
- 空調
- 個別空調
- セキュリティ
- 有
- 駐車場
- 有
- 会議室
- -
- エレベーター
- 1基
- 天井高
- 2430mm
-
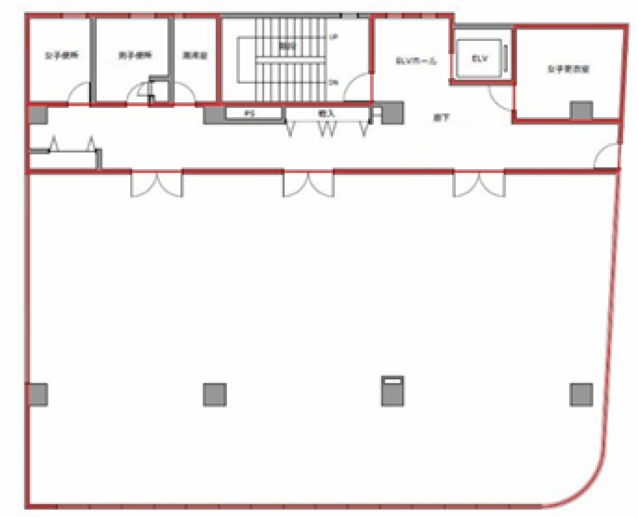
間取り図
-
近隣相場情報
蔵前3丁目(50~100坪)の相場
16000 円 (坪)
※ビルサク調べ
周辺地図
蔵前酒井ビルは、台東区蔵前にある貸事務所物件です。最寄り駅は、都営大江戸線、都営浅草線の蔵前駅、JR中央・総武線、都営浅草線の浅草橋駅、東京メトロ銀座線の田原町駅です。1988年竣工で、基準階が81坪の賃貸オフィスビルです。天高は2430mmで、床はOAフロアとなっております。空調は個別空調で、トイレは男女別です。機械警備で、エレベーターは1基あります。複数路線利用可能な、アクセスの良い台東区蔵前の貸事務所です。
全フロア情報
更新日:2025年11月4日
| 階 | 面積 | 賃料 | 共益費 | 敷金 | 入居日 | お問合せ | お気に入り | |
|---|---|---|---|---|---|---|---|---|
| 3F |
68.79 坪 227.4 ㎡ |
1,100,640 円 16,000 円(坪) |
込 |
11,006,400 円 10 ヶ月 |
2025/12/01 |
|
|
|
| 4F |
69.09 坪 228.4 ㎡ |
1,105,440 円 16,000 円(坪) |
込 |
11,054,400 円 10 ヶ月 |
2025/12/01 |
|
|
|
| 5F |
23.58 坪 77.95 ㎡ |
※現在空室情報はございません |
※現在空室情報は 確認する |
|||||
|
5F
(A区画) |
13.59 坪 44.93 ㎡ |
217,461 円 16,000 円(坪) |
込 |
2,174,610 円 10 ヶ月 |
2025/12/01 |
|
|
|
お問い合わせ
似た条件の物件はこちら
-
浅草橋ミハマビル
東京都台東区浅草橋3-20-15
坪数:59.01 坪
坪単価:12,000 円(坪)
-
浅草TFビル
東京都台東区西浅草2-27-7
坪数:79.72 坪
坪単価:12,000 円(坪)