文芸社新宿御苑ビル(物件No:43740284)
文芸社新宿御苑ビルは、新宿区新宿にある地上8階建ての貸店舗事務所です。最寄駅は東京メトロ丸ノ内線の新宿御苑前駅から徒歩2分です。1986年3月竣工の鉄骨鉄筋コンクリート造です。設備としては、トイレは室外男女別です。空調は個別空調です。耐震設計となっている、最寄駅から近くて便利な新宿区新宿の貸店舗事務所です。
-
物件情報
-
設備情報
- トイレ
- 室外男女別
- 床
- -
- 空調
- 個別空調
- セキュリティ
- -
- 駐車場
- -
- 会議室
- -
- エレベーター
- -
- 天井高
- -
-
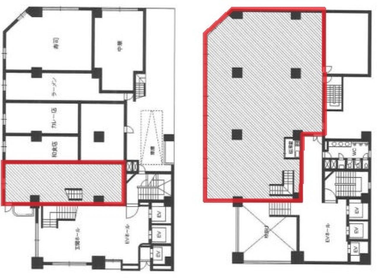
間取り図
-
近隣相場情報
新宿1丁目(50~100坪)の相場
20451 円 (坪)
※ビルサク調べ
周辺施設情報
| コンビニ |
セブンイレブン/新宿1丁目新宿通り/220m(徒歩3分) セブンイレブン/新宿御苑前本通り/150m(徒歩2分) |
|---|---|
| 郵便局/銀行 |
セブン銀行/新宿御苑前本通り店/[営業時間]24時間営業ではありません/150m(徒歩2分) セブン銀行/新宿1丁目新宿通り店/[営業時間]24時間営業/220m(徒歩3分) |
| 飲食店 |
armwood COTTAGE/11時30分~23時30分/87m(徒歩1分) まいどおおきに 新宿1丁目食堂/11時00分~22時00分/120m(徒歩1分) |
| カフェ |
コメダ珈琲/新宿御苑前店/[営業時間]7:00~21:30/150m(徒歩2分) ドトール/新宿1丁目南店/■通常営業時間 平日 7:00~20:30 土曜 7:20~20:30 日祝 7:20~19:30/130m(徒歩2分) |
| コインパーキング |
NPC24H/新宿1丁目第7 [料金] [料金]通常料金 15分/300円 [最大料金] [料金]最大料金 12時間毎 3200円 全日夜間 1200円(18時~8時) [台数]3台 東洋CARMAX/新宿御苑前 [料金] 【通常料金】(全日)8:00~24:00 ¥300 15分 0:00~8:00 ¥200 60分 [最大料金] 【最大料金】(全日)入庫後6時間以内 ¥3000 [台数]9 |
周辺地図
文芸社新宿御苑ビルは、新宿区新宿にある地上8階建ての貸店舗事務所です。最寄駅は東京メトロ丸ノ内線の新宿御苑前駅から徒歩2分です。1986年3月竣工の鉄骨鉄筋コンクリート造です。設備としては、トイレは室外男女別です。空調は個別空調です。耐震設計となっている、最寄駅から近くて便利な新宿区新宿の貸店舗事務所です。
全フロア情報
更新日:2025年11月20日
| 階 | 面積 | 賃料 | 共益費 | 敷金 | 入居日 | お問合せ | お気に入り | |
|---|---|---|---|---|---|---|---|---|
| 1-2F |
99.14 坪 327.74 ㎡ |
※現在空室情報はございません |
※現在空室情報は 確認する |
|||||
| 3F |
77.17 坪 255.11 ㎡ |
1,157,550 円 15,000 円(坪) |
308,680 円 4,000 円(坪) |
11,575,500 円 10 ヶ月 |
即日 |
|
|
|
| 3-7F |
371.22 坪 1227.18 ㎡ |
5,795,272 円 15,611 円(坪) |
386,350 円 1,041 円(坪) |
57,952,720 円 10 ヶ月 |
即日 |
|
|
|
| 4F |
77.17 坪 255.11 ㎡ |
1,157,550 円 15,000 円(坪) |
308,680 円 4,000 円(坪) |
11,575,500 円 10 ヶ月 |
即日 |
|
|
|
| 5F |
77.17 坪 255.11 ㎡ |
1,157,550 円 15,000 円(坪) |
308,680 円 4,000 円(坪) |
11,575,500 円 10 ヶ月 |
即日 |
|
|
|
| 6F |
77.17 坪 255.11 ㎡ |
1,157,550 円 15,000 円(坪) |
308,680 円 4,000 円(坪) |
11,575,500 円 10 ヶ月 |
即日 |
|
|
|
| 7F |
77.17 坪 255.11 ㎡ |
1,157,550 円 15,000 円(坪) |
308,680 円 4,000 円(坪) |
11,575,500 円 10 ヶ月 |
即日 |
|
|
|
お問い合わせ
似た条件の物件はこちら
-
Uni-works新宿御苑
東京都新宿区新宿1-12-5
坪数:87.92 坪
坪単価:25,000 円(坪)
-
西新宿KNビル
東京都新宿区西新宿7-22-27
坪数:99.95 坪
坪単価:14,400 円(坪)
-
西新宿PARKWEST
東京都新宿区西新宿6-12-1
坪数:84.86 坪
坪単価:20,000 円(坪)
-
新宿タツミビル
東京都新宿区西新宿6-16-6
坪数:112.29 坪
坪単価:14,500 円(坪)
-
新宿御苑ビル
東京都新宿区新宿2-3-10
坪数:110.56 坪
坪単価:18,000 円(坪)
-
西新宿高木ビル
東京都新宿区西新宿1-20-3
坪数:106.44 坪
坪単価:26,000 円(坪)
-
モアセンタービル
東京都新宿区新宿3-24-8
坪数:103 坪
坪単価:66,019 円(坪)
-
コアロード西新宿
東京都新宿区西新宿6-12-6
坪数:91.4 坪
坪単価:11,000 円(坪)