第9SYビル(物件No:41789006)
第9SYビルは、渋谷区神宮前にある貸事務所物件です。最寄駅は東京メトロ副都心線明治神宮前駅、JR原宿駅、各線渋谷駅です。1980年竣工で基準階が68.82坪の賃貸オフィスビルです。床はタイルカーペットで、天井の高さは2400mm。トイレは室内男女別で、空調は個別空調です。エレベーターは1基あり、セキュリティは機械警備となっています。複数駅利用可能で交通アクセスの良い、渋谷区神宮前の貸事務所です。
-
物件情報
- 住所
- 東京都渋谷区神宮前6-23-3
- 最寄り駅
-
東京メトロ千代田線
明治神宮前〈原宿〉駅
徒歩3分
JR線 渋谷駅 徒歩8分
JR線 原宿駅 徒歩8分
- 竣工
- 1980年
- 耐震
- 規模・構造
- B1F - 8F 鉄骨鉄筋コンクリート造
-
設備情報
- トイレ
- 室内男女別
- 床
- -
- 空調
- 個別空調
- セキュリティ
- 有
- 駐車場
- 無
- 会議室
- -
- エレベーター
- 1基
- 天井高
- -
-
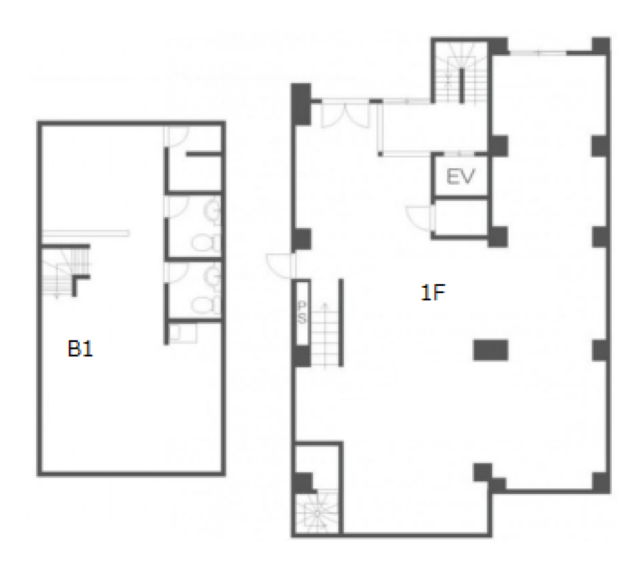
間取り図
-
近隣相場情報
神宮前6丁目(50~100坪)の相場
32775 円 (坪)
※ビルサク調べ
周辺施設情報
| コンビニ |
ファミリーマート/表参道南店/600m(徒歩8分) ローソン/JP渋谷郵便局/800m(徒歩10分) |
|---|---|
| 郵便局/銀行 |
セブン銀行/ミヤシタパーク/[営業時間]11:00~23:00 [備考]1 台/750m(徒歩10分) ゆうちょ/神宮前六郵便局/[営業時間] [窓口]平日 9:00~16:00 土曜日 - 日曜日・休日 - [ATM]平日 9:00~19:00 土曜日 9:00~17:00 日曜日・休日 9:00~17:00 [駐車場]なし [取扱]郵便/貯金/保険/ATM [備考]※新型コロナウイルスに感染した社員が発生した場合、窓口業務/400m(徒歩5分) |
| 飲食店 |
うしとらSTAND/13時00分~21時00分/450m(徒歩5分) マクドナルド 渋谷MIYASHITAPARK店/11時00分~21時00分/450m(徒歩5分) |
| カフェ |
CAFE SEE MORE GLASS/12時00分~18時00分/200m(徒歩2分) SUZU CAFE jinnan/12時00分~23時00分/500m(徒歩6分) |
| コインパーキング |
パークジャパン/神宮前第1 [料金] 月?土 8:00~22:00 300円/20分 22:00~8:00 100円/60分 日祝 8:00~22:00 300円/20分 22:00~8:00 100円/60分 [最大料金] 月?土 8:00~22:00 最大料金3,300円 22:00~8:00 最大料金500円 日祝 8:00~22:00 最大料金2,800円 22:00~8:00 最大料金500円 [台数]10台 三井のリパーク/神宮前5丁目第13 [料金] 全日 06:00~18:00 15分/200円 全日 18:00~06:00 15分/200円 [最大料金] 【全日】6:00~18:00以内 最大料金2200円 【全日】18:00~6:00以内 最大料金500円 [台数]3 |
周辺地図
第9SYビルは、渋谷区神宮前にある貸事務所物件です。最寄駅は東京メトロ副都心線明治神宮前駅、JR原宿駅、各線渋谷駅です。1980年竣工で基準階が68.82坪の賃貸オフィスビルです。床はタイルカーペットで、天井の高さは2400mm。トイレは室内男女別で、空調は個別空調です。エレベーターは1基あり、セキュリティは機械警備となっています。複数駅利用可能で交通アクセスの良い、渋谷区神宮前の貸事務所です。
全フロア情報
更新日:2025年11月10日
| 階 | 面積 | 賃料 | 共益費 | 敷金 | 入居日 | お問合せ | お気に入り | |
|---|---|---|---|---|---|---|---|---|
| B1+1F |
98.16 坪 324.5 ㎡ |
※現在空室情報はございません |
※現在空室情報は 確認する |
|||||
| B1+1AF |
70.66 坪 233.59 ㎡ |
※現在空室情報はございません |
※現在空室情報は 確認する |
|||||
| B1-2F |
166.98 坪 552 ㎡ |
※現在空室情報はございません |
※現在空室情報は 確認する |
|||||
|
1F
(B区画) |
27.5 坪 90.91 ㎡ |
※現在空室情報はございません |
※現在空室情報は 確認する |
|||||
| 2F |
68.82 坪 227.5 ㎡ |
※現在空室情報はございません |
※現在空室情報は 確認する |
|||||
| 3F |
68.82 坪 227.5 ㎡ |
※現在空室情報はございません |
※現在空室情報は 確認する |
|||||
| 4F |
68.82 坪 227.5 ㎡ |
※現在空室情報はございません |
※現在空室情報は 確認する |
|||||
| 5F |
68.82 坪 227.5 ㎡ |
※現在空室情報はございません |
※現在空室情報は 確認する |
|||||
| 7F |
40.4 坪 133.55 ㎡ |
※現在空室情報はございません |
※現在空室情報は 確認する |
|||||
| 8F |
40.4 坪 133.55 ㎡ |
※現在空室情報はございません |
※現在空室情報は 確認する |
|||||
お問い合わせ
似た条件の物件はこちら
-
日本会館
東京都渋谷区桜丘町18-6
坪数:100.44 坪
坪単価:27,500 円(坪)
-
EDGE南青山
東京都渋谷区渋谷4-2-12
坪数:113.6 坪
坪単価:24,000 円(坪)
-
二宮ビル
東京都渋谷区桜丘町18-4
坪数:104.37 坪
坪単価:24,500 円(坪)
-
Daiwa渋谷スクエア
東京都渋谷区南平台町16-28
坪数:88.94 坪
坪単価:31,000 円(坪)
-
並木橋ビル
東京都渋谷区渋谷3-15-6
坪数:100.36 坪
坪単価:20,000 円(坪)
-
渋谷TSKビル
東京都渋谷区南平台町3-8
坪数:104.66 坪
坪単価:25,000 円(坪)
-
寿パークビル
東京都渋谷区道玄坂1-20-8
坪数:93.25 坪
坪単価:20,300 円(坪)
-
神宮前IKビル
東京都渋谷区神宮前3-1-25
坪数:80.87 坪
坪単価:23,000 円(坪)
-
松濤館
東京都渋谷区松濤1
坪数:98.98 坪
坪単価:27,554 円(坪)
-
フィロアオヤマビル
東京都渋谷区神宮前5-49-2
坪数:93.43 坪
坪単価:53,516 円(坪)