シグマ浜松町ビル(物件No:41785472)
シグマ浜松町ビルは港区芝公園にある地上8階建ての賃貸事務所です。最寄駅は都営三田線の芝公園駅から徒歩4分です。1990年竣工の鉄骨鉄筋コンクリート造です。設備としては、エレベーターが1基あります。空調は個別空調です。耐震設計となっている、最寄駅から近くて便利な港区芝公園の賃貸オフィスです。
-
物件情報
-
設備情報
- トイレ
- -
- 床
- -
- 空調
- -
- セキュリティ
- -
- 駐車場
- 無
- 会議室
- -
- エレベーター
- 1基
- 天井高
- -
-
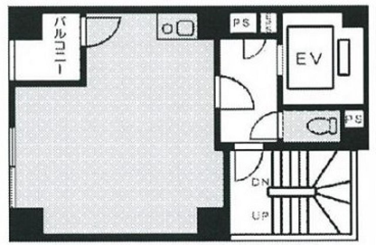
間取り図
-
近隣相場情報
芝公園2丁目(20坪以下)の相場
17149 円 (坪)
※ビルサク調べ
周辺地図
シグマ浜松町ビルは港区芝公園にある地上8階建ての賃貸事務所です。最寄駅は都営三田線の芝公園駅から徒歩4分です。1990年竣工の鉄骨鉄筋コンクリート造です。設備としては、エレベーターが1基あります。空調は個別空調です。耐震設計となっている、最寄駅から近くて便利な港区芝公園の賃貸オフィスです。
全フロア情報
更新日:2025年11月26日
| 階 | 面積 | 賃料 | 共益費 | 敷金 | 入居日 | お問合せ | お気に入り | |
|---|---|---|---|---|---|---|---|---|
| 2F |
9.55 坪 31.57 ㎡ |
※現在空室情報はございません |
※現在空室情報は 確認する |
|||||
| 3F |
9.55 坪 31.57 ㎡ |
145,000 円 15,183 円(坪) |
15,000 円 1,571 円(坪) |
870,000 円 6 ヶ月 |
2026/03 |
|
|
|
| 4F |
9.55 坪 31.57 ㎡ |
※現在空室情報はございません |
※現在空室情報は 確認する |
|||||
| 5F |
9.55 坪 31.57 ㎡ |
※現在空室情報はございません |
※現在空室情報は 確認する |
|||||
| 6F |
9.55 坪 31.57 ㎡ |
※現在空室情報はございません |
※現在空室情報は 確認する |
|||||
お問い合わせ
似た条件の物件はこちら
-
専売ビル
東京都港区芝5-26-30
坪数:12.33 坪
坪単価:19,984 円(坪)
-
芝大門1丁目ビル
東京都港区芝大門1-6-4
坪数:12.87 坪
坪単価:17,094 円(坪)
-
金沢ビル
東京都港区芝5-9-12
坪数:12.4 坪
坪単価:13,000 円(坪)
-
TMビル
東京都港区浜松町2-11-7
坪数:13.5 坪
坪単価:14,000 円(坪)
-
大貫ビル
東京都港区芝大門2-3-5
坪数:13.91 坪
坪単価:13,000 円(坪)
-
芝ダイヤハイツ
東京都港区芝大門2-4-5
坪数:10.86 坪
坪単価:13,812 円(坪)
-
ストークベル浜松町
東京都港区浜松町1-2-17
坪数:13.61 坪
坪単価:11,168 円(坪)
-
浜松町ウエストビル
東京都港区芝公園2-10-4
坪数:12.57 坪
坪単価:18,695 円(坪)
-
芝大門RUビル
東京都港区芝大門1-6-10
坪数:7.97 坪
坪単価:20,700 円(坪)