ガイア恵比寿ビル(物件No:41686057)
ガイア恵比寿ビルは渋谷区恵比寿南の7階建ての賃貸事務所物件です。最寄駅は東京メトロ日比谷線の恵比寿駅より徒歩4分、JR線の恵比寿駅より徒歩4分です。2002年11月竣工の鉄筋コンクリート造で、基準階面積は29.5坪です。設備としてはエレベーターが1基あり、室内に男女別のトイレがあります。機械警備もあります。空調は個別空調です。床はフリーアクセスです。耐震性も新耐震基準をクリアした、最寄駅へのアクセスが便利な渋谷区恵比寿南の賃貸オフィス物件です。
-
物件情報
-
設備情報
- トイレ
- 室内男女別
- 床
- フリーアクセス
- 空調
- 個別空調
- セキュリティ
- 有
- 駐車場
- -
- 会議室
- -
- エレベーター
- 1基
- 天井高
- -
-
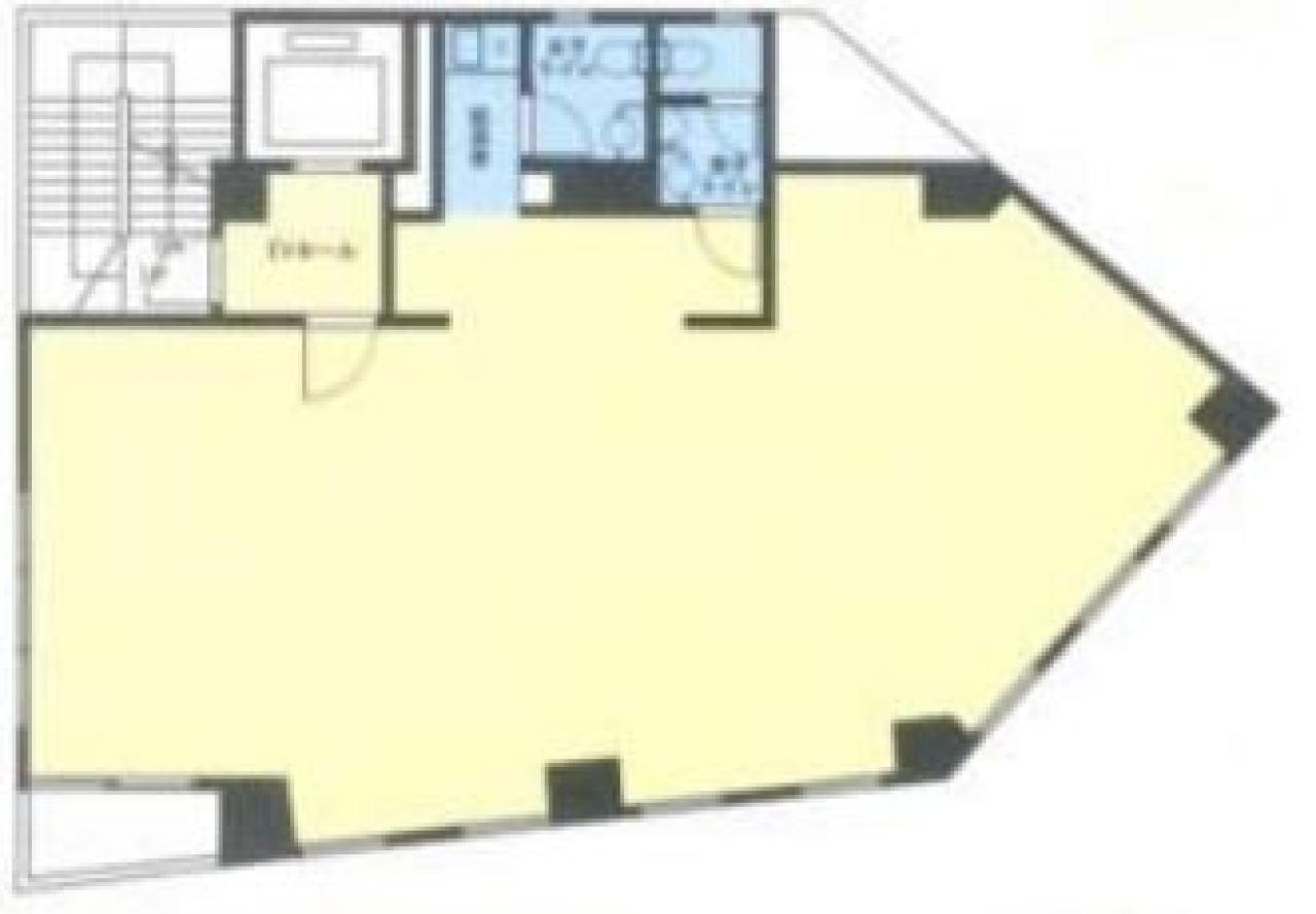
間取り図
-
近隣相場情報
恵比寿南2丁目(20~30坪)の相場
19920 円 (坪)
※ビルサク調べ
周辺施設情報
| コンビニ |
ファミリーマート/恵比寿ガーデンプレイス店/550m(徒歩7分) ローソン/恵比寿南一丁目/350m(徒歩4分) |
|---|---|
| 郵便局/銀行 |
みずほ銀行/ATM 恵比寿ガーデンプレイス出張所/[営業時間] [ATM]平日 7:00~23:00 土曜日 7:00~22:00 日曜日 8:00~21:00 祝日・振替休日 曜日に準ずる/600m(徒歩8分) ビューアルッテ/JR恵比寿駅東口/[営業時間]全日/4:35~25:10※毎月第二土曜日23:00~翌日8:00はご利用になれません。※駅や店舗の営業時間により、ATM営業時間が変更となる場合があります [取扱]お引出し・残高照会のみ/650m(徒歩9分) |
| 飲食店 |
Sato Buriand/11時30分~14時00分、17時00分~20時30分/170m(徒歩2分) 日本料理 すがわら/18時00分~21時00分/120m(徒歩1分) |
| カフェ |
スターバックス/恵比寿ガーデンプレイス店/[営業時間]月~金:7:00~22:00 土日祝:8:00~22:00 ※臨時営業時間のお知らせ 下記の日程は臨時の営業時間となります。2021年9月11日~2021年9月12日 営業時間:8:00~20:00 2021年9月13日~2021年9月17日 営業時間:7:00~20:00 2021年9月18日~2021年9月20日 営業時間:8:00~20:00 2021年9月21日~2021年9月/550m(徒歩7分) チビクロサンボ 恵比寿南/11時30分~16時00分/350m(徒歩4分) |
| コインパーキング |
パークジャパン/恵比寿南第3 [料金] 8:00~20:00 200円/20分 20:00~8:00 100円/60分 [最大料金] 8:00~20:00 最大料金2,100円 20:00~8:00 最大料金500円 [台数]5台 三井のリパーク/恵比寿南2丁目第5 [料金] 全日 08:00~22:00 12分/300円 全日 22:00~08:00 60分/100円 [最大料金] 【全日】最大料金入庫後6時間以内3200円 [台数]3 |
周辺地図
ガイア恵比寿ビルは渋谷区恵比寿南の7階建ての賃貸事務所物件です。最寄駅は東京メトロ日比谷線の恵比寿駅より徒歩4分、JR線の恵比寿駅より徒歩4分です。2002年11月竣工の鉄筋コンクリート造で、基準階面積は29.5坪です。設備としてはエレベーターが1基あり、室内に男女別のトイレがあります。機械警備もあります。空調は個別空調です。床はフリーアクセスです。耐震性も新耐震基準をクリアした、最寄駅へのアクセスが便利な渋谷区恵比寿南の賃貸オフィス物件です。
全フロア情報
更新日:2025年11月12日
| 階 | 面積 | 賃料 | 共益費 | 敷金 | 入居日 | お問合せ | お気に入り | |
|---|---|---|---|---|---|---|---|---|
| 3F |
29.5 坪 97.52 ㎡ |
※現在空室情報はございません |
※現在空室情報は 確認する |
|||||
| 4F |
29.50 坪 97.52 ㎡ |
※現在空室情報はございません |
※現在空室情報は 確認する |
|||||
|
4F
(2区画) |
29.5 坪 97.52 ㎡ |
※現在空室情報はございません |
※現在空室情報は 確認する |
|||||
| 5F |
29.5 坪 97.52 ㎡ |
※現在空室情報はございません |
※現在空室情報は 確認する |
|||||
| 7F |
26.55 坪 87.78 ㎡ |
510,000 円 19,209 円(坪) |
50,000 円 1,883 円(坪) |
3,060,000 円 6 ヶ月 |
相談 |
|
|
|
お問い合わせ
似た条件の物件はこちら
-
コマンドプロンプト広尾
東京都渋谷区広尾5-17-9
坪数:23.65 坪
坪単価:36,490 円(坪)
-
ウインズビル
東京都渋谷区恵比寿西2-7-2
坪数:19.81 坪
坪単価:18,021 円(坪)
-
ハーモニックプレイス
東京都渋谷区恵比寿南2-7-1
坪数:27.43 坪
坪単価:19,000 円(坪)
-
恵比寿イーストスクエアビル
東京都渋谷区恵比寿4-22-7
坪数:29.5 坪
坪単価:33,000 円(坪)
-
デリス第2ビル
東京都渋谷区恵比寿1-16-29
坪数:20.01 坪
坪単価:19,490 円(坪)
-
代官山コーポラス
東京都渋谷区猿楽町12-1
坪数:20.89 坪
坪単価:15,231 円(坪)
-
ゼネラルビル恵比寿西
東京都渋谷区恵比寿西1-16-3
坪数:26.31 坪
坪単価:21,665 円(坪)
-
マリオン広尾ビル
東京都渋谷区広尾5-19-11
坪数:27.44 坪
坪単価:15,000 円(坪)
-
レジデンス広尾
東京都渋谷区広尾3-5-27
坪数:22.54 坪
坪単価:16,327 円(坪)
-
恵比寿ネオナートアネックス
東京都渋谷区恵比寿4-1-22
坪数:23.11 坪
坪単価:25,000 円(坪)